Maison neuve, 129 m² - Sainte-Christine (49120)
322 500 €
Sainte-Christine (49120)
Proposée par MAISONS BERNARD JAMBERT – 6 pièces - 3 chambres - terrain 476 m²
|
|
| MAISONS BERNARD JAMBERT |
- Demande d'information
- Prendre rendez-vous
MAISON À CONSTRUIRE : ceci est une annonce d'une maison neuve à construire.
Sainte-Christine : maison T6 (129 m²) en vente
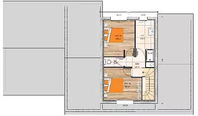
Idéalement située - À Sainte-Christine (49120), maison neuve en vente de 6 pièces, 2 niveaux, 129 m² de surface et 476 m² de terrain. Son intérieur propose trois chambres, une cuisine et deux salles de bains.
À dix minutes : École Primaire Privée Saint Joseph, bibliothèque, boulangerie et épicerie. Autoroutes A87 et A11 accessibles à 17 km. Angers à 29 km
Le prix de vente de cette maison de 6 pièces est de 322 500 €.
. Maisons Bernard Jambert Angers est là pour vous accompagner dans tous vos projets immobiliers.
Référence : MJ2342916_4
Terrain proposé par un partenaire foncier selon disponibilités et autorisation de publicité au prix de 34 272 €. Hors droit d'enregistrement et frais de notaire. Maison proposée, avec un contrat de construction de maison individuelle, dans le cadre de la loi du 19/12/1990, au prix de 288 228 € (Hors branchements et raccordements, papiers peints, peintures, revêtement de sol dans les chambres, qui sont chiffrés dans les travaux qui restent à charge du client. Tarif modifiable sans préavis). Étiquette énergie : A. Différents modèles disponibles pour ce terrain. Assurances et garanties du constructeur comprises (RC professionnelle, décennale, dommage ouvrage).
Les informations sur les risques auxquels ce bien est exposé sont disponibles sur le site Géorisques : www.georisques.gouv.fr
Idéalement située - À Sainte-Christine (49120), maison neuve en vente de 6 pièces, 2 niveaux, 129 m² de surface et 476 m² de terrain. Son intérieur propose trois chambres, une cuisine et deux salles de bains.
À dix minutes : École Primaire Privée Saint Joseph, bibliothèque, boulangerie et épicerie. Autoroutes A87 et A11 accessibles à 17 km. Angers à 29 km
Le prix de vente de cette maison de 6 pièces est de 322 500 €.
. Maisons Bernard Jambert Angers est là pour vous accompagner dans tous vos projets immobiliers.
Référence : MJ2342916_4
Terrain proposé par un partenaire foncier selon disponibilités et autorisation de publicité au prix de 34 272 €. Hors droit d'enregistrement et frais de notaire. Maison proposée, avec un contrat de construction de maison individuelle, dans le cadre de la loi du 19/12/1990, au prix de 288 228 € (Hors branchements et raccordements, papiers peints, peintures, revêtement de sol dans les chambres, qui sont chiffrés dans les travaux qui restent à charge du client. Tarif modifiable sans préavis). Étiquette énergie : A. Différents modèles disponibles pour ce terrain. Assurances et garanties du constructeur comprises (RC professionnelle, décennale, dommage ouvrage).
Les informations sur les risques auxquels ce bien est exposé sont disponibles sur le site Géorisques : www.georisques.gouv.fr
- Prix
-
- Prix total : 322 500 €
- Prix du modèle de maison : 288 228 €
- Prix du terrain : 34 272 €
- Terrain
-
- Surface : 476 m²
- Maison
-
- Surface : 129 m²
- Pièces : 6
- Chambres : 3
- Garage : 1
- Être rappelé par un conseiller
- Demander plus d’infos
- Demande d'information
Sainte-Christine (49120)
Maisons à proximité
Maison neuve, 78 m²
Sainte-Christine (49120)
Sainte-Christine (49120)
Maison de 4 pièces
Maison neuve, 71 m²
Sainte-Christine (49120)
Sainte-Christine (49120)
Maison de 3 pièces
Maison neuve, 50 m²
Sainte-Christine (49120)
Sainte-Christine (49120)
Maison de 3 pièces
Maison neuve, 94 m²
Saint-Laurent-de-la-Plaine (49290)
Saint-Laurent-de-la-Plaine (49290)
Maison de 6 pièces
Maison neuve, 73 m²
Saint-Laurent-de-la-Plaine (49290)
Saint-Laurent-de-la-Plaine (49290)
Maison de 4 pièces
Maison neuve, 89 m²
Saint-Laurent-de-la-Plaine (49290)
Saint-Laurent-de-la-Plaine (49290)
Maison de 5 pièces
Programmes à proximité
Les Confluences
Chalonnes-sur-Loire (49290)
Chalonnes-sur-Loire (49290)
Appartements de 2 à 5 pièces
Livraison 4ème trimestre 2026
L'Ecrin
Bouchemaine (49080)
Bouchemaine (49080)
Appartements de 4 pièces
Livraison 4ème trimestre 2025
Les Jardins des Mauges
Cholet (49300)
Cholet (49300)
Appartements de 2 à 4 pièces
Livraison 4ème trimestre 2026
Les Jardins des Mauges II
Cholet (49300)
Cholet (49300)
Appartements de 1 à 3 pièces
Livraison 4ème trimestre 2027
Contacter MAISONS BERNARD JAMBERT pour recevoir plus d'informations
Remplissez le formulaire ci-dessous, vos informations sont transmises directement au constructeur qui vous contactera par email ou par téléphone afin de traiter votre demande. En savoir plus.
Voir tous nos programmes immobiliers neufs à Sainte-Christine