Maison neuve, 120 m² - Saint-Vrain (91770)

375 000 €
Saint-Vrain (91770)

Proposée par MAISONS BALENCY – 6 pièces - 4 chambres - terrain 414 m²

MAISONS BALENCY
MAISONS BALENCY
  • Demande d'information
MAISON À CONSTRUIRE : ceci est une annonce d'une maison neuve à construire.
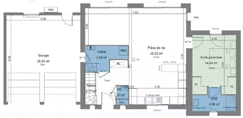
CENTRE-VILLE de Saint-Vrain, Île de France (91770) : Spacieuse Maison Traditionnelle de 120 m² située sur un terrain offrant 18 mètres de façade.
Au coeur de cette charmante commune essonnienne, profitez d'un cadre de vie idéal avec toutes les commodités à portée de main : écoles à 4 et 6 minutes en voiture, et deux gares (Bouray - RER C à 5 min, Ballancourt-sur-Essonne - RER D à 6 min). Vivez à proximité des commerces et services, dans un environnement paisible et verdoyant.
À partir de 375 000 € (terrain + maison, hors frais annexes), devenez propriétaire d'une spacieuse maison de 6 piècesà bâtir sur un terrain de 414 m² en plein centre-ville. Chez Maisons Balency, agence d'Ormoy, nous concevons des projets sur-mesure répondant aux normes RE2020, tout en vous offrant la possibilité d'adapter nos modèles existants à vos besoins.
.
Faites de vos rêves une réalité avec notre agence d'ORMOY !
Annonce proposée par un Agent Commercial Partenaire.
Référence : PM2301936_2
Terrain proposé par un partenaire foncier selon disponibilités et autorisation de publicité au prix de 140 000 €. Hors droit d'enregistrement et frais de notaire. Maison proposée, avec un contrat de construction de maison individuelle, dans le cadre de la loi du 19/12/1990, au prix de 235 000 € (Hors branchements et raccordements, papiers peints, peintures, revêtement de sol dans les chambres, qui sont chiffrés dans les travaux qui restent à charge du client. Tarif modifiable sans préavis). Étiquette énergie : A. Différents modèles disponibles pour ce terrain. Assurances et garanties du constructeur comprises (RC professionnelle, décennale, dommage ouvrage).

Les informations sur les risques auxquels ce bien est exposé sont disponibles sur le site Géorisques : www.georisques.gouv.fr


Prix
  • Prix total : 375 000 €
  • Prix du modèle de maison : 235 000 €
  • Prix du terrain : 140 000 €

Terrain
  • Surface : 414 m²

Maison
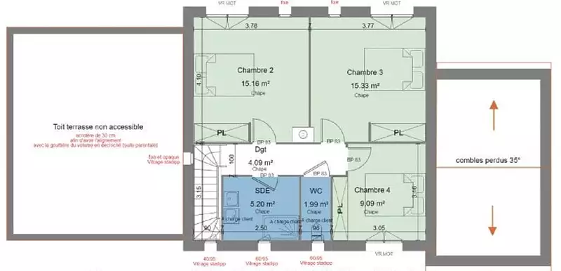
  • Surface : 120 m²
  • Pièces : 6
  • Chambres : 4
  • Garage : 1

  • Être rappelé par un conseiller
  • Demander plus d’infos
  • Demande d'information
Saint-Vrain (91770)

Programmes à proximité

LE PETIT BOIS
LE PETIT BOIS
La Norville (91290)

Appartements de 1 à 3 pièces et maisons de 4 à 5 pièces
Livraison 4ème trimestre 2026

Eclor
Eclor
Brétigny-sur-Orge (91220)

Appartements de 2 à 6 pièces
Livraison 4ème trimestre 2027

EURYDICE
EURYDICE
Brétigny-sur-Orge (91220)

Appartements de 2 à 4 pièces
Livraison 1er trimestre 2026

Le Hameau de Calyx
Le Hameau de Calyx
Le Plessis-Pâté (91220)

Appartements de 3 à 4 pièces
Livraison 4ème trimestre 2026

Domaine Belle Epoque
Domaine Belle Epoque
Mennecy (91540)

Appartements de 2 à 5 pièces et maisons de 5 pièces
Livraison 4ème trimestre 2028

Les Hauts de Mennecy
Les Hauts de Mennecy
Mennecy (91540)

Appartements de 2 à 5 pièces
Livraison 1er trimestre 2027

Contacter MAISONS BALENCY pour recevoir plus d'informations

Remplissez le formulaire ci-dessous, vos informations sont transmises directement au constructeur qui vous contactera par email ou par téléphone afin de traiter votre demande. En savoir plus.

Voir tous nos programmes immobiliers neufs à Saint-Vrain