Maison neuve, 79 m² - Saint-Révérend (85220)

191 900 €
Saint-Révérend (85220)

Proposée par LMP CONSTRUCTEUR – 2 pièces - 3 chambres - terrain 404 m²

LMP CONSTRUCTEUR
LMP CONSTRUCTEUR
  • Demande d'information
MAISON À CONSTRUIRE : ceci est une annonce d'une maison neuve à construire.
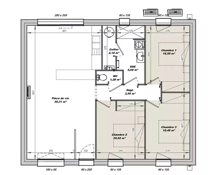
VENTE d'une maison T2 (79 m²) à Saint-Révérend
À Saint-Révérend (85220), maison neuve à vendre de 2 pièces, 79 m² de surface sur 404 m² de terrain. Son intérieur comporte trois chambres, une cuisine et une salle de bains.
À dix minutes : gares (Saint-Gilles-Croix-de-Vie et Saint-Hilaire-de-Riez), École Primaire Privée Notre-Dame, boulangerie. Océan Atlantique à 8 km.
Cette maison de 2 pièces est proposée à l'achat pour 191 900 €.
N'hésitez pas à prendre contact avec Nicolas RISSELIN (06-80-33-03-82) pour toute information sur la maison ou sur les démarches à suivre.
Référence : NR2316240_4
Terrain proposé par un partenaire foncier selon disponibilités et autorisation de publicité au prix de 55 900 €. Hors droit d'enregistrement et frais de notaire. Terrain + Maison proposés au prix de 136 000 € (Hors branchements et raccordements, papiers peints, peintures, revêtement de sol dans les chambres. Tarif modifiable sans préavis). Etiquette énergie : A. Différents modèles disponibles pour ce terrain. Assurances et garanties du constructeur (RC professionnelle, décennale, dommage ouvrage, garantie de remboursement de l'acompte, livraison à prix et délai convenu) : https://www.lmp-constructeur.com/mentions-legales/.

Les informations sur les risques auxquels ce bien est exposé sont disponibles sur le site Géorisques : www.georisques.gouv.fr


Prix
  • Prix total : 191 900 €
  • Prix du modèle de maison : 136 000 €
  • Prix du terrain : 55 900 €

Terrain
  • Surface : 404 m²

Maison
  • Surface : 79 m²
  • Pièces : 2
  • Chambres : 3

  • Être rappelé par un conseiller
  • Demander plus d’infos
  • Demande d'information
Saint-Révérend (85220)

Programmes à proximité

Le Bocage
Le Bocage
Le Fenouiller (85800)

Appartements de 1 à 4 pièces
Livraison 4ème trimestre 2027

Domaine de la Sauzaie
Domaine de la Sauzaie
Bretignolles-sur-Mer (85470)

Appartements de 2 à 3 pièces
Livraison 1er trimestre 2027

Terrasses Littoral
Terrasses Littoral
Bretignolles-sur-Mer (85470)

Appartements de 2 à 3 pièces
Livraison 3ème trimestre 2027

LE NAUTILIA
LE NAUTILIA
Saint-Gilles-Croix-de-Vie (85800)

Appartements de 2 à 3 pièces
Livraison 1er trimestre 2027

OPALE
OPALE
Saint-Gilles-Croix-de-Vie (85800)

Appartements de 2 à 4 pièces
Livraison 4ème trimestre 2026

Domaine des Aubrais - Apparts
Domaine des Aubrais - Apparts
Saint-Hilaire-de-Riez (85270)

Appartements de 2 à 3 pièces
Livraison 3ème trimestre 2027

Contacter LMP CONSTRUCTEUR pour recevoir plus d'informations

Remplissez le formulaire ci-dessous, vos informations sont transmises directement au constructeur qui vous contactera par email ou par téléphone afin de traiter votre demande. En savoir plus.

Voir tous nos programmes immobiliers neufs à Saint-Révérend