Maison neuve, 123 m² - Saint-Laurent-de-la-Prée (17450)

332 344 €
Saint-Laurent-de-la-Prée (17450)

Proposée par ELYSEES OCEAN – 4 pièces - 3 chambres - terrain 780 m²

Elysees Ocean
Elysees Ocean
  • Demande d'information
MAISON À CONSTRUIRE : ceci est une annonce d'une maison neuve à construire.
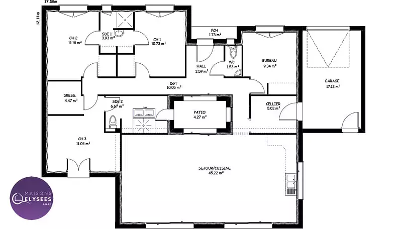
Sur ce terrain, nous vous proposons cette maison neuve, la Patia, conçue par Elysees Ocean, le constructeur aux meilleurs avis clients de la profession. Avec une surface de 123 m², cette maison moderne et élégante offre 3 chambres et 4 pièces, parfaitement agencées pour répondre à vos besoins.
La Patia se distingue par son design contemporain et ses espaces de vie bien distincts. La maison s'articule autour d'un patio central, permettant à la lumière naturelle de pénétrer par tous les côtés. Le vaste séjour, ouvert sur le patio, crée une atmosphère conviviale et chaleureuse, idéale pour recevoir vos proches.
Les grandes ouvertures de la maison permettent d'emmagasiner de l'énergie gratuite à toute heure du jour, contribuant ainsi à une luminosité exceptionnelle dans chaque pièce. La suite parentale, spacieuse et confortable, offre un espace privé et intime pour les parents.
Cette maison neuve est également basse consommation et conforme à la réglementation environnementale RE2020, garantissant des performances énergétiques optimales et un respect de l'environnement. Les menuiseries en aluminium, très demandées par nos clients, ajoutent une touche de modernité et de durabilité à l'ensemble.
En quelques mots, la Patia, c'est du design, des espaces de vie bien distincts et de la lumière partout. Ne manquez pas cette opportunité unique de devenir propriétaire d'une maison alliant confort, modernité et respect de l'environnement.
Référence : 25195

Les informations sur les risques auxquels ce bien est exposé sont disponibles sur le site Géorisques : www.georisques.gouv.fr


Prix
  • Prix total : 332 344 €
  • Prix du modèle de maison : 194 544 €
  • Prix du terrain : 137 800 €

Terrain
  • Surface : 780 m²

Maison
  • Surface : 123 m²
  • Pièces : 4
  • Chambres : 3

  • Être rappelé par un conseiller
  • Demander plus d’infos
  • Demande d'information
Saint-Laurent-de-la-Prée (17450)

Programmes à proximité

L'ESTRAN TR 2
L'ESTRAN TR 2
Fouras (17450)

Appartements de 2 à 3 pièces et maisons de 4 pièces
Livraison 1er trimestre 2028

LES DEUX RIVAGES
LES DEUX RIVAGES
Fouras (17450)

Appartements de 3 pièces
Livraison 3ème trimestre 2025

Prochainement à Rochefort
Prochainement à Rochefort
Rochefort (17300)

Appartements de 2 à 4 pièces
Livraison 2ème trimestre 2028

DOMAINE DU HAUT RILLON
DOMAINE DU HAUT RILLON
Châtelaillon-Plage (17340)

Appartements de 2 à 4 pièces
Livraison 1er trimestre 2028

VILLA MARINE
VILLA MARINE
Châtelaillon-Plage (17340)

Appartements de 2 à 4 pièces
Livraison 1er trimestre 2028

Le Clos du Chemin Vert
Le Clos du Chemin Vert
La Jarrie (17220)

Appartements de 3 à 5 pièces et maisons de 5 à 6 pièces et locaux commerciaux
Livraison 4ème trimestre 2026

Contacter ELYSEES OCEAN pour recevoir plus d'informations

Remplissez le formulaire ci-dessous, vos informations sont transmises directement au constructeur qui vous contactera par email ou par téléphone afin de traiter votre demande. En savoir plus.

Voir tous nos programmes immobiliers neufs à Saint-Laurent-de-la-Prée