Maison neuve, 100 m² - Saint-Just-Saint-Rambert (42170)

289 000 €
Saint-Just-Saint-Rambert (42170)

Proposée par MAISONS PUNCH SAINT-ÉTIENNE – 5 pièces - 4 chambres - terrain 375 m²

Maisons Punch Saint-Étienne
Maisons Punch Saint-Étienne
(70 avis)
  • Demande d'information
MAISON À CONSTRUIRE : ceci est une annonce d'une maison neuve à construire.
Projet de construction de maison individuelle à SAINT JUST SAINT RAMBERT
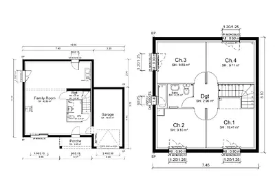
Maisons Punch, constructeur depuis 1987, propose une maison de 100 m² avec un garage de 20 m² sur un terrain de 375 m² viabilisé et plat en lotissement. Cette maison à étage comprend 4 chambres, 1 salle de bain et un espace de vie spacieux et lumineux. Vous apprécierez la belle exposition dans un environnement calme, proche du centre-ville, des commodités et des axes routiers. Prestations soignées et respect des dernières normes thermiques. Offrez-vous le meilleur rapport prestations/prix pour une maison sur mesure à Saint Just Saint Rambert !
Référence : 1353 VIAL Guillaume
Terrain proposé et vendu par notre partenaire foncier selon disponibilités, le constructeur n’étant pas mandaté pour réaliser la vente du terrain. Prix terrain inclus : 119 000 € Frais de notaire non inclus : € Prix maison inclus : 170 000 € VRD non inclus : € Hors aménagements extérieurs (extensions, terrasse, piscine etc), papiers peints, peintures, moquettes dans les chambres (tarif en vigueur au 20 mai 2025, modifiable sans préavis, prix variables suivant les prestations souhaitées). Hors frais d’hypothèque. Différents modèles disponibles pour chaque terrain. Assurance RC professionnelle/décennale/dommage ouvrage groupe Aviva. Garantie de remboursement de l'acompte/livraison à prix et délai convenu CGI.

Les informations sur les risques auxquels ce bien est exposé sont disponibles sur le site Géorisques : www.georisques.gouv.fr


Prix
  • Prix total : 289 000 €
  • Prix du modèle de maison : 170 000 €
  • Prix du terrain : 119 000 €

Terrain
  • Surface : 375 m²

Maison
  • Surface : 100 m²
  • Pièces : 5
  • Chambres : 4
  • Salle de bains : 1
  • Garage : 1

  • Être rappelé par un conseiller
  • Demander plus d’infos
  • Demande d'information
Saint-Just-Saint-Rambert (42170)

Programmes à proximité

LES HIRONDELLES
LES HIRONDELLES
Andrézieux-Bouthéon (42160)

Appartements de 2 à 5 pièces
Livraison 4ème trimestre 2027

L'OREE DU PARC
L'OREE DU PARC
Villars (42390)

Appartements de 2 à 4 pièces
Livraison 4ème trimestre 2026

Dernier studio disponible
Dernier studio disponible
Saint-Étienne (42000)

Appartement de 1 pièce
Livraison 4ème trimestre 2025

DOCKS 42
DOCKS 42
Saint-Étienne (42000)

Appartements de 2 à 4 pièces
Livraison 3ème trimestre 2027

COEUR VERT
COEUR VERT
Saint-Étienne (42000)

Appartements de 3 à 5 pièces
Livraison 1er trimestre 2026

Les Terrasses d'Elynn
Les Terrasses d'Elynn
La Talaudière (42350)

Appartements de 3 à 4 pièces et maison de 4 pièces
Livraison 3ème trimestre 2027

Contacter MAISONS PUNCH SAINT-ÉTIENNE pour recevoir plus d'informations

Remplissez le formulaire ci-dessous, vos informations sont transmises directement au constructeur qui vous contactera par email ou par téléphone afin de traiter votre demande. En savoir plus.

Voir tous nos programmes immobiliers neufs à Saint-Just-Saint-Rambert