Maison neuve, 149 m² - Saint-Georges-des-Gardes (49120)

375 200 €
Saint-Georges-des-Gardes (49120)

Proposée par MAISONS BERNARD JAMBERT – 6 pièces - 4 chambres - terrain 500 m²

MAISONS BERNARD JAMBERT
MAISONS BERNARD JAMBERT
  • Demande d'information
MAISON À CONSTRUIRE : ceci est une annonce d'une maison neuve à construire.
VENTE : maison T6 (149 m²) à Saint-Georges-des-Gardes
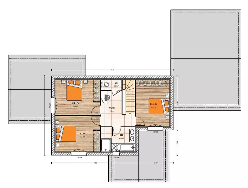
Idéalement située - À découvrir à Saint-Georges-des-Gardes (49120) : maison neuve 6 pièces à vendre, 2 niveaux, 149 m² de surface sur 500 m² de terrain. Elle offre quatre chambres, une cuisine et deux salles de bains.
À dix minutes : gare (Chemillé-en-Anjou), École Primaire Privée Notre Dame de la Colline, crèche, tennis et boulangerie. Accès autoroute A87 à 9 km. Cholet à 17 km,
Cette maison de 6 pièces est à vendre pour la somme de 375 200 €.
Contactez notre agence (JANNEAU Mathieu : 06-01-35-24-98) pour plus de renseignements sur la maison ou sur les démarches à suivre. Maisons Bernard Jambert Angers est là pour vous accompagner dans tous vos projets immobiliers.
Référence : MJ2417115_2
Terrain proposé par un partenaire foncier selon disponibilités et autorisation de publicité au prix de 55 000 €. Hors droit d'enregistrement et frais de notaire. Terrain + Maison proposés au prix de 320 200 € (Hors branchements et raccordements, papiers peints, peintures, revêtement de sol dans les chambres. Tarif modifiable sans préavis). Etiquette énergie : A. Différents modèles disponibles pour ce terrain. Assurances et garanties du constructeur (RC professionnelle, décennale, dommage ouvrage, garantie de remboursement de l'acompte, livraison à prix et délai convenu) : https://www.maisons-bernard-jambert.com/informations-legales/.

Les informations sur les risques auxquels ce bien est exposé sont disponibles sur le site Géorisques : www.georisques.gouv.fr


Prix
  • Prix total : 375 200 €
  • Prix du modèle de maison : 320 200 €
  • Prix du terrain : 55 000 €

Terrain
  • Surface : 500 m²

Maison
  • Surface : 149 m²
  • Pièces : 6
  • Chambres : 4
  • Garage : 1

  • Être rappelé par un conseiller
  • Demander plus d’infos
  • Demande d'information
Saint-Georges-des-Gardes (49120)

Programmes à proximité

Les Cotonnières
Les Cotonnières
Cholet (49300)

Appartements de 1 à 4 pièces
Livraison 3ème trimestre 2029

Les Jardins des Mauges
Les Jardins des Mauges
Cholet (49300)

Appartements de 2 à 4 pièces
Livraison 4ème trimestre 2026

Les Jardins des Mauges II
Les Jardins des Mauges II
Cholet (49300)

Appartements de 1 à 3 pièces
Livraison 1er trimestre 2028

ORGANZA
ORGANZA
Cholet (49300)

Appartements de 3 pièces et maisons de 3 pièces
Livraison 2ème trimestre 2026

Les Confluences
Les Confluences
Chalonnes-sur-Loire (49290)

Appartements de 2 à 5 pièces
Livraison 4ème trimestre 2026

Le Clos de la Roseraie
Le Clos de la Roseraie
Mortagne-sur-Sèvre (85290)

Appartements de 2 à 4 pièces
Livraison 1er trimestre 2028

Contacter MAISONS BERNARD JAMBERT pour recevoir plus d'informations

Remplissez le formulaire ci-dessous, vos informations sont transmises directement au constructeur qui vous contactera par email ou par téléphone afin de traiter votre demande. En savoir plus.

Voir tous nos programmes immobiliers neufs à Saint-Georges-des-Gardes