Maison neuve, 126 m² - Saint-Christophe (17220)

320 000 €
Saint-Christophe (17220)

Proposée par BATISOFT – 5 pièces - 3 chambres - terrain 1 000 m²

BATISOFT
BATISOFT
(60 avis)
  • Demande d'information
MAISON À CONSTRUIRE : ceci est une annonce d'une maison neuve à construire.
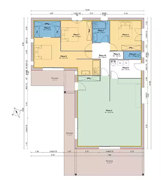
À vendre, sur la commune de Saint-Christophe (17220), charmante maison de plain-pied au style bassin, offrant une surface habitable de 126 m².
Elle se compose d'une pièce de vie lumineuse, d'une cuisine ouverte, de 3 chambres, de 2 salles de bain et d'un espace bureau ou salle de jeux selon vos besoins.
Édifiée sur un terrain agréable, la maison bénéficie d'un cadre calme et verdoyant, tout en restant proche des commodités : boulangerie, épicerie/tabac, boucherie, restaurants et services essentiels à moins de 5 minutes. Les supermarchés et écoles sont accessibles rapidement à Aigrefeuille-d'Aunis ou La Jarrie.
Idéalement située, la commune offre un accès rapide à La Rochelle (20 min), à la gare du Thou (5 km) et à l'aéroport de La Rochelle (17 km). Référence : FD2250202_1

Les informations sur les risques auxquels ce bien est exposé sont disponibles sur le site Géorisques : www.georisques.gouv.fr


Prix
  • Prix total : 320 000 €
  • Prix du modèle de maison : 220 000 €
  • Prix du terrain : 100 000 €

Terrain
  • Surface : 1 000 m²

Maison
  • Surface : 126 m²
  • Pièces : 5
  • Chambres : 3

  • Être rappelé par un conseiller
  • Demander plus d’infos
  • Demande d'information
Saint-Christophe (17220)

Maisons à proximité

Le Clos du Chemin Vert
Le Clos du Chemin Vert
La Jarrie (17220)

Appartements de 3 à 5 pièces et maisons de 5 à 6 pièces et locaux commerciaux
Livraison 4ème trimestre 2026

Programmes à proximité

Le Clos du Chemin Vert
Le Clos du Chemin Vert
La Jarrie (17220)

Appartements de 3 à 5 pièces et maisons de 5 à 6 pièces et locaux commerciaux
Livraison 4ème trimestre 2026

L'Azuré
L'Azuré
Aytré (17440)

Appartements de 2 à 5 pièces
Livraison 3ème trimestre 2027

VILLA MARINE
VILLA MARINE
Châtelaillon-Plage (17340)

Appartements de 2 à 4 pièces
Livraison 1er trimestre 2028

Domaine du Haut-Rillon
Domaine du Haut-Rillon
Châtelaillon-Plage (17340)

Appartements de 2 à 4 pièces
Livraison 1er trimestre 2028

Bel'Hameau
Bel'Hameau
Puilboreau (17138)

Appartements de 2 à 3 pièces
Livraison 1er trimestre 2028

L'ENVOLEE
L'ENVOLEE
La Rochelle (17000)

Appartements de 1 pièce
Livraison 4ème trimestre 2028

Contacter BATISOFT pour recevoir plus d'informations

Remplissez le formulaire ci-dessous, vos informations sont transmises directement au constructeur qui vous contactera par email ou par téléphone afin de traiter votre demande. En savoir plus.

Voir tous nos programmes immobiliers neufs à Saint-Christophe