Maison neuve, 94 m² - Revonnas (01250)

279 000 €
Revonnas (01250)

Proposée par MAISONS PUNCH SAINT PRIEST – 4 pièces - 3 chambres - terrain 799 m²

Maisons PUNCH Saint Priest
Maisons PUNCH Saint Priest
(57 avis)
  • Demande d'information
MAISON À CONSTRUIRE : ceci est une annonce d'une maison neuve à construire.
Produit rare à saisir au plus vite.
Situé sur la jolie commune de Revonnas à 20 min de bourg dans un cadre calme et arboré.
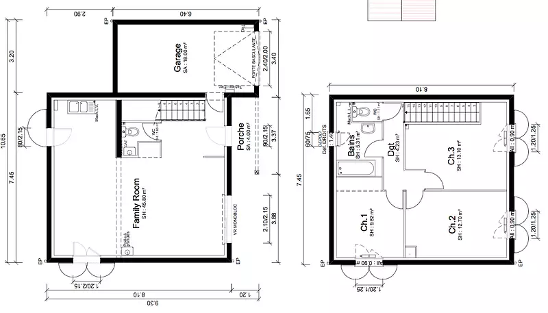
Sur une parcelle de 799 m² entièrement viabilisée, Maisons punch vous propose une construction neuve à étage de 94m².
Cette maison est composée d’une partie jour avec une très belle pièce de vie de 45m² avec cuisine ouverte sur le séjour et un WC au rez de chaussé.
La partie nuit est répartie en 3 chambres dont 2 de 13m² et une de 10m² ainsi qu’une salle de bain avec baignoire ou douche au choix, un lavabo et un WC séparé.
Pour finir, la maison possède un garage de 18m² permettant de garer une voiture et d’avoir un espace de stockage au fond.
Plan entièrement personnalisables au bon vouloir des futurs acquéreurs.
Nombreuses prestations possibles
CONSTRUCTION, TERRAIN ET VRD INCLUS DANS LE PRIX.
Prestations de qualités : volets roulants intégrés électrique et connectés, Pompe à chaleur
Maison conforme à la RE 2020
Référence : 5410 DUFOR Arnaud
Terrain proposé et vendu par notre partenaire foncier selon disponibilités, le constructeur n’étant pas mandaté pour réaliser la vente du terrain. Prix terrain inclus : 106 000 € Frais de notaire non inclus : € Prix maison inclus : 173 000 € VRD non inclus : € Hors aménagements extérieurs (extensions, terrasse, piscine etc), papiers peints, peintures, moquettes dans les chambres (tarif en vigueur au 20 mai 2025, modifiable sans préavis, prix variables suivant les prestations souhaitées). Hors frais d’hypothèque. Différents modèles disponibles pour chaque terrain. Assurance RC professionnelle/décennale/dommage ouvrage groupe Aviva. Garantie de remboursement de l'acompte/livraison à prix et délai convenu CGI. Partenaire financier : à préciser Le numéro de TVA intracommunautaire : FR 14 498 627 272 00012 Contact : contact@maisons-punch.fr

Les informations sur les risques auxquels ce bien est exposé sont disponibles sur le site Géorisques : www.georisques.gouv.fr


Prix
  • Prix total : 279 000 €
  • Prix du modèle de maison : 173 000 €
  • Prix du terrain : 106 000 €

Terrain
  • Surface : 799 m²

Maison
  • Surface : 94 m²
  • Pièces : 4
  • Chambres : 3
  • Salle de bains : 1
  • Garage : 1
  • Surface garage : 18 m²

  • Être rappelé par un conseiller
  • Demander plus d’infos
  • Demande d'information
Revonnas (01250)

Programmes à proximité

Coeur Citadelle
Coeur Citadelle
Bourg-en-Bresse (01000)

Appartements de 2 à 5 pièces
Livraison 4ème trimestre 2027

Les Balcons d'Annie
Les Balcons d'Annie
Bourg-en-Bresse (01000)

Appartements de 1 à 4 pièces
Livraison 3ème trimestre 2026

J.O.U.R
J.O.U.R
Bourg-en-Bresse (01000)

Appartements de 2 à 5 pièces
Livraison 2ème trimestre 2027

TILIA
TILIA
Bourg-en-Bresse (01000)

Appartements de 2 à 4 pièces

Espace Milliat
Espace Milliat
Bourg-en-Bresse (01000)

Appartements de 2 à 4 pièces
Livraison 3ème trimestre 2025

Le Clos des Maraîchers
Le Clos des Maraîchers
Bourg-en-Bresse (01000)

Appartements de 2 à 4 pièces
Livraison 3ème trimestre 2027

Contacter MAISONS PUNCH SAINT PRIEST pour recevoir plus d'informations

Remplissez le formulaire ci-dessous, vos informations sont transmises directement au constructeur qui vous contactera par email ou par téléphone afin de traiter votre demande. En savoir plus.

Voir tous nos programmes immobiliers neufs à Revonnas