Maison neuve, 107 m² - Rebais (77510)
241 176 €
Rebais (77510)
Proposée par BABEAU SEGUIN AGENCE DE COULOMMIERS – SEINE ET MAR – 5 pièces - 4 chambres - terrain 880 m²
|
|
| Babeau Seguin Agence de Coulommiers – Seine et Mar |
- Demande d'information
- Prendre rendez-vous
MAISON À CONSTRUIRE : ceci est une annonce d'une maison neuve à construire.
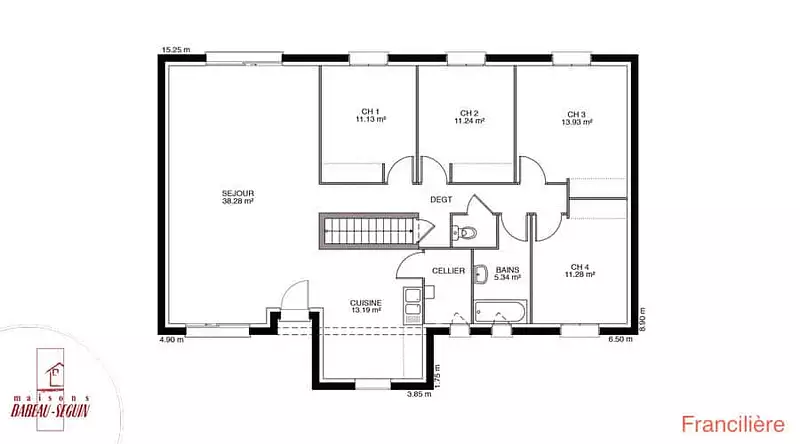
Sur ce terrain, nous vous proposons cette maison neuve : la Francilière. Avec une surface de 107 m², cette maison de plain-pied, 100% conforme à la RE2020, est idéale pour les familles à la recherche d'un logement basse consommation.
La Francilière se distingue par son design peu commun dans la maison individuelle et offre un aménagement intérieur répondant parfaitement aux critères des familles les plus exigeantes. Elle dispose de 4 chambres et de 4 pièces, dont une grande pièce de vie de plus de 38 m², parfaite pour vos moments en famille ou entre amis.
Disponible avec un toit à 2 pans ou 4 pans, cette maison est bien proportionnée et facilement personnalisable. Vous avez également la possibilité d'ajouter un garage en option pour encore plus de confort.
Laissez-vous charmer par cette maison design qui saura vous surprendre autant qu'elle vous plaira. Construite par Babeau-Seguin, constructeur reconnu pour offrir le meilleur rapport qualité/prix du marché, la Francilière est une opportunité à ne pas manquer pour ceux qui recherchent une maison neuve, moderne et économe en énergie.
N'attendez plus pour découvrir cette maison qui allie confort, design et performance énergétique. Contactez-nous pour plus d'informations et pour organiser une visite.
Référence : 69372
Les informations sur les risques auxquels ce bien est exposé sont disponibles sur le site Géorisques : www.georisques.gouv.fr
La Francilière se distingue par son design peu commun dans la maison individuelle et offre un aménagement intérieur répondant parfaitement aux critères des familles les plus exigeantes. Elle dispose de 4 chambres et de 4 pièces, dont une grande pièce de vie de plus de 38 m², parfaite pour vos moments en famille ou entre amis.
Disponible avec un toit à 2 pans ou 4 pans, cette maison est bien proportionnée et facilement personnalisable. Vous avez également la possibilité d'ajouter un garage en option pour encore plus de confort.
Laissez-vous charmer par cette maison design qui saura vous surprendre autant qu'elle vous plaira. Construite par Babeau-Seguin, constructeur reconnu pour offrir le meilleur rapport qualité/prix du marché, la Francilière est une opportunité à ne pas manquer pour ceux qui recherchent une maison neuve, moderne et économe en énergie.
N'attendez plus pour découvrir cette maison qui allie confort, design et performance énergétique. Contactez-nous pour plus d'informations et pour organiser une visite.
Référence : 69372
Les informations sur les risques auxquels ce bien est exposé sont disponibles sur le site Géorisques : www.georisques.gouv.fr
- Prix
-
- Prix total : 241 176 €
- Prix du modèle de maison : 191 176 €
- Prix du terrain : 50 000 €
- Terrain
-
- Surface : 880 m²
- Maison
-
- Surface : 107 m²
- Pièces : 5
- Chambres : 4
- Être rappelé par un conseiller
- Demander plus d’infos
- Demande d'information
Rebais (77510)
Maisons à proximité
Maison neuve, 73 m²
Rebais (77510)
Rebais (77510)
Maison de 5 pièces
Maison neuve, 132 m²
Rebais (77510)
Rebais (77510)
Maison de 7 pièces
Maison neuve, 90 m²
Rebais (77510)
Rebais (77510)
Maison de 5 pièces
Maison neuve, 87 m²
Rebais (77510)
Rebais (77510)
Maison de 5 pièces
Maison neuve, 49 m²
Rebais (77510)
Rebais (77510)
Maison de 3 pièces
Maison neuve, 102 m²
Rebais (77510)
Rebais (77510)
Maison de 5 pièces
Programmes à proximité
Villa Montesquiou
Coulommiers (77120)
Coulommiers (77120)
Appartements de 2 à 4 pièces
CLOS MONTBARBIN
Crécy-la-Chapelle (77580)
Crécy-la-Chapelle (77580)
Appartements de 2 à 4 pièces
Livraison 1er trimestre 2028
LE HAMEAU DE L'OURCQ
Lizy-sur-Ourcq (77440)
Lizy-sur-Ourcq (77440)
Appartements de 3 à 4 pièces et maisons de 4 à 5 pièces
Livraison 3ème trimestre 2028
Contacter BABEAU SEGUIN AGENCE DE COULOMMIERS – SEINE ET MAR pour recevoir plus d'informations
Remplissez le formulaire ci-dessous, vos informations sont transmises directement au constructeur qui vous contactera par email ou par téléphone afin de traiter votre demande. En savoir plus.