Maison neuve, 122 m² - Réau (77550)
369 000 €
Réau (77550)
Proposée par MAISONS EVOLUTION – 6 pièces - 4 chambres - terrain 621 m²
|
|
| MAISONS EVOLUTION |
- Demande d'information
- Prendre rendez-vous
MAISON À CONSTRUIRE : ceci est une annonce d'une maison neuve à construire.
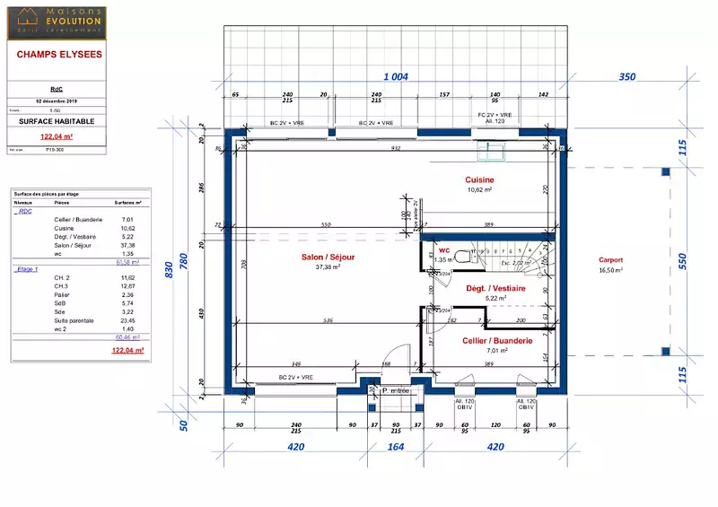
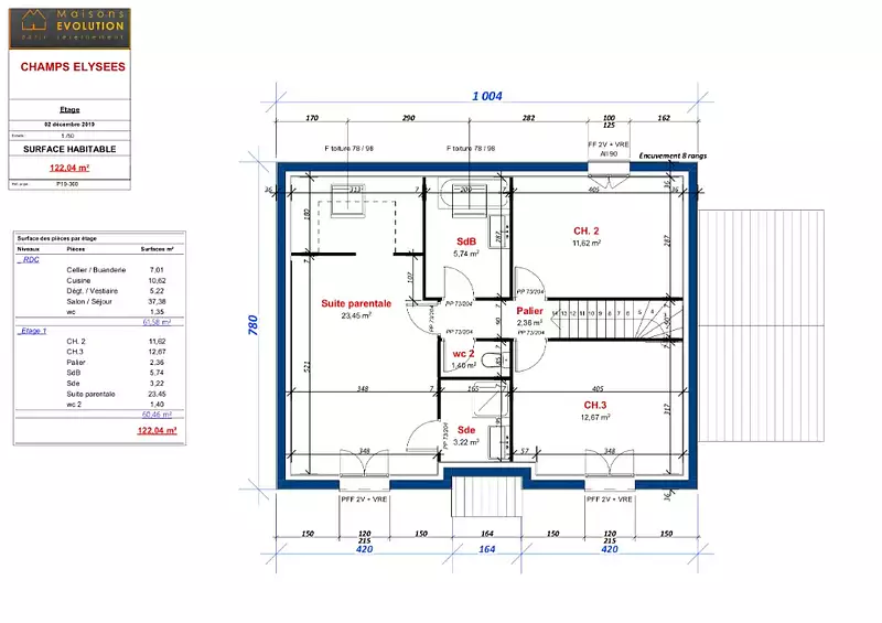
Découvrez cette très jolie maison moderne de 122 m² habitables, aux dernières normes énergétiques, idéalement située sur la commune de REAU
Elle est composée de 3 grandes chambres dont une grande suite parentale avec salle d'eau, d'une seconde salle de bains, de deux WC séparés et d'un grand salon-séjour lumineux avec cuisine ouverte donnant sur un vaste cellier/buanderie. Il est possible d'y ajouter un garage ou un carport.
Les plans sont entièrement modifiables selon vos souhaits, en agence ou visioconférence. Nous vous proposons un véritable accompagnement de qualité tout au long de votre projet.
Dessinons ensemble votre future maison !Annonce proposée par un Agent Commercial Partenaire.
Référence : SS2299686_4
Terrain proposé par un partenaire foncier selon disponibilités et autorisation de publicité au prix de 150 000 €. Hors droit d'enregistrement et frais de notaire. Terrain + Maison proposés au prix de 219 000 € (Hors branchements et raccordements, papiers peints, peintures, revêtement de sol dans les chambres. Tarif modifiable sans préavis). Etiquette énergie : A. Différents modèles disponibles pour ce terrain.
Les informations sur les risques auxquels ce bien est exposé sont disponibles sur le site Géorisques : www.georisques.gouv.fr
Elle est composée de 3 grandes chambres dont une grande suite parentale avec salle d'eau, d'une seconde salle de bains, de deux WC séparés et d'un grand salon-séjour lumineux avec cuisine ouverte donnant sur un vaste cellier/buanderie. Il est possible d'y ajouter un garage ou un carport.
Les plans sont entièrement modifiables selon vos souhaits, en agence ou visioconférence. Nous vous proposons un véritable accompagnement de qualité tout au long de votre projet.
Dessinons ensemble votre future maison !Annonce proposée par un Agent Commercial Partenaire.
Référence : SS2299686_4
Terrain proposé par un partenaire foncier selon disponibilités et autorisation de publicité au prix de 150 000 €. Hors droit d'enregistrement et frais de notaire. Terrain + Maison proposés au prix de 219 000 € (Hors branchements et raccordements, papiers peints, peintures, revêtement de sol dans les chambres. Tarif modifiable sans préavis). Etiquette énergie : A. Différents modèles disponibles pour ce terrain.
Les informations sur les risques auxquels ce bien est exposé sont disponibles sur le site Géorisques : www.georisques.gouv.fr
- Prix
-
- Prix total : 369 000 €
- Prix du modèle de maison : 219 000 €
- Prix du terrain : 150 000 €
- Terrain
-
- Surface : 621 m²
- Maison
-
- Surface : 122 m²
- Pièces : 6
- Chambres : 4
- Garage : 1
- Être rappelé par un conseiller
- Demander plus d’infos
- Demande d'information
Réau (77550)
Maisons à proximité
Maison neuve, 73 m²
Réau (77550)
Réau (77550)
Maison de 4 pièces
Maison neuve, 126 m²
Réau (77550)
Réau (77550)
Maison de 5 pièces
Maison neuve, 145 m²
Réau (77550)
Réau (77550)
Maison de 5 pièces
Maison neuve, 104 m²
Réau (77550)
Réau (77550)
Maison de 4 pièces
Maison neuve, 102 m²
Réau (77550)
Réau (77550)
Maison de 6 pièces
Maison neuve, 132 m²
Réau (77550)
Réau (77550)
Maison de 6 pièces
Programmes à proximité
La Résidence du Chateau
Savigny-le-Temple (77176)
Savigny-le-Temple (77176)
Appartements de 1 à 5 pièces
Livraison 1er trimestre 2028
NOUVEL ANGLE
Savigny-le-Temple (77176)
Savigny-le-Temple (77176)
Appartements de 1 à 4 pièces
Livraison 2ème trimestre 2028
Le Parc des Lumières
Vert-Saint-Denis (77240)
Vert-Saint-Denis (77240)
Appartements de 2 à 4 pièces
Livraison 3ème trimestre 2026
LE SEGUR
Cesson (77240)
Cesson (77240)
Appartements de 2 à 3 pièces
Livraison 3ème trimestre 2027
ECHAPPEE VERTE
Cesson (77240)
Cesson (77240)
Appartements de 2 à 4 pièces
Livraison 2ème trimestre 2026
Résidence de la Dame Bleue
Lieusaint (77127)
Lieusaint (77127)
Appartement de 3 pièces
Contacter MAISONS EVOLUTION pour recevoir plus d'informations
Remplissez le formulaire ci-dessous, vos informations sont transmises directement au constructeur qui vous contactera par email ou par téléphone afin de traiter votre demande. En savoir plus.