Maison neuve, 124 m² - Puygiron (26160)
353 000 €
Puygiron (26160)
Proposée par MAISONS FRANCE CONFORT – 5 pièces - 4 chambres - terrain 715 m²
|
|
| MAISONS FRANCE CONFORT |
| (119 avis) |
- Demande d'information
- Prendre rendez-vous
MAISON À CONSTRUIRE : ceci est une annonce d'une maison neuve à construire.
Située dans un cadre paisible, cette villa de 124 m² allie élégance et fonctionnalité!!!
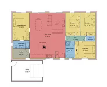
À l'intérieur, vous serez accueilli par un espace de vie de 53,80m², comprenant une cuisine ouverte sur un salon et une salle à manger lumineuse. L'espace nuit se compose de 3 chambres confortables et d'une salle de bains moderne. Une suite parentale séparée de la partie nuit offre l'intimité et le confort nécessaires pour vous détendre en toute tranquillité.
Cette maison de plain-pied, conforme à la Réglementation Environnementale RE2020, vous assure un habitat écologique et économe en énergie. De plus, elle est dotée d'un garage, directement accessible depuis la maison, pour votre plus grand confort au quotidien.
Vous serez également séduit par les nombreuses options disponibles, telles que les volets roulants électriques, la centralisation et la domotique, ajoutant une touche de modernité à votre foyer.
.
Contactez-le sans plus tarder, pour donner vie à votre projet !!!
Référence : OP2297817_4
Terrain proposé par un partenaire foncier selon disponibilités et autorisation de publicité au prix de 122 000 €. Hors droit d'enregistrement et frais de notaire. Maison proposée, avec un contrat de construction de maison individuelle, dans le cadre de la loi du 19/12/1990, au prix de 231 000 € (Hors branchements et raccordements, papiers peints, peintures, revêtement de sol dans les chambres, qui sont chiffrés dans les travaux qui restent à charge du client. Tarif modifiable sans préavis). Étiquette énergie : A. Différents modèles disponibles pour ce terrain. Assurances et garanties du constructeur comprises (RC professionnelle, décennale, dommage ouvrage).
Les informations sur les risques auxquels ce bien est exposé sont disponibles sur le site Géorisques : www.georisques.gouv.fr
À l'intérieur, vous serez accueilli par un espace de vie de 53,80m², comprenant une cuisine ouverte sur un salon et une salle à manger lumineuse. L'espace nuit se compose de 3 chambres confortables et d'une salle de bains moderne. Une suite parentale séparée de la partie nuit offre l'intimité et le confort nécessaires pour vous détendre en toute tranquillité.
Cette maison de plain-pied, conforme à la Réglementation Environnementale RE2020, vous assure un habitat écologique et économe en énergie. De plus, elle est dotée d'un garage, directement accessible depuis la maison, pour votre plus grand confort au quotidien.
Vous serez également séduit par les nombreuses options disponibles, telles que les volets roulants électriques, la centralisation et la domotique, ajoutant une touche de modernité à votre foyer.
.
Contactez-le sans plus tarder, pour donner vie à votre projet !!!
Référence : OP2297817_4
Terrain proposé par un partenaire foncier selon disponibilités et autorisation de publicité au prix de 122 000 €. Hors droit d'enregistrement et frais de notaire. Maison proposée, avec un contrat de construction de maison individuelle, dans le cadre de la loi du 19/12/1990, au prix de 231 000 € (Hors branchements et raccordements, papiers peints, peintures, revêtement de sol dans les chambres, qui sont chiffrés dans les travaux qui restent à charge du client. Tarif modifiable sans préavis). Étiquette énergie : A. Différents modèles disponibles pour ce terrain. Assurances et garanties du constructeur comprises (RC professionnelle, décennale, dommage ouvrage).
Les informations sur les risques auxquels ce bien est exposé sont disponibles sur le site Géorisques : www.georisques.gouv.fr
- Prix
-
- Prix total : 353 000 €
- Prix du modèle de maison : 231 000 €
- Prix du terrain : 122 000 €
- Terrain
-
- Surface : 715 m²
- Maison
-
- Surface : 124 m²
- Pièces : 5
- Chambres : 4
- Garage : 1
- Être rappelé par un conseiller
- Demander plus d’infos
- Demande d'information
Puygiron (26160)
Maisons à proximité
Maison neuve, 73 m²
Puygiron (26160)
Puygiron (26160)
Maison de 4 pièces
Maison neuve, 90 m²
Puygiron (26160)
Puygiron (26160)
Maison de 4 pièces
Maison neuve, 83 m²
Puygiron (26160)
Puygiron (26160)
Maison de 5 pièces
Maison neuve, 140 m²
Puygiron (26160)
Puygiron (26160)
Maison de 6 pièces
Maison neuve, 129 m²
Puygiron (26160)
Puygiron (26160)
Maison de 5 pièces
Maison neuve, 121 m²
Puygiron (26160)
Puygiron (26160)
Maison de 5 pièces
Programmes à proximité
Contacter MAISONS FRANCE CONFORT pour recevoir plus d'informations
Remplissez le formulaire ci-dessous, vos informations sont transmises directement au constructeur qui vous contactera par email ou par téléphone afin de traiter votre demande. En savoir plus.