Maison neuve, 129 m² - Puygiron (26160)
430 628 €
Puygiron (26160)
Proposée par MAISONS FRANCE CONFORT – 5 pièces - 4 chambres - terrain 715 m²
|
|
| MAISONS FRANCE CONFORT |
| (119 avis) |
- Demande d'information
- Prendre rendez-vous
MAISON À CONSTRUIRE : ceci est une annonce d'une maison neuve à construire.
Maison Bastide - 129,67 m² : le charme du traditionnel et le confort du moderne
Découvrez le modèle Bastide, une maison traditionnelle du Sud de la France de 129,67 m² qui séduit par son élégance et ses volumes généreux.
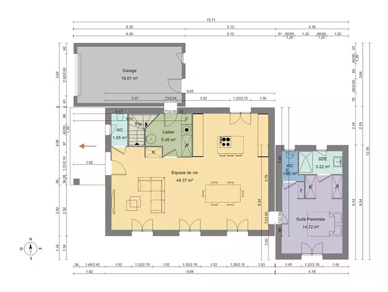
Au rez-de-chaussée, profitez d'une vaste pièce de vie lumineuse de 49,37 m² avec cuisine ouverte sur salle à manger et salon, complétée par un cellier attenant à la cuisine et au garage. Vous bénéficierez également d'une suite parentale indépendante avec dressing, salle d'eau et WC.
À l'étage, le palier dessert deux chambres confortables, une salle de bains avec WC, ainsi qu'une belle suite parentale avec dressing et salle d'eau privative.
Cette maison associe authenticité et modernité, avec de nombreuses options pour s'adapter à vos envies : volets battants pour l'esthétique, volets roulants électriques, centralisation des ouvertures, solutions domotiques, pompe à chaleur avec plancher chauffant... autant d'atouts pour un confort optimal.
Pour plus d'informations sur ce modèle ou découvrir d'autres projets personnalisables, contactez dès aujourd'hui :Maisons France Confort
Je vous accompagne dans toutes les étapes de votre projet de construction afin de bâtir la maison qui vous ressemble.
Référence : OP2297817_1
Terrain proposé par un partenaire foncier selon disponibilités et autorisation de publicité au prix de 122 000 €. Hors droit d'enregistrement et frais de notaire. Maison proposée, avec un contrat de construction de maison individuelle, dans le cadre de la loi du 19/12/1990, au prix de 308 628 € (Hors branchements et raccordements, papiers peints, peintures, revêtement de sol dans les chambres, qui sont chiffrés dans les travaux qui restent à charge du client. Tarif modifiable sans préavis). Étiquette énergie : A. Différents modèles disponibles pour ce terrain. Assurances et garanties du constructeur comprises (RC professionnelle, décennale, dommage ouvrage).
Les informations sur les risques auxquels ce bien est exposé sont disponibles sur le site Géorisques : www.georisques.gouv.fr
Découvrez le modèle Bastide, une maison traditionnelle du Sud de la France de 129,67 m² qui séduit par son élégance et ses volumes généreux.
Au rez-de-chaussée, profitez d'une vaste pièce de vie lumineuse de 49,37 m² avec cuisine ouverte sur salle à manger et salon, complétée par un cellier attenant à la cuisine et au garage. Vous bénéficierez également d'une suite parentale indépendante avec dressing, salle d'eau et WC.
À l'étage, le palier dessert deux chambres confortables, une salle de bains avec WC, ainsi qu'une belle suite parentale avec dressing et salle d'eau privative.
Cette maison associe authenticité et modernité, avec de nombreuses options pour s'adapter à vos envies : volets battants pour l'esthétique, volets roulants électriques, centralisation des ouvertures, solutions domotiques, pompe à chaleur avec plancher chauffant... autant d'atouts pour un confort optimal.
Pour plus d'informations sur ce modèle ou découvrir d'autres projets personnalisables, contactez dès aujourd'hui :Maisons France Confort
Je vous accompagne dans toutes les étapes de votre projet de construction afin de bâtir la maison qui vous ressemble.
Référence : OP2297817_1
Terrain proposé par un partenaire foncier selon disponibilités et autorisation de publicité au prix de 122 000 €. Hors droit d'enregistrement et frais de notaire. Maison proposée, avec un contrat de construction de maison individuelle, dans le cadre de la loi du 19/12/1990, au prix de 308 628 € (Hors branchements et raccordements, papiers peints, peintures, revêtement de sol dans les chambres, qui sont chiffrés dans les travaux qui restent à charge du client. Tarif modifiable sans préavis). Étiquette énergie : A. Différents modèles disponibles pour ce terrain. Assurances et garanties du constructeur comprises (RC professionnelle, décennale, dommage ouvrage).
Les informations sur les risques auxquels ce bien est exposé sont disponibles sur le site Géorisques : www.georisques.gouv.fr
- Prix
-
- Prix total : 430 628 €
- Prix du modèle de maison : 308 628 €
- Prix du terrain : 122 000 €
- Terrain
-
- Surface : 715 m²
- Maison
-
- Surface : 129 m²
- Pièces : 5
- Chambres : 4
- Garage : 1
- Être rappelé par un conseiller
- Demander plus d’infos
- Demande d'information
Puygiron (26160)
Maisons à proximité
Maison neuve, 73 m²
Puygiron (26160)
Puygiron (26160)
Maison de 4 pièces
Maison neuve, 90 m²
Puygiron (26160)
Puygiron (26160)
Maison de 4 pièces
Maison neuve, 83 m²
Puygiron (26160)
Puygiron (26160)
Maison de 5 pièces
Maison neuve, 140 m²
Puygiron (26160)
Puygiron (26160)
Maison de 6 pièces
Maison neuve, 124 m²
Puygiron (26160)
Puygiron (26160)
Maison de 5 pièces
Maison neuve, 121 m²
Puygiron (26160)
Puygiron (26160)
Maison de 5 pièces
Programmes à proximité
Contacter MAISONS FRANCE CONFORT pour recevoir plus d'informations
Remplissez le formulaire ci-dessous, vos informations sont transmises directement au constructeur qui vous contactera par email ou par téléphone afin de traiter votre demande. En savoir plus.