Maison neuve, 121 m² - Puygiron (26160)
356 000 €
Puygiron (26160)
Proposée par MAISONS FRANCE CONFORT – 5 pièces - 4 chambres - terrain 715 m²
|
|
| MAISONS FRANCE CONFORT |
| (119 avis) |
- Demande d'information
- Prendre rendez-vous
MAISON À CONSTRUIRE : ceci est une annonce d'une maison neuve à construire.
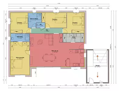
Maison contemporaine de 121,99 m² - moderne, spacieuse et lumineuse
Cette maison contemporaine de 121,99 m² habitables a été conçue pour offrir confort et praticité à toute la famille.
Dès l'entrée, vous découvrirez une vaste pièce de vie de près de 50 m², baignée de lumière grâce à ses larges ouvertures, où séjour et cuisine s'harmonisent dans une atmosphère conviviale et chaleureuse.
La partie nuit comprend une suite parentale de 18,87 m² avec salle d'eau privative, véritable cocon pour les parents. Trois autres chambres bien agencées complètent l'espace et pourront accueillir enfants, invités ou bureau. Une salle de bains familiale et un WC indépendant viennent renforcer le confort du quotidien.
Un cellier, directement relié à la cuisine, facilite le rangement et l'organisation. Le garage de 20 m² apporte un espace supplémentaire, à la fois pratique et fonctionnel.
La maison bénéficie également d'équipements modernes tels que les volets roulants électriques, la centralisation des fermetures et la domotique intégrée, autant d'atouts pensés pour simplifier votre quotidien et renforcer votre confort.
Fonctionnelle, lumineuse et résolument moderne, cette maison offre un cadre de vie idéal pour accueillir vos projets et votre famille.
.
Référence : OP2297817_3
Terrain proposé par un partenaire foncier selon disponibilités et autorisation de publicité au prix de 122 000 €. Hors droit d'enregistrement et frais de notaire. Maison proposée, avec un contrat de construction de maison individuelle, dans le cadre de la loi du 19/12/1990, au prix de 234 000 € (Hors branchements et raccordements, papiers peints, peintures, revêtement de sol dans les chambres, qui sont chiffrés dans les travaux qui restent à charge du client. Tarif modifiable sans préavis). Étiquette énergie : A. Différents modèles disponibles pour ce terrain. Assurances et garanties du constructeur comprises (RC professionnelle, décennale, dommage ouvrage).
Les informations sur les risques auxquels ce bien est exposé sont disponibles sur le site Géorisques : www.georisques.gouv.fr
Cette maison contemporaine de 121,99 m² habitables a été conçue pour offrir confort et praticité à toute la famille.
Dès l'entrée, vous découvrirez une vaste pièce de vie de près de 50 m², baignée de lumière grâce à ses larges ouvertures, où séjour et cuisine s'harmonisent dans une atmosphère conviviale et chaleureuse.
La partie nuit comprend une suite parentale de 18,87 m² avec salle d'eau privative, véritable cocon pour les parents. Trois autres chambres bien agencées complètent l'espace et pourront accueillir enfants, invités ou bureau. Une salle de bains familiale et un WC indépendant viennent renforcer le confort du quotidien.
Un cellier, directement relié à la cuisine, facilite le rangement et l'organisation. Le garage de 20 m² apporte un espace supplémentaire, à la fois pratique et fonctionnel.
La maison bénéficie également d'équipements modernes tels que les volets roulants électriques, la centralisation des fermetures et la domotique intégrée, autant d'atouts pensés pour simplifier votre quotidien et renforcer votre confort.
Fonctionnelle, lumineuse et résolument moderne, cette maison offre un cadre de vie idéal pour accueillir vos projets et votre famille.
.
Référence : OP2297817_3
Terrain proposé par un partenaire foncier selon disponibilités et autorisation de publicité au prix de 122 000 €. Hors droit d'enregistrement et frais de notaire. Maison proposée, avec un contrat de construction de maison individuelle, dans le cadre de la loi du 19/12/1990, au prix de 234 000 € (Hors branchements et raccordements, papiers peints, peintures, revêtement de sol dans les chambres, qui sont chiffrés dans les travaux qui restent à charge du client. Tarif modifiable sans préavis). Étiquette énergie : A. Différents modèles disponibles pour ce terrain. Assurances et garanties du constructeur comprises (RC professionnelle, décennale, dommage ouvrage).
Les informations sur les risques auxquels ce bien est exposé sont disponibles sur le site Géorisques : www.georisques.gouv.fr
- Prix
-
- Prix total : 356 000 €
- Prix du modèle de maison : 234 000 €
- Prix du terrain : 122 000 €
- Terrain
-
- Surface : 715 m²
- Maison
-
- Surface : 121 m²
- Pièces : 5
- Chambres : 4
- Garage : 1
- Être rappelé par un conseiller
- Demander plus d’infos
- Demande d'information
Puygiron (26160)
Maisons à proximité
Maison neuve, 73 m²
Puygiron (26160)
Puygiron (26160)
Maison de 4 pièces
Maison neuve, 90 m²
Puygiron (26160)
Puygiron (26160)
Maison de 4 pièces
Maison neuve, 83 m²
Puygiron (26160)
Puygiron (26160)
Maison de 5 pièces
Maison neuve, 140 m²
Puygiron (26160)
Puygiron (26160)
Maison de 6 pièces
Maison neuve, 124 m²
Puygiron (26160)
Puygiron (26160)
Maison de 5 pièces
Maison neuve, 129 m²
Puygiron (26160)
Puygiron (26160)
Maison de 5 pièces
Programmes à proximité
Contacter MAISONS FRANCE CONFORT pour recevoir plus d'informations
Remplissez le formulaire ci-dessous, vos informations sont transmises directement au constructeur qui vous contactera par email ou par téléphone afin de traiter votre demande. En savoir plus.