Maison neuve, 90 m² - Pornic (44210)

443 588 €
Pornic (44210)

Proposée par MAISONS PRIVAT AGENCE DE PORNIC (44) – 4 pièces - 3 chambres - terrain 545 m²

Maisons Privat Agence de Pornic (44)
Maisons Privat Agence de Pornic (44)
  • Demande d'information
MAISON À CONSTRUIRE : ceci est une annonce d'une maison neuve à construire.
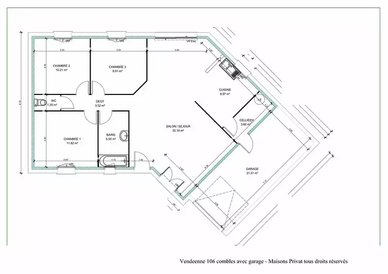
Sur ce terrain, nous vous proposons cette maison neuve : la Vendéenne. Conçue par Maisons Privat, constructeur centenaire avec les meilleurs avis clients de la région, cette maison de plain-pied de 90 m² saura vous séduire par son charme et sa fonctionnalité.
La Vendéenne est une maison familiale chaleureuse et bien pensée. Elle dispose de trois confortables chambres et de quatre pièces au total, incluant un vaste salon-séjour-cuisine agrémenté d’un cellier. Son plan en V unique permet à la façade de profiter pleinement de l'ensoleillement tout au long de la journée, garantissant une luminosité optimale et des économies d'énergie.
Cette maison est également équipée d'un garage intégré, offrant un espace de stationnement pratique et sécurisé. Parmi les options les plus demandées par nos clients, vous trouverez des menuiseries en aluminium et des volets roulants motorisés, ajoutant une touche de modernité et de confort supplémentaire.
La Vendéenne est une maison basse consommation, conforme à la réglementation environnementale RE2020, ce qui vous assure des performances énergétiques optimales et un respect de l'environnement.
N'attendez plus pour accéder à la propriété avec cette superbe maison Vendéenne, alliant élégance, confort et économies d'énergie.
Référence : 50983

Les informations sur les risques auxquels ce bien est exposé sont disponibles sur le site Géorisques : www.georisques.gouv.fr


Prix
  • Prix total : 443 588 €
  • Prix du modèle de maison : 143 688 €
  • Prix du terrain : 299 900 €

Terrain
  • Surface : 545 m²

Maison
  • Surface : 90 m²
  • Pièces : 4
  • Chambres : 3

  • Être rappelé par un conseiller
  • Demander plus d’infos
  • Demande d'information
Pornic (44210)

Programmes à proximité

Les Allées de la Ria
Les Allées de la Ria
Pornic (44210)

Appartements de 2 à 4 pièces
Livraison 2ème trimestre 2027

Vert Emeraude
Vert Emeraude
Pornic (44210)

Appartements de 2 à 5 pièces
Livraison 4ème trimestre 2027

Le Domaine du Parc
Le Domaine du Parc
Pornic (44210)

Appartements de 2 à 5 pièces
Livraison 4ème trimestre 2027

IMPULSION
IMPULSION
Saint-Père-en-Retz (44320)

Appartements de 2 à 4 pièces
Livraison 4ème trimestre 2027

Villa Floria
Villa Floria
Pornic (44210)

Appartements de 3 pièces
Livraison 4ème trimestre 2027

VILLA MARIA
VILLA MARIA
Pornic (44210)

Appartements de 2 à 4 pièces
Livraison 4ème trimestre 2026

Contacter MAISONS PRIVAT AGENCE DE PORNIC (44) pour recevoir plus d'informations

Remplissez le formulaire ci-dessous, vos informations sont transmises directement au constructeur qui vous contactera par email ou par téléphone afin de traiter votre demande. En savoir plus.

Voir tous nos programmes immobiliers neufs à Pornic