Maison neuve, 103 m² - Pont-l'Abbé-d'Arnoult (17250)

239 729 €
Pont-l'Abbé-d'Arnoult (17250)

Proposée par ELYSEES OCEAN – 4 pièces - 3 chambres - terrain 448 m²

Elysees Ocean
Elysees Ocean
  • Demande d'information
MAISON À CONSTRUIRE : ceci est une annonce d'une maison neuve à construire.
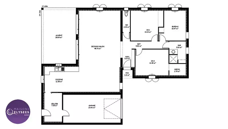
Sur ce terrain, nous vous proposons cette maison neuve, la Noria, conçue par Elysees Ocean, le constructeur aux meilleurs avis clients de la profession. Avec une surface de 103 m², cette maison offre un cadre de vie idéal pour toute la famille.
La Noria se distingue par ses grandes pièces lumineuses et ses baies vitrées orientées au Sud, permettant de profiter pleinement de la lumière naturelle. La maison dispose de 3 chambres spacieuses et de 4 pièces au total, offrant un espace de vie confortable et fonctionnel.
Les caractéristiques principales de cette maison incluent un auvent élégant, un garage intégré pour plus de praticité, et la possibilité de choisir entre une toiture à 2 pans ou à 4 pans, selon vos préférences. De plus, la maison est conçue pour s'adapter parfaitement aux terrains en profondeur, avec une entrée par le Nord, et elle est également très belle en version toiture terrasse.
Les options les plus demandées par nos clients, telles que la baie à galandage et la suite parentale, sont disponibles pour personnaliser votre maison selon vos besoins et vos envies.
La Noria est une maison basse consommation, conforme à la réglementation environnementale RE2020, garantissant des performances énergétiques optimales et un confort de vie tout au long de l'année.
Deux parties bien distinctes pour le jardin, l’espace accueil ouvert et l’espace de vie privatif, assurent le bien-être de ses habitants. Du style, des auvents, des porches, cette construction n'en finit pas de plaire.
Ne manquez pas cette opportunité unique de devenir propriétaire d'une maison neuve, moderne et éco-responsable. Contactez-nous dès aujourd'hui pour plus d'informations et pour planifier une visite.
Référence : 24528

Les informations sur les risques auxquels ce bien est exposé sont disponibles sur le site Géorisques : www.georisques.gouv.fr


Prix
  • Prix total : 239 729 €
  • Prix du modèle de maison : 180 584 €
  • Prix du terrain : 59 145 €

Terrain
  • Surface : 448 m²

Maison
  • Surface : 103 m²
  • Pièces : 4
  • Chambres : 3

  • Être rappelé par un conseiller
  • Demander plus d’infos
  • Demande d'information
Pont-l'Abbé-d'Arnoult (17250)

Programmes à proximité

LES HAUBANS
LES HAUBANS
La Tremblade (17390)

Appartement de 4 pièces
Livraison 4ème trimestre 2024

NACRÉA
NACRÉA
La Tremblade (17390)

Appartements de 1 à 4 pièces
Livraison 1er trimestre 2028

L'ESTRAN TR 2
L'ESTRAN TR 2
Fouras (17450)

Appartements de 2 à 3 pièces et maisons de 4 pièces
Livraison 3ème trimestre 2027

L'Alizé - FOURAS (17)
L'Alizé - FOURAS (17)
Fouras (17450)

Appartements de 2 à 3 pièces
Livraison 2ème trimestre 2026

LES DEUX RIVAGES
LES DEUX RIVAGES
Fouras (17450)

Appartements de 3 pièces
Livraison 3ème trimestre 2025

Horizon
Horizon
Royan (17200)

Appartements de 1 à 4 pièces
Livraison 3ème trimestre 2028

Contacter ELYSEES OCEAN pour recevoir plus d'informations

Remplissez le formulaire ci-dessous, vos informations sont transmises directement au constructeur qui vous contactera par email ou par téléphone afin de traiter votre demande. En savoir plus.

Voir tous nos programmes immobiliers neufs à Pont-l'Abbé-d'Arnoult