Maison neuve, 80 m² - Pernay (37230)

235 000 €
Pernay (37230)

Proposée par MAISONS FRANCE CONFORT – 4 pièces - 3 chambres - terrain 350 m²

MAISONS FRANCE CONFORT
MAISONS FRANCE CONFORT
  • Demande d'information
MAISON À CONSTRUIRE : ceci est une annonce d'une maison neuve à construire.
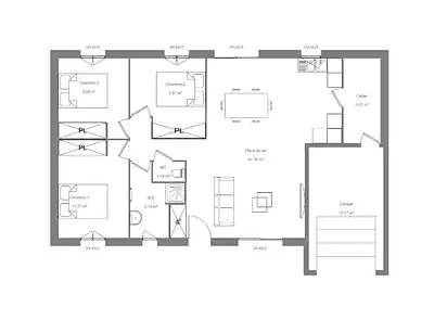
Belle maison de plain-pied d'une superficie totale de 82m².
La disposition de cette maison permet d'opter pour un terrain avec une façade restreinte ainsi que s'adapter facilement aux exigences des terrains classés en bâtiments de France.
Vous retrouverez dans cette jolie maison une pièce à vivre évolutive de 4m², un ensemble de 3 chambres, une salle d'eau ainsi d'un cellier et un WC.
Concernant les prestations globales, vous retrouverez une pompe à chaleur, des menuiseries de couleur en aluminium, des combles aménageables...
À vendre beau terrain constructible de 350 m², situé à Pernay, dans un environnement calme et agréable.
Belle façade, idéal pour accueillir une maison familiale. Terrain viabilisé (eau, électricité, tout-à-l'égout, EDF, EP)
Proche des commerces, écoles et transports.
Prix : 70000 €
Pour plus d'informations ou convenir d'une visite, n'hésitez à me contacter directement au °6.63.77.59.71.
Référence : MT2256080_2
Terrain proposé par un partenaire foncier selon disponibilités et autorisation de publicité au prix de 70 000 €. Hors droit d'enregistrement et frais de notaire. Maison proposée, avec un contrat de construction de maison individuelle, dans le cadre de la loi du 19/12/1990, au prix de 165 000 € (Hors branchements et raccordements, papiers peints, peintures, revêtement de sol dans les chambres, qui sont chiffrés dans les travaux qui restent à charge du client. Tarif modifiable sans préavis). Étiquette énergie : A. Différents modèles disponibles pour ce terrain. Assurances et garanties du constructeur comprises (RC professionnelle, décennale, dommage ouvrage).

Les informations sur les risques auxquels ce bien est exposé sont disponibles sur le site Géorisques : www.georisques.gouv.fr


Prix
  • Prix total : 235 000 €
  • Prix du modèle de maison : 165 000 €
  • Prix du terrain : 70 000 €

Terrain
  • Surface : 350 m²

Maison
  • Surface : 80 m²
  • Pièces : 4
  • Chambres : 3
  • Garage : 1

  • Être rappelé par un conseiller
  • Demander plus d’infos
  • Demande d'information
Pernay (37230)

Programmes à proximité

Les Jardins de Musset
Les Jardins de Musset
Fondettes (37230)

Appartements de 3 à 5 pièces
Livraison 2ème trimestre 2026

LE DOMAINE DES LYS
LE DOMAINE DES LYS
Saint-Cyr-sur-Loire (37540)

Appartements de 1 à 4 pièces
Livraison 4ème trimestre 2027

La Saint-Cyrienne
La Saint-Cyrienne
Saint-Cyr-sur-Loire (37540)

Appartements de 2 à 4 pièces
Livraison 4ème trimestre 2026

APPARTEMENT TERRASSE/LIBERTE
APPARTEMENT TERRASSE/LIBERTE
La Riche (37520)

Appartement de 4 pièces
Livraison 3ème trimestre 2024

Les Dryades
Les Dryades
La Riche (37520)

Appartements de 3 à 4 pièces
Livraison 3ème trimestre 2025

EMBLEM
EMBLEM
La Riche (37520)

Appartements de 2 à 5 pièces
Livraison 1er trimestre 2026

Contacter MAISONS FRANCE CONFORT pour recevoir plus d'informations

Remplissez le formulaire ci-dessous, vos informations sont transmises directement au constructeur qui vous contactera par email ou par téléphone afin de traiter votre demande. En savoir plus.

Voir tous nos programmes immobiliers neufs à Pernay