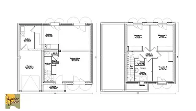
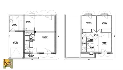
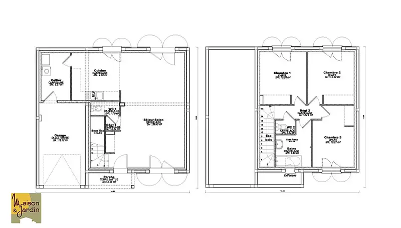
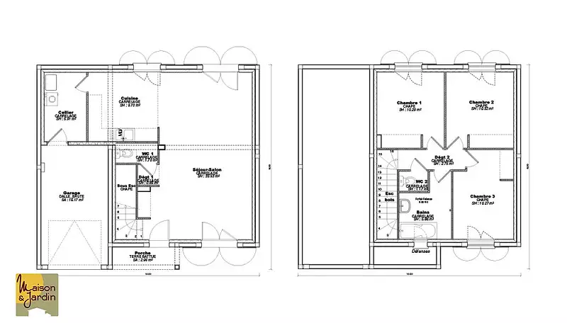
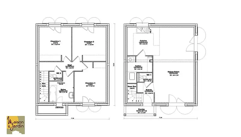
Maison neuve, 92 m² - Pérignat-sur-Allier (63800)

234 575 €
Pérignat-sur-Allier (63800)

Proposée par MAISON ET JARDIN – 4 pièces - 3 chambres - terrain 299 m²

Maison et Jardin
Maison et Jardin
  • Demande d'information
MAISON À CONSTRUIRE : ceci est une annonce d'une maison neuve à construire.
À la recherche d’un cadre idyllique pour construire votre maison de rêve ? Ce terrain viabilisé de 300 m², situé dans le charmant lotissement de Pérignat-sur-Allier, est l’opportunité idéale pour réaliser votre projet de construction. Avec sa vue dégagée, son exposition ensoleillée et son environnement calme, ce bien rare garantie un cadre de vie paisible et agréable.
Ne laissez pas passer cette opportunité unique d’acquérir un terrain au potentiel exceptionnel. Contactez-nous dès aujourd’hui pour explorer les possibilités infinies qu’il offre et envisagez la construction de votre futur chez-vous.
À noter qu’en tant que constructeur, nous ne sommes pas mandatés pour réaliser la vente de ce terrain.
Référence : 16239

Les informations sur les risques auxquels ce bien est exposé sont disponibles sur le site Géorisques : www.georisques.gouv.fr


Prix
  • Prix total : 234 575 €
  • Prix du modèle de maison : 172 577 €
  • Prix du terrain : 61 998 €

Terrain
  • Surface : 299 m²

Maison
  • Surface : 92 m²
  • Pièces : 4
  • Chambres : 3

  • Être rappelé par un conseiller
  • Demander plus d’infos
  • Demande d'information
Pérignat-sur-Allier (63800)

Programmes à proximité

Premières Loges
Premières Loges
Cournon-d'Auvergne (63800)

Appartements de 2 à 5 pièces
Livraison 4ème trimestre 2027

LE QUARTZ
LE QUARTZ
Clermont-Ferrand (63100)

Appartements de 1 à 3 pièces
Livraison 1er trimestre 2027

PSLA - ORIGINE FRANC ROSIER
PSLA - ORIGINE FRANC ROSIER
Clermont-Ferrand (63100)

Appartements de 2 à 3 pièces
Livraison 3ème trimestre 2027

ORIGINE FRANC ROSIER
ORIGINE FRANC ROSIER
Clermont-Ferrand (63100)

Appartements de 2 à 5 pièces
Livraison 4ème trimestre 2026

Rés. TWENTY CAMPUS REPUBLIQUE - ORIGINE FRANC ROS
Rés. TWENTY CAMPUS REPUBLIQUE - ORIGINE FRANC ROS
Clermont-Ferrand (63100)

Appartements de 1 à 2 pièces
Livraison 3ème trimestre 2026

CONVERSIO
CONVERSIO
Clermont-Ferrand (63100)

Appartements de 2 à 4 pièces
Livraison 3ème trimestre 2027

Contacter MAISON ET JARDIN pour recevoir plus d'informations

Remplissez le formulaire ci-dessous, vos informations sont transmises directement au constructeur qui vous contactera par email ou par téléphone afin de traiter votre demande. En savoir plus.

Voir tous nos programmes immobiliers neufs à Pérignat-sur-Allier