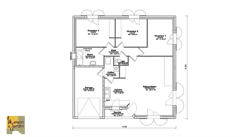
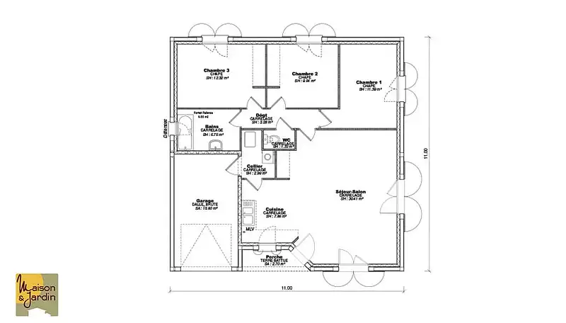
Maison neuve, 85 m² - Lezoux (63190)

243 609 €
Lezoux (63190)

Proposée par MAISON ET JARDIN – 4 pièces - 3 chambres - terrain 871 m²

Maison et Jardin
Maison et Jardin
  • Demande d'information
MAISON À CONSTRUIRE : ceci est une annonce d'une maison neuve à construire.
Découvrez ce beau terrain à vendre, situé dans un quartier privilégié de Lezoux. Avec une surface de 871 m², ce terrain viabilisé offre toutes les caractéristiques nécessaires pour réaliser le projet de construction de maison de vos rêves. Sa configuration plate et close, en fait un lieu idéal pour bâtir un foyer accueillant, tout en profitant d’un cadre de vie agréable et d’une ambiance paisible.
N’attendez plus pour envisager cette opportunité d’achat unique et donnez vie à votre projet immobilier !
À noter qu’en tant que constructeur, nous ne sommes pas mandatés pour réaliser la vente de ce terrain.
Référence : 16235

Les informations sur les risques auxquels ce bien est exposé sont disponibles sur le site Géorisques : www.georisques.gouv.fr


Prix
  • Prix total : 243 609 €
  • Prix du modèle de maison : 164 609 €
  • Prix du terrain : 79 000 €

Terrain
  • Surface : 871 m²

Maison
  • Surface : 85 m²
  • Pièces : 4
  • Chambres : 3

  • Être rappelé par un conseiller
  • Demander plus d’infos
  • Demande d'information
Lezoux (63190)

Programmes à proximité

Premières Loges
Premières Loges
Cournon-d'Auvergne (63800)

Appartements de 2 à 5 pièces
Livraison 4ème trimestre 2027

LE QUARTZ
LE QUARTZ
Clermont-Ferrand (63100)

Appartements de 1 à 3 pièces
Livraison 1er trimestre 2027

PSLA - ORIGINE FRANC ROSIER
PSLA - ORIGINE FRANC ROSIER
Clermont-Ferrand (63100)

Appartements de 2 à 3 pièces
Livraison 3ème trimestre 2027

ORIGINE FRANC ROSIER
ORIGINE FRANC ROSIER
Clermont-Ferrand (63100)

Appartements de 2 à 5 pièces
Livraison 4ème trimestre 2026

Rés. TWENTY CAMPUS REPUBLIQUE - ORIGINE FRANC ROS
Rés. TWENTY CAMPUS REPUBLIQUE - ORIGINE FRANC ROS
Clermont-Ferrand (63100)

Appartements de 1 à 2 pièces
Livraison 3ème trimestre 2026

CONVERSIO
CONVERSIO
Clermont-Ferrand (63100)

Appartements de 2 à 4 pièces
Livraison 3ème trimestre 2027

Contacter MAISON ET JARDIN pour recevoir plus d'informations

Remplissez le formulaire ci-dessous, vos informations sont transmises directement au constructeur qui vous contactera par email ou par téléphone afin de traiter votre demande. En savoir plus.

Voir tous nos programmes immobiliers neufs à Lezoux