Maison neuve, 94 m² - Ozouer-le-Voulgis (77390)

310 092 €
Ozouer-le-Voulgis (77390)

Proposée par BABEAU SEGUIN AGENCE DE PROVINS (77160) – SEINE ET – 4 pièces - 3 chambres - terrain 486 m²

Babeau Seguin Agence de Provins (77160) – Seine et
Babeau Seguin Agence de Provins (77160) – Seine et
  • Demande d'information
MAISON À CONSTRUIRE : ceci est une annonce d'une maison neuve à construire.
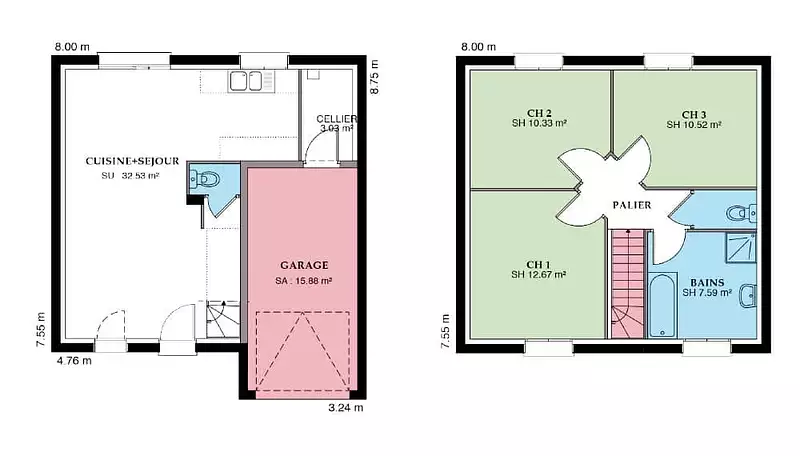
Sur ce terrain, nous vous proposons cette maison neuve baptisée Extenso, conçue par Babeau-Seguin, constructeur offrant le meilleur rapport qualité/prix du marché. Cette belle maison familiale à étage, d'une surface de 94 m², dispose de 3 chambres, d'un vaste séjour, d'une salle de bain, de 2 WC et d'un cellier, ainsi qu'un garage accolé.
Avec ses 4 pièces, cette maison traditionnelle à fort cachet est idéale pour les familles à la recherche de confort et de modernité. Conformément à la réglementation RE2020, cette maison est basse consommation, vous garantissant des économies d'énergie significatives.
Les options les plus demandées par nos clients sont disponibles pour cette maison : enduit bi-ton pour une façade personnalisable, domotique pour un confort de vie optimal, et volets roulants motorisés pour plus de praticité.
Ne manquez pas cette opportunité unique d'acquérir une maison neuve, moderne et économe en énergie, le tout à un prix attractif. L'Extenso vous offre le confort, la qualité et la modernité, le tout à un prix cassé ! Une exclusivité Maisons Babeau-Seguin.
Référence : 71421

Les informations sur les risques auxquels ce bien est exposé sont disponibles sur le site Géorisques : www.georisques.gouv.fr


Prix
  • Prix total : 310 092 €
  • Prix du modèle de maison : 173 092 €
  • Prix du terrain : 137 000 €

Terrain
  • Surface : 486 m²

Maison
  • Surface : 94 m²
  • Pièces : 4
  • Chambres : 3

  • Être rappelé par un conseiller
  • Demander plus d’infos
  • Demande d'information
Ozouer-le-Voulgis (77390)

Programmes à proximité

Les Jardins Jasmin
Les Jardins Jasmin
Tournan-en-Brie (77220)

Appartements de 2 à 4 pièces
Livraison 4ème trimestre 2026

Le Hameau des Prés
Le Hameau des Prés
Fontenay-Trésigny (77610)

Appartements de 2 à 4 pièces
Livraison 4ème trimestre 2028

Avenue 34
Avenue 34
Ozoir-la-Ferrière (77330)

Appartements de 1 à 4 pièces
Livraison 1er trimestre 2029

Les Terrasses du 105
Les Terrasses du 105
Ozoir-la-Ferrière (77330)

Appartements de 1 à 4 pièces
Livraison 3ème trimestre 2028

LES TERRASSES FLAMMARION
LES TERRASSES FLAMMARION
Melun (77000)

Appartements de 1 à 4 pièces
Livraison 1er trimestre 2028

GINKGO
GINKGO
Melun (77000)

Appartement de 2 pièces
Livraison 1er trimestre 2025

Contacter BABEAU SEGUIN AGENCE DE PROVINS (77160) – SEINE ET pour recevoir plus d'informations

Remplissez le formulaire ci-dessous, vos informations sont transmises directement au constructeur qui vous contactera par email ou par téléphone afin de traiter votre demande. En savoir plus.

Voir tous nos programmes immobiliers neufs à Ozouer-le-Voulgis