Maison neuve, 121 m² - Montlhéry (91310)

430 000 €
Montlhéry (91310)

Proposée par MAISONS EVOLUTION – 6 pièces - 5 chambres - terrain 530 m²

MAISONS EVOLUTION
MAISONS EVOLUTION
  • Demande d'information
MAISON À CONSTRUIRE : ceci est une annonce d'une maison neuve à construire.
.
Situé sur les hauteurs de Montlhéry, dans un secteur calme et recherché, venez découvrir ce terrain à bâtir de 531 m² offrant une façade de 14,26 mètres.
Agencement Flexible :4 chambres lumineuses et des plans entièrement personnalisables pour un espace de vie qui vous ressemble. Performance RE 2020 : Une solution thermique et acoustique de pointe, garantissant un confort d'été supérieur (idéal contre la chaleur) et des économies d'énergie. Plancher Chauffant pour une chaleur douce et uniforme, sans radiateur encombrant. Volets Roulants (VR) motorisés et centralisé. Saisissez cette opportunité de bâtir une maison intelligente, éco-performante et sur mesure, dans un environnement paisible.
Référence : EM2328938_1
Terrain proposé par un partenaire foncier selon disponibilités et autorisation de publicité au prix de 199 000 €. Hors droit d'enregistrement et frais de notaire. Maison proposée, avec un contrat de construction de maison individuelle, dans le cadre de la loi du 19/12/1990, au prix de 231 000 € (Hors branchements et raccordements, papiers peints, peintures, revêtement de sol dans les chambres, qui sont chiffrés dans les travaux qui restent à charge du client. Tarif modifiable sans préavis). Étiquette énergie : A. Différents modèles disponibles pour ce terrain. Assurances et garanties du constructeur comprises (RC professionnelle, décennale, dommage ouvrage).

Les informations sur les risques auxquels ce bien est exposé sont disponibles sur le site Géorisques : www.georisques.gouv.fr


Prix
  • Prix total : 430 000 €
  • Prix du modèle de maison : 231 000 €
  • Prix du terrain : 199 000 €

Terrain
  • Surface : 530 m²

Maison
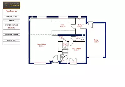
  • Surface : 121 m²
  • Pièces : 6
  • Chambres : 5
  • Garage : 1

  • Être rappelé par un conseiller
  • Demander plus d’infos
  • Demande d'information
Montlhéry (91310)

Programmes à proximité

Résidence Tamara
Résidence Tamara
Montlhéry (91310)

Appartements de 2 à 3 pièces
Livraison 3ème trimestre 2027

Closerie Coeur Village
Closerie Coeur Village
Montlhéry (91310)

Appartements de 2 à 3 pièces
Livraison 3ème trimestre 2026

Esprit Village
Esprit Village
Montlhéry (91310)

Appartements de 2 à 4 pièces
Livraison 4ème trimestre 2028

Résidence de l'Orée
Résidence de l'Orée
Linas (91310)

Appartements de 1 à 3 pièces
Livraison 4ème trimestre 2026

VILLA NOYA
VILLA NOYA
Nozay (91620)

Appartements de 2 à 5 pièces
Livraison 2ème trimestre 2027

Eclor
Eclor
Brétigny-sur-Orge (91220)

Appartements de 2 à 6 pièces
Livraison 4ème trimestre 2027

Contacter MAISONS EVOLUTION pour recevoir plus d'informations

Remplissez le formulaire ci-dessous, vos informations sont transmises directement au constructeur qui vous contactera par email ou par téléphone afin de traiter votre demande. En savoir plus.

Voir tous nos programmes immobiliers neufs à Montlhéry