Maison neuve, 133 m² - Melay (49120)
287 500 €
Melay (49120)
Proposée par MAISONS BERNARD JAMBERT – 8 pièces - 6 chambres - terrain 388 m²
|
|
| MAISONS BERNARD JAMBERT |
- Demande d'information
- Prendre rendez-vous
MAISON À CONSTRUIRE : ceci est une annonce d'une maison neuve à construire.
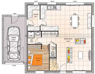
VENTE d'une maison F8 (133 m²) à Melay
Idéalement située - À Melay (49120), maison neuve à vendre de 8 pièces, 2 niveaux, 133 m² de surface sur 388 m² de terrain. Elle compte six chambres, une cuisine et deux salles de bains.
Proche gare (Chemillé-en-Anjou), École Primaire Privée Sacré Coeur, commerce et épicerie. Autoroute A87 à 7 km. Cholet à 20 km,
Le prix de vente de cette maison de 8 pièces est de 287 500 €.
. Concrétisez vos projets immobiliers avec Maisons Bernard Jambert Angers.
Référence : MJ2355199_3
Terrain proposé par un partenaire foncier selon disponibilités et autorisation de publicité au prix de 36 960 €. Hors droit d'enregistrement et frais de notaire. Maison proposée, avec un contrat de construction de maison individuelle, dans le cadre de la loi du 19/12/1990, au prix de 250 540 € (Hors branchements et raccordements, papiers peints, peintures, revêtement de sol dans les chambres, qui sont chiffrés dans les travaux qui restent à charge du client. Tarif modifiable sans préavis). Étiquette énergie : A. Différents modèles disponibles pour ce terrain. Assurances et garanties du constructeur comprises (RC professionnelle, décennale, dommage ouvrage).
Les informations sur les risques auxquels ce bien est exposé sont disponibles sur le site Géorisques : www.georisques.gouv.fr
Idéalement située - À Melay (49120), maison neuve à vendre de 8 pièces, 2 niveaux, 133 m² de surface sur 388 m² de terrain. Elle compte six chambres, une cuisine et deux salles de bains.
Proche gare (Chemillé-en-Anjou), École Primaire Privée Sacré Coeur, commerce et épicerie. Autoroute A87 à 7 km. Cholet à 20 km,
Le prix de vente de cette maison de 8 pièces est de 287 500 €.
. Concrétisez vos projets immobiliers avec Maisons Bernard Jambert Angers.
Référence : MJ2355199_3
Terrain proposé par un partenaire foncier selon disponibilités et autorisation de publicité au prix de 36 960 €. Hors droit d'enregistrement et frais de notaire. Maison proposée, avec un contrat de construction de maison individuelle, dans le cadre de la loi du 19/12/1990, au prix de 250 540 € (Hors branchements et raccordements, papiers peints, peintures, revêtement de sol dans les chambres, qui sont chiffrés dans les travaux qui restent à charge du client. Tarif modifiable sans préavis). Étiquette énergie : A. Différents modèles disponibles pour ce terrain. Assurances et garanties du constructeur comprises (RC professionnelle, décennale, dommage ouvrage).
Les informations sur les risques auxquels ce bien est exposé sont disponibles sur le site Géorisques : www.georisques.gouv.fr
- Prix
-
- Prix total : 287 500 €
- Prix du modèle de maison : 250 540 €
- Prix du terrain : 36 960 €
- Terrain
-
- Surface : 388 m²
- Maison
-
- Surface : 133 m²
- Pièces : 8
- Chambres : 6
- Garage : 1
- Être rappelé par un conseiller
- Demander plus d’infos
- Demande d'information
Melay (49120)
Maisons à proximité
Maison neuve, 89 m²
Melay (49120)
Melay (49120)
Maison de 5 pièces
Maison neuve, 71 m²
Melay (49120)
Melay (49120)
Maison de 3 pièces
Maison neuve, 50 m²
Melay (49120)
Melay (49120)
Maison de 3 pièces
Maison neuve, 109,6 m²
Chemillé (49120)
Chemillé (49120)
Maison de 6 pièces
Maison neuve, 106 m²
Chemillé (49120)
Chemillé (49120)
Maison de 5 pièces
Maison neuve, 75 m²
Chemillé (49120)
Chemillé (49120)
Maison de 3 pièces
Programmes à proximité
Les Confluences
Chalonnes-sur-Loire (49290)
Chalonnes-sur-Loire (49290)
Appartements de 2 à 5 pièces
Livraison 4ème trimestre 2026
Les Jardins des Mauges
Cholet (49300)
Cholet (49300)
Appartements de 2 à 4 pièces
Livraison 4ème trimestre 2026
ORGANZA
Cholet (49300)
Cholet (49300)
Appartements de 3 pièces et maisons de 3 pièces
Livraison 2ème trimestre 2026
Les Jardins des Mauges II
Cholet (49300)
Cholet (49300)
Appartements de 1 à 3 pièces
Livraison 4ème trimestre 2027
Contacter MAISONS BERNARD JAMBERT pour recevoir plus d'informations
Remplissez le formulaire ci-dessous, vos informations sont transmises directement au constructeur qui vous contactera par email ou par téléphone afin de traiter votre demande. En savoir plus.