Maison neuve, 127 m² - Marboz (01851)
339 500 €
Marboz (01851)
Proposée par MAISONS FRANCE CONFORT – 4 pièces - 3 chambres - terrain 728 m²
|
|
| MAISONS FRANCE CONFORT |
| (48 avis) |
- Demande d'information
- Prendre rendez-vous
MAISON À CONSTRUIRE : ceci est une annonce d'une maison neuve à construire.
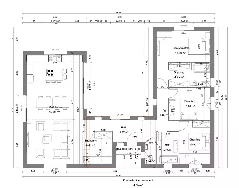
VENTE d'une maison F4 (127 m²) à Marboz
Proche de Bourg-en-Bresse - Maison neuve 4 pièces en vente à Marboz (01851) avec une surface de 127 m² et de 728 m² de terrain. Conçue de plain-pied, elle inclut trois chambres, une cuisine et deux salles de bains.
À dix minutes : écoles, bibliothèque, commerces, boulangeries, épicerie et supérette. Autoroutes A39 et A40 à 12 km.
Cette maison de 4 pièces est à vendre pour la somme de 339 500 €.
Contactez notre agence (GABRILLARGUES Sébastien : 06-81-77-73-67) pour toute question sur la maison ou sur les modalités de vente. Donnez vie à vos projets immobiliers avec Maisons France Confort Bourg-en-Bresse.
Annonce proposée par un Agent Commercial Partenaire.
Référence : SG2612_2
Terrain proposé par un partenaire foncier selon disponibilités et autorisation de publicité au prix de 82 000 €. Hors droit d'enregistrement et frais de notaire. Terrain + Maison proposés au prix de 257 500 € (Hors branchements et raccordements, papiers peints, peintures, revêtement de sol dans les chambres. Tarif modifiable sans préavis). Etiquette énergie : A. Différents modèles disponibles pour ce terrain. Assurances et garanties du constructeur (RC professionnelle, décennale, dommage ouvrage, garantie de remboursement de l'acompte, livraison à prix et délai convenu) : https://www.maisons-france-confort.fr/mentions-legales/. HEXAOM Services est enregistré auprès de l'ORIAS en tant que Courtier en financement, Niveau 1, sous le numéro 14001345.
Les informations sur les risques auxquels ce bien est exposé sont disponibles sur le site Géorisques : www.georisques.gouv.fr
Proche de Bourg-en-Bresse - Maison neuve 4 pièces en vente à Marboz (01851) avec une surface de 127 m² et de 728 m² de terrain. Conçue de plain-pied, elle inclut trois chambres, une cuisine et deux salles de bains.
À dix minutes : écoles, bibliothèque, commerces, boulangeries, épicerie et supérette. Autoroutes A39 et A40 à 12 km.
Cette maison de 4 pièces est à vendre pour la somme de 339 500 €.
Contactez notre agence (GABRILLARGUES Sébastien : 06-81-77-73-67) pour toute question sur la maison ou sur les modalités de vente. Donnez vie à vos projets immobiliers avec Maisons France Confort Bourg-en-Bresse.
Annonce proposée par un Agent Commercial Partenaire.
Référence : SG2612_2
Terrain proposé par un partenaire foncier selon disponibilités et autorisation de publicité au prix de 82 000 €. Hors droit d'enregistrement et frais de notaire. Terrain + Maison proposés au prix de 257 500 € (Hors branchements et raccordements, papiers peints, peintures, revêtement de sol dans les chambres. Tarif modifiable sans préavis). Etiquette énergie : A. Différents modèles disponibles pour ce terrain. Assurances et garanties du constructeur (RC professionnelle, décennale, dommage ouvrage, garantie de remboursement de l'acompte, livraison à prix et délai convenu) : https://www.maisons-france-confort.fr/mentions-legales/. HEXAOM Services est enregistré auprès de l'ORIAS en tant que Courtier en financement, Niveau 1, sous le numéro 14001345.
Les informations sur les risques auxquels ce bien est exposé sont disponibles sur le site Géorisques : www.georisques.gouv.fr
- Prix
-
- Prix total : 339 500 €
- Prix du modèle de maison : 257 500 €
- Prix du terrain : 82 000 €
- Terrain
-
- Surface : 728 m²
- Maison
-
- Surface : 127 m²
- Pièces : 4
- Chambres : 3
- Être rappelé par un conseiller
- Demander plus d’infos
- Demande d'information
Marboz (01851)
Maisons à proximité
Maison neuve, 80 m²
Marboz (01851)
Marboz (01851)
Maison de 4 pièces
Maison neuve, 130 m²
Marboz (01851)
Marboz (01851)
Maison de 6 pièces
Maison neuve, 60 m²
Marboz (01851)
Marboz (01851)
Maison de 3 pièces
Maison neuve, 72 m²
Marboz (01851)
Marboz (01851)
Maison de 3 pièces
Maison neuve, 90 m²
Marboz (01851)
Marboz (01851)
Maison de 5 pièces
Maison neuve, 50 m²
Marboz (01851)
Marboz (01851)
Maison de 2 pièces
Programmes à proximité
Coeur Citadelle
Bourg-en-Bresse (01000)
Bourg-en-Bresse (01000)
Appartements de 2 à 5 pièces
Livraison 4ème trimestre 2027
Les Balcons d'Annie
Bourg-en-Bresse (01000)
Bourg-en-Bresse (01000)
Appartements de 1 à 4 pièces
Livraison 3ème trimestre 2026
J.O.U.R
Bourg-en-Bresse (01000)
Bourg-en-Bresse (01000)
Appartements de 2 à 5 pièces
Livraison 2ème trimestre 2027
Espace Milliat
Bourg-en-Bresse (01000)
Bourg-en-Bresse (01000)
Appartements de 2 à 4 pièces
Livraison 3ème trimestre 2025
Le Clos des Maraîchers
Bourg-en-Bresse (01000)
Bourg-en-Bresse (01000)
Appartements de 2 à 4 pièces
Livraison 3ème trimestre 2027
TILIA
Bourg-en-Bresse (01000)
Bourg-en-Bresse (01000)
Appartements de 2 à 4 pièces
Contacter MAISONS FRANCE CONFORT pour recevoir plus d'informations
Remplissez le formulaire ci-dessous, vos informations sont transmises directement au constructeur qui vous contactera par email ou par téléphone afin de traiter votre demande. En savoir plus.