Maison neuve, 115 m² - Léognan (33850)

496 500 €
Léognan (33850)

Proposée par ALPHA CONSTRUCTIONS – 4 pièces - 3 chambres - terrain 700 m²

Alpha Constructions
Alpha Constructions
  • Demande d'information
MAISON À CONSTRUIRE : ceci est une annonce d'une maison neuve à construire.
LÉOGNAN - Votre future maison signée Alpha Construction sur le lotissement Le Comté du Bergey
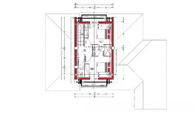
À Léognan, au sein du lotissement Le Comté du Bergey, Alpha Construction vous propose un superbe projet de maison neuve de 115 m² avec garage, sur un terrain de 700 m² idéalement situé à proximité du centre-ville.
Cette maison moderne séduit par sa belle pièce de vie lumineuse, ouverte sur le jardin, idéale pour accueillir famille et amis. Vous profiterez également d'un cellier attenant, d'un garage pratique et d'un espace nuit bien pensé comprenant 4 chambres, dont une suite parentale avec salle d'eau privative, ainsi qu'une salle d'eau commune pour le reste de la famille.
Avec Alpha Construction, chaque projet est 100 % personnalisable : architecture, agencement intérieur, matériaux, finitions... Créez la maison qui vous ressemble, accompagnés par un constructeur reconnu pour son savoir-faire, sa qualité de conception et son suivi attentif tout au long du projet.
Situé à l'angle de l'avenue de Cestas et du chemin de Mignoy, ce lotissement bénéficie d'un emplacement recherché, au calme et proche de toutes les commodités : écoles, commerces, services, transports et pistes cyclables permettant de rejoindre le centre-ville en moins de 4 minutes à vélo.
Les terrains sont viabilisés et raccordés à l'assainissement collectif, prêts à accueillir votre projet de construction.
.
Référence : CC2299525_1
Terrain proposé par un partenaire foncier selon disponibilité dans le cadre d’un projet de construction avec Alpha Constructions. Les descriptions, photographies, surfaces et prix illustrant l’annonce sont fournies à titre indicatif et ne sont pas contractuels. Non soumis au DPE. Différents modèles disponibles.

Les informations sur les risques auxquels ce bien est exposé sont disponibles sur le site Géorisques : www.georisques.gouv.fr


Prix
  • Prix total : 496 500 €
  • Prix du modèle de maison : 297 500 €
  • Prix du terrain : 199 000 €

Terrain
  • Surface : 700 m²

Maison
  • Surface : 115 m²
  • Pièces : 4
  • Chambres : 3
  • Garage : 1

  • Être rappelé par un conseiller
  • Demander plus d’infos
  • Demande d'information
Léognan (33850)

Programmes à proximité

L'EXPRESSION
L'EXPRESSION
Gradignan (33170)

Appartement de 4 pièces
Livraison 4ème trimestre 2024

Le Florilège
Le Florilège
Gradignan (33170)

Appartements de 4 pièces
Livraison 4ème trimestre 2025

Naturessence
Naturessence
Villenave-d'Ornon (33140)

Appartements de 1 à 4 pièces
Livraison 1er trimestre 2028

All Suites Study Villenave d’Ornon
All Suites Study Villenave d’Ornon
Villenave-d'Ornon (33140)

Appartements de 1 pièce
Livraison 3ème trimestre 2026

Les Jardins Saint-Yves
Les Jardins Saint-Yves
Villenave-d'Ornon (33140)

Appartements de 2 à 4 pièces et maisons de 4 à 5 pièces
Livraison 2ème trimestre 2028

Le Clos des Sens
Le Clos des Sens
Villenave-d'Ornon (33140)

Appartements de 1 à 4 pièces
Livraison 2ème trimestre 2028

Contacter ALPHA CONSTRUCTIONS pour recevoir plus d'informations

Remplissez le formulaire ci-dessous, vos informations sont transmises directement au constructeur qui vous contactera par email ou par téléphone afin de traiter votre demande. En savoir plus.

Voir tous nos programmes immobiliers neufs à Léognan