Maison neuve, 115 m² - Lent (01240)
320 000 €
Lent (01240)
Proposée par MAISONS ALAIN MÉTRAL – 5 pièces - terrain 841 m²
|
|
| Maisons Alain Métral |
- Demande d'information
- Prendre rendez-vous
MAISON À CONSTRUIRE : ceci est une annonce d'une maison neuve à construire.
Maisons Alain Métral vous propose ce joli projet de construction en relation avec FONCIA sur la commune de LENT.
Le terrain plat fait 841 m² ( LOT A), il est issu d'une division parcellaire.
Terrain au calme avec une légère pente.
Il est vendu non viabilisé et le PC est en passe d'être accepté.
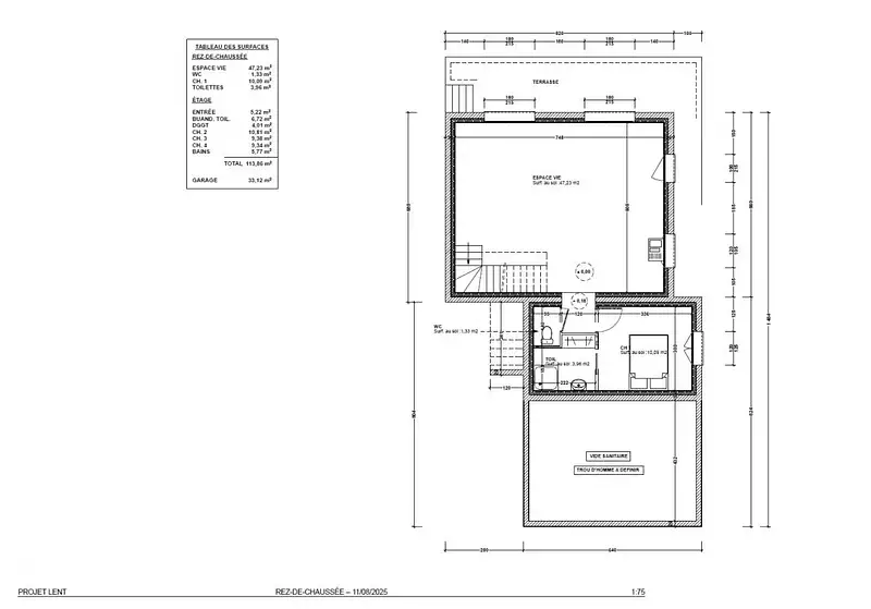
Nous avons imaginé pour vous une maison inversé de 115 m² + 33 m² de Garage s'intégrant parfaitement sur le terrain.
Au RDC une pièce de vie d'une surface de 50 m² avec cuisine en OPEN-SPACE, une chambre parentale et un WC suspendu indépendant.
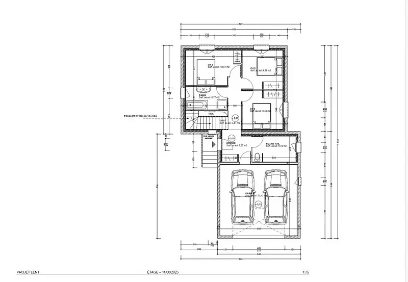
A l'étage une entrée donnant sur une buanderie et l'accès direct à l'escalier.
L'étage est complété par 3 chambres, une salle de bain et un WC suspendu indépendant.
Sanitaires et meuble vasque Jacob Delafon, carrelage en 60X60, faïence en 30x60, menuiserie ext anthracite avec des volets motorisés aluminium.
Le système de chauffage est géré par une pompe a chaleur DAIKIN alimentant un plancher chauffant / rafraichissant au sol ( ou autre système au choix ).
Nous définirons ensemble le style architectural de votre maison, son agencement, l'emplacement souhaité sur le terrain…
Nous réalisons exclusivement des projets sur-mesure.
Terrain en accord avec notre partenaire foncier, sous réserve de disponibilité.
Prix hors frais de notaire, hors VRD, hors taxes, hors aménagement Ext.
Photos non contractuelles. Projet conforme à la RE2020.
Les informations sur les risques auxquels ce bien est exposé sont disponibles sur le site Géorisques : www.georisques.gouv.fr
Le terrain plat fait 841 m² ( LOT A), il est issu d'une division parcellaire.
Terrain au calme avec une légère pente.
Il est vendu non viabilisé et le PC est en passe d'être accepté.
Nous avons imaginé pour vous une maison inversé de 115 m² + 33 m² de Garage s'intégrant parfaitement sur le terrain.
Au RDC une pièce de vie d'une surface de 50 m² avec cuisine en OPEN-SPACE, une chambre parentale et un WC suspendu indépendant.
A l'étage une entrée donnant sur une buanderie et l'accès direct à l'escalier.
L'étage est complété par 3 chambres, une salle de bain et un WC suspendu indépendant.
Sanitaires et meuble vasque Jacob Delafon, carrelage en 60X60, faïence en 30x60, menuiserie ext anthracite avec des volets motorisés aluminium.
Le système de chauffage est géré par une pompe a chaleur DAIKIN alimentant un plancher chauffant / rafraichissant au sol ( ou autre système au choix ).
Nous définirons ensemble le style architectural de votre maison, son agencement, l'emplacement souhaité sur le terrain…
Nous réalisons exclusivement des projets sur-mesure.
Terrain en accord avec notre partenaire foncier, sous réserve de disponibilité.
Prix hors frais de notaire, hors VRD, hors taxes, hors aménagement Ext.
Photos non contractuelles. Projet conforme à la RE2020.
Les informations sur les risques auxquels ce bien est exposé sont disponibles sur le site Géorisques : www.georisques.gouv.fr
- Prix
-
- Prix total : 320 000 €
- Prix du modèle de maison : 221 000 €
- Prix du terrain : 99 000 €
- Terrain
-
- Surface : 841 m²
- Maison
-
- Surface : 115 m²
- Pièces : 5
- Être rappelé par un conseiller
- Demander plus d’infos
- Demande d'information
Lent (01240)
Maisons à proximité
Maison neuve, 60 m²
Lent (01240)
Lent (01240)
Maison de 3 pièces
Maison neuve, 77,31 m²
Lent (01240)
Lent (01240)
Maison de 4 pièces
Maison neuve, 90 m²
Lent (01240)
Lent (01240)
Maison de 5 pièces
Maison neuve, 97 m²
Lent (01240)
Lent (01240)
Maison de 4 pièces
Maison neuve, 101 m²
Lent (01240)
Lent (01240)
Maison de 5 pièces
Maison neuve, 75 m²
Servas (01960)
Servas (01960)
Maison de 3 pièces
Programmes à proximité
Coeur Citadelle
Bourg-en-Bresse (01000)
Bourg-en-Bresse (01000)
Appartements de 2 à 5 pièces
Livraison 4ème trimestre 2027
Les Balcons d'Annie
Bourg-en-Bresse (01000)
Bourg-en-Bresse (01000)
Appartements de 1 à 4 pièces
Livraison 3ème trimestre 2026
J.O.U.R
Bourg-en-Bresse (01000)
Bourg-en-Bresse (01000)
Appartements de 2 à 5 pièces
Livraison 2ème trimestre 2027
Espace Milliat
Bourg-en-Bresse (01000)
Bourg-en-Bresse (01000)
Appartements de 2 à 4 pièces
Livraison 3ème trimestre 2025
Le Clos des Maraîchers
Bourg-en-Bresse (01000)
Bourg-en-Bresse (01000)
Appartements de 2 à 4 pièces
Livraison 3ème trimestre 2027
TILIA
Bourg-en-Bresse (01000)
Bourg-en-Bresse (01000)
Appartements de 2 à 4 pièces
Contacter MAISONS ALAIN MÉTRAL pour recevoir plus d'informations
Remplissez le formulaire ci-dessous, vos informations sont transmises directement au constructeur qui vous contactera par email ou par téléphone afin de traiter votre demande. En savoir plus.