Maison neuve, 127 m² - Le May-sur-Evre (49122)
336 500 €
Le May-sur-Evre (49122)
Proposée par MAISONS BERNARD JAMBERT – 5 pièces - 4 chambres - terrain 554 m²
|
|
| MAISONS BERNARD JAMBERT |
- Demande d'information
- Prendre rendez-vous
MAISON À CONSTRUIRE : ceci est une annonce d'une maison neuve à construire.
Le May-sur-Èvre : maison de 5 pièces (127 m²) en vente
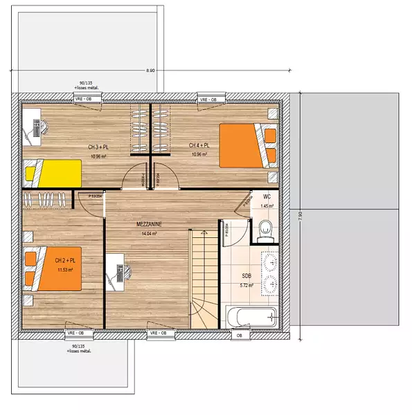
Idéalement située - Au May-sur-Èvre (49122), maison neuve en vente de 5 pièces, 2 niveaux, 127 m² de surface sur 554 m² de terrain. Elle compte quatre chambres, une cuisine et deux salles de bains.
À proximité : gare (Cholet), établissements scolaires, crèche, tennis, boulangeries, commerces, supermarché, bureau de poste et boucherie-charcuterie. Accès autoroute A87 et nationale N249 à 8 km. Cholet à 10 km.
Le prix de vente de cette maison de 5 pièces est de 336 500 €.
Contactez Mathieu JANNEAU (tél : 06-01-35-24-98) pour plus d'informations sur la maison. Maisons Bernard Jambert Angers vous accompagne dans toutes vos démarches et à toutes les étapes de votre projet.
Référence : MJ2399471_3
Terrain proposé par un partenaire foncier selon disponibilités et autorisation de publicité au prix de 65 372 €. Hors droit d'enregistrement et frais de notaire. Terrain + Maison proposés au prix de 271 128 € (Hors branchements et raccordements, papiers peints, peintures, revêtement de sol dans les chambres. Tarif modifiable sans préavis). Etiquette énergie : A. Différents modèles disponibles pour ce terrain. Assurances et garanties du constructeur (RC professionnelle, décennale, dommage ouvrage, garantie de remboursement de l'acompte, livraison à prix et délai convenu) : https://www.maisons-bernard-jambert.com/informations-legales/.
Les informations sur les risques auxquels ce bien est exposé sont disponibles sur le site Géorisques : www.georisques.gouv.fr
Idéalement située - Au May-sur-Èvre (49122), maison neuve en vente de 5 pièces, 2 niveaux, 127 m² de surface sur 554 m² de terrain. Elle compte quatre chambres, une cuisine et deux salles de bains.
À proximité : gare (Cholet), établissements scolaires, crèche, tennis, boulangeries, commerces, supermarché, bureau de poste et boucherie-charcuterie. Accès autoroute A87 et nationale N249 à 8 km. Cholet à 10 km.
Le prix de vente de cette maison de 5 pièces est de 336 500 €.
Contactez Mathieu JANNEAU (tél : 06-01-35-24-98) pour plus d'informations sur la maison. Maisons Bernard Jambert Angers vous accompagne dans toutes vos démarches et à toutes les étapes de votre projet.
Référence : MJ2399471_3
Terrain proposé par un partenaire foncier selon disponibilités et autorisation de publicité au prix de 65 372 €. Hors droit d'enregistrement et frais de notaire. Terrain + Maison proposés au prix de 271 128 € (Hors branchements et raccordements, papiers peints, peintures, revêtement de sol dans les chambres. Tarif modifiable sans préavis). Etiquette énergie : A. Différents modèles disponibles pour ce terrain. Assurances et garanties du constructeur (RC professionnelle, décennale, dommage ouvrage, garantie de remboursement de l'acompte, livraison à prix et délai convenu) : https://www.maisons-bernard-jambert.com/informations-legales/.
Les informations sur les risques auxquels ce bien est exposé sont disponibles sur le site Géorisques : www.georisques.gouv.fr
- Prix
-
- Prix total : 336 500 €
- Prix du modèle de maison : 271 128 €
- Prix du terrain : 65 372 €
- Terrain
-
- Surface : 554 m²
- Maison
-
- Surface : 127 m²
- Pièces : 5
- Chambres : 4
- Garage : 1
- Être rappelé par un conseiller
- Demander plus d’infos
- Demande d'information
Le May-sur-Evre (49122)
Maisons à proximité
Maison neuve, 50 m²
Le May-sur-Evre (49122)
Le May-sur-Evre (49122)
Maison de 3 pièces
Maison neuve, 66 m²
Le May-sur-Evre (49122)
Le May-sur-Evre (49122)
Maison de 3 pièces
Maison neuve, 90 m²
Le May-sur-Evre (49122)
Le May-sur-Evre (49122)
Maison de 4 pièces
Maison neuve, 71 m²
Le May-sur-Evre (49122)
Le May-sur-Evre (49122)
Maison de 3 pièces
Maison neuve, 90 m²
Le May-sur-Evre (49122)
Le May-sur-Evre (49122)
Maison de 4 pièces
Maison neuve, 120 m²
Le May-sur-Evre (49122)
Le May-sur-Evre (49122)
Maison de 5 pièces
Programmes à proximité
Les Cotonnières
Cholet (49300)
Cholet (49300)
Appartements de 1 à 4 pièces
Livraison 3ème trimestre 2029
Les Jardins des Mauges
Cholet (49300)
Cholet (49300)
Appartements de 2 à 4 pièces
Livraison 4ème trimestre 2026
Les Jardins des Mauges II
Cholet (49300)
Cholet (49300)
Appartements de 1 à 3 pièces
Livraison 1er trimestre 2028
ORGANZA
Cholet (49300)
Cholet (49300)
Appartements de 3 pièces et maisons de 3 pièces
Livraison 2ème trimestre 2026
Le Clos de la Roseraie
Mortagne-sur-Sèvre (85290)
Mortagne-sur-Sèvre (85290)
Appartements de 2 à 4 pièces
Livraison 1er trimestre 2028
Contacter MAISONS BERNARD JAMBERT pour recevoir plus d'informations
Remplissez le formulaire ci-dessous, vos informations sont transmises directement au constructeur qui vous contactera par email ou par téléphone afin de traiter votre demande. En savoir plus.