Maison neuve, 145 m² - Le Crès (34920)

760 000 €
Le Crès (34920)

Proposée par MAISONS BALENCY – 6 pièces - 3 chambres - terrain 900 m²

MAISONS BALENCY
MAISONS BALENCY
(46 avis)
  • Demande d'information
MAISON À CONSTRUIRE : ceci est une annonce d'une maison neuve à construire.
Le Crès : maison de 6 pièces (145 m²) en vente
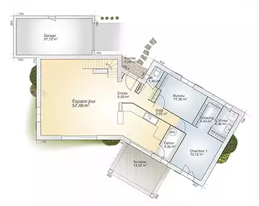
Emplacement privilégié - Au Crès (34920), maison neuve en vente de 6 pièces, 2 niveaux, 145 m² et 900 m² de terrain. Elle propose trois chambres, une cuisine et deux salles de bains.
À proximité : gares, établissements scolaires, crèche, bibliothèque, boulangeries et commerce. Accès autoroute A709 et nationales N113 et N109 à 10 km. Mer Méditerranée à 13 km. Montpellier à 7 km.
Cette maison de 6 pièces est proposée à l'achat pour 760 000 €.
.
Référence : CJ2298250_2
Terrain proposé par un partenaire foncier selon disponibilités et autorisation de publicité au prix de 430 000 €. Hors droit d'enregistrement et frais de notaire. Maison proposée, avec un contrat de construction de maison individuelle, dans le cadre de la loi du 19/12/1990, au prix de 330 000 € (Hors branchements et raccordements, papiers peints, peintures, revêtement de sol dans les chambres, qui sont chiffrés dans les travaux qui restent à charge du client. Tarif modifiable sans préavis). Étiquette énergie : A. Différents modèles disponibles pour ce terrain. Assurances et garanties du constructeur comprises (RC professionnelle, décennale, dommage ouvrage).

Les informations sur les risques auxquels ce bien est exposé sont disponibles sur le site Géorisques : www.georisques.gouv.fr


Prix
  • Prix total : 760 000 €
  • Prix du modèle de maison : 330 000 €
  • Prix du terrain : 430 000 €

Terrain
  • Surface : 900 m²

Maison
  • Surface : 145 m²
  • Pièces : 6
  • Chambres : 3
  • Garage : 1

  • Être rappelé par un conseiller
  • Demander plus d’infos
  • Demande d'information
Le Crès (34920)

Programmes à proximité

Confidences
Confidences
Saint-Aunès (34130)

Appartements de 3 pièces
Livraison 2ème trimestre 2026

Les Terrasses de Rochet
Les Terrasses de Rochet
Castelnau-le-Lez (34170)

Appartement de 3 pièces
Livraison 1er trimestre 2025

LES JARDINS DE VERCHANT
LES JARDINS DE VERCHANT
Castelnau-le-Lez (34170)

Appartement de 4 pièces
Livraison 4ème trimestre 2023

Les Villas du Lez
Les Villas du Lez
Castelnau-le-Lez (34170)

Appartements de 4 à 5 pièces
Livraison 3ème trimestre 2027

KAPIA / KHARA
KAPIA / KHARA
Castelnau-le-Lez (34170)

Appartements de 2 à 3 pièces
Livraison 4ème trimestre 2025

PIETRA
PIETRA
Castries (34160)

Appartements de 3 à 4 pièces et maison de 4 pièces
Livraison 2ème trimestre 2025

Contacter MAISONS BALENCY pour recevoir plus d'informations

Remplissez le formulaire ci-dessous, vos informations sont transmises directement au constructeur qui vous contactera par email ou par téléphone afin de traiter votre demande. En savoir plus.

Voir tous nos programmes immobiliers neufs au Crès