Maison neuve, 100 m² - Saint-Aunès (34130)

510 000 €
Saint-Aunès (34130)

Proposée par MAISONS FRANCE CONFORT – 5 pièces - 3 chambres - terrain 477 m²

MAISONS FRANCE CONFORT
MAISONS FRANCE CONFORT
(86 avis)
  • Demande d'information
MAISON À CONSTRUIRE : ceci est une annonce d'une maison neuve à construire.
Réaliser le rêve d'être propriétaire proche de Montpellier
A SAINT AUNES, Maisons France confort est ravie de vous proposer votre future maison.
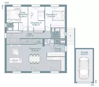
Son intérieur compte trois chambres, une salle de bains ainsi qu'un séjour salon cuisine très lumineux EN NIVEAUX DECALE ouvert sur votre jardin et pouvant accueillir un îlot central.
Menuiseries PVC, Baies alu avec volets roulants motorisés.
Chauffage clim GAINABLE
L'École Maternelle Albert Dubout et l'École Élémentaire Albert Dubout sont implantées à moins de 10 minutes à pied. Côté transports en commun, il y a la gare Saint-Aunès dans les alentours. L'autoroute A709 et la nationale N113 sont accessibles à moins de 3 km. On trouve un tennis, une bibliothèque, des commerces, deux boulangeries, un supermarché, un bureau de poste et une épicerie à proximité de la maison.
PRIX : 510 000€.
(Sous réserve de disponibilités)
Votre maison bioclimatique est livrée crépis gratté + carrelage dans toutes les pièces (A choisir). Dans la salle de bain la faïence est comprise (A choisir). Les sanitaires avec meuble vasque et wc suspendu sont déjà inclus. Tous les volets sont motorisés
Prenez contact avec Xavier MONDIERE (06-52-30-63-41) pour plus de renseignements sur la maison ou sur les démarches à suivre.
Maisons France Confort Montpellier est à vos côté pour vous accompagner à toutes les étapes de votre projet personnalisé en contrat de construction loi de 90 (CCMI).
Vous êtes en quête d'inspiration ? Pas de panique, notre équipe est entièrement disponible, à l'écoute de vos besoins et attentes pour vous conseiller afin de réaliser votre projet de vie !
Annonce proposée par un Agent Commercial Partenaire.
Référence : XM2345307_1
Terrain proposé par un partenaire foncier selon disponibilités et autorisation de publicité au prix de 209 000 €. Hors droit d'enregistrement et frais de notaire. Terrain + Maison proposés au prix de 301 000 € (Hors branchements et raccordements, papiers peints, peintures, revêtement de sol dans les chambres. Tarif modifiable sans préavis). Etiquette énergie : A. Différents modèles disponibles pour ce terrain. Assurances et garanties du constructeur (RC professionnelle, décennale, dommage ouvrage, garantie de remboursement de l'acompte, livraison à prix et délai convenu) : https://www.maisons-france-confort.fr/mentions-legales/. HEXAOM Services est enregistré auprès de l'ORIAS en tant que Courtier en financement, Niveau 1, sous le numéro 14001345.

Les informations sur les risques auxquels ce bien est exposé sont disponibles sur le site Géorisques : www.georisques.gouv.fr


Prix
  • Prix total : 510 000 €
  • Prix du modèle de maison : 301 000 €
  • Prix du terrain : 209 000 €

Terrain
  • Surface : 477 m²

Maison
  • Surface : 100 m²
  • Pièces : 5
  • Chambres : 3
  • Garage : 1

  • Être rappelé par un conseiller
  • Demander plus d’infos
  • Demande d'information
Saint-Aunès (34130)

Programmes à proximité

Confidences
Confidences
Saint-Aunès (34130)

Appartements de 3 pièces
Livraison 2ème trimestre 2026

LE JARDIN DE CASTILLE
LE JARDIN DE CASTILLE
Mauguio (34130)

Appartements de 2 à 3 pièces
Livraison 3ème trimestre 2027

VILLA PIERRE
VILLA PIERRE
Mauguio (34130)

Appartements de 4 pièces
Livraison 4ème trimestre 2026

LE CLOS CERES
LE CLOS CERES
Mauguio (34130)

Appartements de 3 à 4 pièces
Livraison 4ème trimestre 2026

Domaine de Canastel
Domaine de Canastel
Baillargues (34670)

Appartements de 3 à 4 pièces
Livraison 4ème trimestre 2024

DEVI TARA
DEVI TARA
Baillargues (34670)

Appartements de 3 à 4 pièces
Livraison 4ème trimestre 2025

Contacter MAISONS FRANCE CONFORT pour recevoir plus d'informations

Remplissez le formulaire ci-dessous, vos informations sont transmises directement au constructeur qui vous contactera par email ou par téléphone afin de traiter votre demande. En savoir plus.

Voir tous nos programmes immobiliers neufs à Saint-Aunès