Maison neuve, 90 m² - Larçay (37270)
299 000 €
Larçay (37270)
Proposée par MAISONS FRANCE CONFORT – 4 pièces - 3 chambres - terrain 510 m²
|
|
| MAISONS FRANCE CONFORT |
- Demande d'information
- Prendre rendez-vous
MAISON À CONSTRUIRE : ceci est une annonce d'une maison neuve à construire.
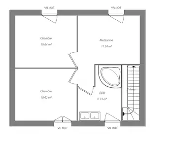
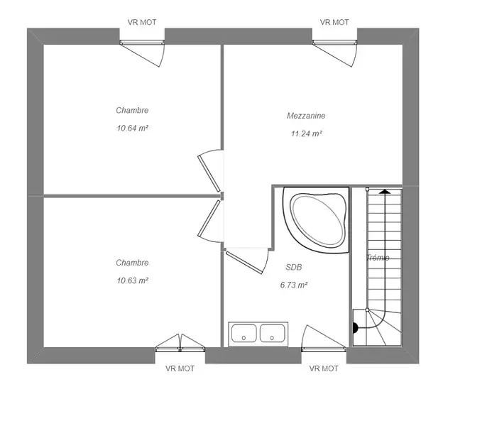
Jolie maison de type R+1 d'une superficie globale de 98m².
Au rez-de-chaussée, vous trouverez un garage spacieux, une belle pièce de vie ainsi qu'un cellier et une suite parentale.
A l'étage, vous aurez la possibilité de faire entre deux et trois chambres selon vos envies ainsi qu'une belle salle de bain.
Concernant les prestations de la maison, vous retrouverez une pompe à chaleur couplée avec un plancher chauffant, des menuiseries de couleur en aluminium, un plancher béton, des ardoises artificielles...
Très beau terrain situé à Larçay, dans un secteur calme et très résidentiel, bordé d'une zone non constructible qui permet d'avoir de très belles perspectives côté jardin, et de profiter en plus d'une orientation ensoleillée.
Terrain plat, desservi par tous les réseaux et situé hors zone classée Monuments Historiques (sans contrainte de construction).
Me contacter pour en savoir plus
Référence : AG2297864_1
Terrain proposé par un partenaire foncier selon disponibilités et autorisation de publicité au prix de 117 300 €. Hors droit d'enregistrement et frais de notaire. Maison proposée, avec un contrat de construction de maison individuelle, dans le cadre de la loi du 19/12/1990, au prix de 181 700 € (Hors branchements et raccordements, papiers peints, peintures, revêtement de sol dans les chambres, qui sont chiffrés dans les travaux qui restent à charge du client. Tarif modifiable sans préavis). Étiquette énergie : A. Différents modèles disponibles pour ce terrain. Assurances et garanties du constructeur comprises (RC professionnelle, décennale, dommage ouvrage).
Les informations sur les risques auxquels ce bien est exposé sont disponibles sur le site Géorisques : www.georisques.gouv.fr
Au rez-de-chaussée, vous trouverez un garage spacieux, une belle pièce de vie ainsi qu'un cellier et une suite parentale.
A l'étage, vous aurez la possibilité de faire entre deux et trois chambres selon vos envies ainsi qu'une belle salle de bain.
Concernant les prestations de la maison, vous retrouverez une pompe à chaleur couplée avec un plancher chauffant, des menuiseries de couleur en aluminium, un plancher béton, des ardoises artificielles...
Très beau terrain situé à Larçay, dans un secteur calme et très résidentiel, bordé d'une zone non constructible qui permet d'avoir de très belles perspectives côté jardin, et de profiter en plus d'une orientation ensoleillée.
Terrain plat, desservi par tous les réseaux et situé hors zone classée Monuments Historiques (sans contrainte de construction).
Me contacter pour en savoir plus
Référence : AG2297864_1
Terrain proposé par un partenaire foncier selon disponibilités et autorisation de publicité au prix de 117 300 €. Hors droit d'enregistrement et frais de notaire. Maison proposée, avec un contrat de construction de maison individuelle, dans le cadre de la loi du 19/12/1990, au prix de 181 700 € (Hors branchements et raccordements, papiers peints, peintures, revêtement de sol dans les chambres, qui sont chiffrés dans les travaux qui restent à charge du client. Tarif modifiable sans préavis). Étiquette énergie : A. Différents modèles disponibles pour ce terrain. Assurances et garanties du constructeur comprises (RC professionnelle, décennale, dommage ouvrage).
Les informations sur les risques auxquels ce bien est exposé sont disponibles sur le site Géorisques : www.georisques.gouv.fr
- Prix
-
- Prix total : 299 000 €
- Prix du modèle de maison : 181 700 €
- Prix du terrain : 117 300 €
- Terrain
-
- Surface : 510 m²
- Maison
-
- Surface : 90 m²
- Pièces : 4
- Chambres : 3
- Garage : 1
- Être rappelé par un conseiller
- Demander plus d’infos
- Demande d'information
Larçay (37270)
Maisons à proximité
Maison neuve, 240 m²
Larçay (37270)
Larçay (37270)
Maison de 6 pièces
Maison neuve, 80 m²
Larçay (37270)
Larçay (37270)
Maison de 3 pièces
Maison neuve, 96 m²
Larçay (37270)
Larçay (37270)
Maison de 4 pièces
Maison neuve, 98 m²
Larçay (37270)
Larçay (37270)
Maison de 5 pièces
Maison neuve, 120 m²
Larçay (37270)
Larçay (37270)
Maison de 4 pièces
Maison neuve, 165 m²
Larçay (37270)
Larçay (37270)
Maison de 5 pièces
Programmes à proximité
LOUISE DE BOURBON
La Ville-aux-Dames (37700)
La Ville-aux-Dames (37700)
Appartements de 3 pièces
COURTIL MONTLOUIS - MONTLOUIS SUR LOIRE
Montlouis-sur-Loire (37270)
Montlouis-sur-Loire (37270)
Appartements de 2 à 4 pièces
Livraison 4ème trimestre 2026
CARRE DES HALLES
Vouvray (37210)
Vouvray (37210)
Appartements de 1 à 4 pièces
Livraison 3ème trimestre 2027
AD'AILE - TOURS
Tours (37100)
Tours (37100)
Appartement de 3 pièces
Livraison 4ème trimestre 2027
URBAN LODGES
Tours (37100)
Tours (37100)
Appartements de 2 à 3 pièces
Livraison 4ème trimestre 2026
LES JARDINS DU LUXEMBOURG
Tours (37100)
Tours (37100)
Appartements de 2 à 4 pièces
Livraison 3ème trimestre 2027
Contacter MAISONS FRANCE CONFORT pour recevoir plus d'informations
Remplissez le formulaire ci-dessous, vos informations sont transmises directement au constructeur qui vous contactera par email ou par téléphone afin de traiter votre demande. En savoir plus.