Maison neuve, 76 m² - La Vieux-Rue (76160)

197 599 €
La Vieux-Rue (76160)

Proposée par MAISONS FRANCE CONFORT – 4 pièces - 3 chambres - terrain 545 m²

MAISONS FRANCE CONFORT
MAISONS FRANCE CONFORT
  • Demande d'information
MAISON À CONSTRUIRE : ceci est une annonce d'une maison neuve à construire.
Votre projet de construction est prêt!!
Il se situe à la Vieux Rue 76160 dans un nouveau lotissement, peu de voisinage, sur un terrain déjà viabilisé, assainissement collectif!!
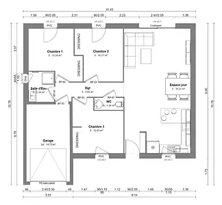
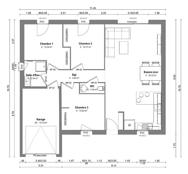
Cette maison comprend 3 chambres, un espace de vie cuisine/séjour ouvert, un garage et une salle d'eau commune, les menuiseries sont en pvc, et le système de chauffage est une Pac Air Air..
Je vous indiquerai les frais annexes a ajouter a ce projet!!
Maisons France Confort, fondateur du Groupe HEXAOM, vous promet un projet durable.
Laissez moi vous accompagner de A à Z, libérez vous des recherches épuisantes et offrez vous un vrai investissement avec un DPE en classe A!!!
Je m'appelle Lindsay COLLAY, et vous pouvez me contacter O6 67 66 O8 77
Référence : LC2419745_1
Terrain proposé par un partenaire foncier selon disponibilités et autorisation de publicité au prix de 71 000 €. Hors droit d'enregistrement et frais de notaire. Terrain + Maison proposés au prix de 197 599 € (Hors branchements et raccordements, papiers peints, peintures, revêtement de sol dans les chambres. Tarif modifiable sans préavis). Etiquette énergie : A. Différents modèles disponibles pour ce terrain. Assurances et garanties du constructeur (RC professionnelle, décennale, dommage ouvrage, garantie de remboursement de l'acompte, livraison à prix et délai convenu) : HEXAOM Services est enregistré auprès de l'ORIAS en tant que Courtier en financement, Niveau 1, sous le numéro 14001345.

Les informations sur les risques auxquels ce bien est exposé sont disponibles sur le site Géorisques : www.georisques.gouv.fr


Prix
  • Prix total : 197 599 €
  • Prix du modèle de maison : 126 599 €
  • Prix du terrain : 71 000 €

Terrain
  • Surface : 545 m²

Maison
  • Surface : 76 m²
  • Pièces : 4
  • Chambres : 3
  • Garage : 1

  • Être rappelé par un conseiller
  • Demander plus d’infos
  • Demande d'information
La Vieux-Rue (76160)

Programmes à proximité

Le Domaine des Roses
Le Domaine des Roses
Préaux (76160)

Appartements de 2 à 4 pièces
Livraison 1er trimestre 2028

Rodbaek Village
Rodbaek Village
Darnétal (76160)

Appartements de 1 à 3 pièces et maisons de 4 à 5 pièces
Livraison 2ème trimestre 2027

Le Domaine
Le Domaine
Bois-Guillaume (76230)

Appartements de 2 à 5 pièces et maison de 4 pièces
Livraison 3ème trimestre 2027

Le Faubourg Saint Antoine
Le Faubourg Saint Antoine
Bois-Guillaume (76230)

Appartements de 1 à 4 pièces
Livraison 3ème trimestre 2027

CHAPITRE PREMIER
CHAPITRE PREMIER
Bihorel (76420)

Appartements de 1 à 4 pièces
Livraison 4ème trimestre 2028

La Villa Leleu
La Villa Leleu
Bihorel (76420)

Appartements de 2 à 4 pièces
Livraison 4ème trimestre 2027

Contacter MAISONS FRANCE CONFORT pour recevoir plus d'informations

Remplissez le formulaire ci-dessous, vos informations sont transmises directement au constructeur qui vous contactera par email ou par téléphone afin de traiter votre demande. En savoir plus.

Voir tous nos programmes immobiliers neufs à La Vieux-Rue