Maison neuve, 90 m² - La Haye-Malherbe (27400)

217 000 €
La Haye-Malherbe (27400)

Proposée par MAISONS BALENCY – 6 pièces - 3 chambres - terrain 485 m²

MAISONS BALENCY
MAISONS BALENCY
  • Demande d'information
MAISON À CONSTRUIRE : ceci est une annonce d'une maison neuve à construire.
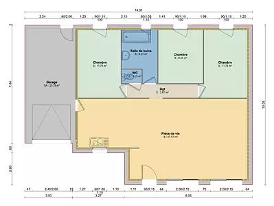
VENTE : maison de 6 pièces (90 m²) à La Haye-Malherbe
Idéalement située - À La Haye-Malherbe (27400), maison neuve à vendre de 6 pièces, 90 m² de surface sur 485 m² de terrain. Conçue de plain-pied, elle dispose de trois chambres, d'une cuisine et d'une salle de bains.
À dix minutes : gare (Elbeuf-Saint-Aubin), École Primaire le Village, commerces, boulangerie, bureau de poste, épicerie et boucherie-charcuterie. Autoroutes A13 et A154 et nationale N154 accessibles à 9 km. Rouen à 23 km.
Le prix de vente de cette maison de 6 pièces est de 217 000 €.
. Faites de vos projets immobiliers une réalité avec Maisons Balency Boos.
Annonce proposée par un Agent Commercial Partenaire.
Référence : EL2305159_4
Terrain proposé par un partenaire foncier selon disponibilités et autorisation de publicité au prix de 58 000 €. Hors droit d'enregistrement et frais de notaire. Maison proposée, avec un contrat de construction de maison individuelle, dans le cadre de la loi du 19/12/1990, au prix de 159 000 € (Hors branchements et raccordements, papiers peints, peintures, revêtement de sol dans les chambres, qui sont chiffrés dans les travaux qui restent à charge du client. Tarif modifiable sans préavis). Étiquette énergie : A. Différents modèles disponibles pour ce terrain. Assurances et garanties du constructeur comprises (RC professionnelle, décennale, dommage ouvrage).

Les informations sur les risques auxquels ce bien est exposé sont disponibles sur le site Géorisques : www.georisques.gouv.fr


Prix
  • Prix total : 217 000 €
  • Prix du modèle de maison : 159 000 €
  • Prix du terrain : 58 000 €

Terrain
  • Surface : 485 m²

Maison
  • Surface : 90 m²
  • Pièces : 6
  • Chambres : 3
  • Garage : 1

  • Être rappelé par un conseiller
  • Demander plus d’infos
  • Demande d'information
La Haye-Malherbe (27400)

Programmes à proximité

Les Amandiers
Les Amandiers
Louviers (27400)

Appartements de 3 pièces
Livraison 4ème trimestre 2025

Reverso Louviers
Reverso Louviers
Louviers (27400)

Appartements de 1 à 3 pièces
Livraison 4ème trimestre 2025

JARDINS NOTRE DAME
JARDINS NOTRE DAME
Elbeuf (76500)

Appartements de 1 à 4 pièces et maisons de 4 pièces
Livraison 3ème trimestre 2027

RESIDENCE VALVERT
RESIDENCE VALVERT
Val-de-Reuil (27100)

Appartements de 2 pièces
Livraison 4ème trimestre 2026

À 10 MIN* DE LA GARE
À 10 MIN* DE LA GARE
Oissel (76350)

Appartements de 1 à 2 pièces
Livraison 4ème trimestre 2026

Louise Sainte-Martine
Louise Sainte-Martine
Sotteville-lès-Rouen (76300)

Appartements de 2 à 4 pièces
Livraison 2ème trimestre 2028

Contacter MAISONS BALENCY pour recevoir plus d'informations

Remplissez le formulaire ci-dessous, vos informations sont transmises directement au constructeur qui vous contactera par email ou par téléphone afin de traiter votre demande. En savoir plus.

Voir tous nos programmes immobiliers neufs à La Haye-Malherbe