Maison neuve, 80 m² - La Garde-Freinet (83680)

349 660 €
La Garde-Freinet (83680)

Proposée par MAISONS FRANCE CONFORT – 4 pièces - 3 chambres - terrain 300 m²

MAISONS FRANCE CONFORT
MAISONS FRANCE CONFORT
(101 avis)
  • Demande d'information
MAISON À CONSTRUIRE : ceci est une annonce d'une maison neuve à construire.
Votre constructeur Maisons France Confort, vous propose la construction de votre villa à La Garde-Freinet
La Garde-Freinet - Le charme authentique du Massif des Maures
Perché au coeur du Massif des Maures, à seulement quelques minutes du Golfe de Saint-Tropez, La Garde-Freinet vous accueille dans un décor typiquement provençal. Rues pavées, maisons en pierre, places ombragées et paysages naturels préservés... ici, l'art de vivre prend tout son sens.
Flânez dans le village, profitez de son marché provençal, explorez les ruines du Fort-Freinet, ou partez en randonnée au milieu des chênes-lièges et des châtaigniers. La Garde-Freinet est un véritable havre de paix pour les amoureux de nature, d'histoire et d'authenticité.
Un village facilement accessible :
Situé entre mer et collines, le village est desservi par la D558, une route pittoresque reliant Le Cannet-des-Maures à Cogolin.
Les accès autoroutiers les plus proches sont :
Autoroute A57 - sortie Le Cannet-des-Maures
Connexion rapide vers l'A8, permettant de rejoindre Nice, Cannes, Toulon et la Côte d'Azur
Proposition projet :
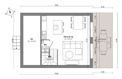
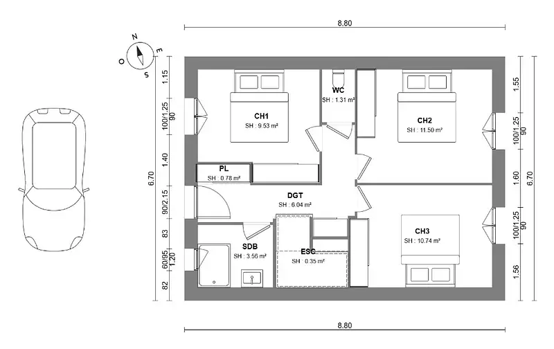
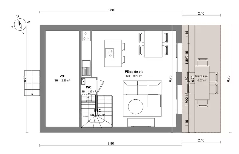
Maison à étage de 80m2 comprenant une jolie pièce de vie et 3 chambres
Calme et vue dégagée
Terrassement à prévoir (sera estimé selon votre projet) non inclus dans prix affiché
Contactez votre chargée de projet au O62861162O pour toute demande d'informations
Confiez vos projets à Maisons France Confort, leader de la construction sur le secteur
Référence : AVB2340069_1
Terrain proposé par un partenaire foncier selon disponibilités et autorisation de publicité au prix de 157 000 €. Hors droit d'enregistrement et frais de notaire. Terrain + Maison proposés au prix de 192 660 € (Hors branchements et raccordements, papiers peints, peintures, revêtement de sol dans les chambres. Tarif modifiable sans préavis). Etiquette énergie : A. Différents modèles disponibles pour ce terrain. Assurances et garanties du constructeur (RC professionnelle, décennale, dommage ouvrage, garantie de remboursement de l'acompte, livraison à prix et délai convenu) : https://www.maisons-france-confort.fr/mentions-legales/. HEXAOM Services est enregistré auprès de l'ORIAS en tant que Courtier en financement, Niveau 1, sous le numéro 14001345.

Les informations sur les risques auxquels ce bien est exposé sont disponibles sur le site Géorisques : www.georisques.gouv.fr


Prix
  • Prix total : 349 660 €
  • Prix du modèle de maison : 192 660 €
  • Prix du terrain : 157 000 €

Terrain
  • Surface : 300 m²

Maison
  • Surface : 80 m²
  • Pièces : 4
  • Chambres : 3

  • Être rappelé par un conseiller
  • Demander plus d’infos
  • Demande d'information
La Garde-Freinet (83680)

Maisons à proximité

Programmes à proximité

Castanea
Castanea
La Garde-Freinet (83680)

Appartements de 2 à 4 pièces
Livraison 1er trimestre 2028

Soléa
Soléa
Cogolin (83310)

Appartements de 1 à 4 pièces
Livraison 4ème trimestre 2028

Terra Mare
Terra Mare
Cogolin (83310)

Appartements de 2 à 4 pièces
Livraison 3ème trimestre 2027

Investir en nue propriété près du centre historique
Investir en nue propriété près du centre historique
Cogolin (83310)

Appartement de 4 pièces
Livraison 2ème trimestre 2026

COULEUR PROVENCE
COULEUR PROVENCE
Cogolin (83310)

Appartements de 2 à 4 pièces
Livraison 2ème trimestre 2027

Contacter MAISONS FRANCE CONFORT pour recevoir plus d'informations

Remplissez le formulaire ci-dessous, vos informations sont transmises directement au constructeur qui vous contactera par email ou par téléphone afin de traiter votre demande. En savoir plus.

Voir tous nos programmes immobiliers neufs à La Garde-Freinet