Maison neuve, 110 m² - Vidauban (83550)

375 000 €
Vidauban (83550)

Proposée par MAISONS DE MANON – 4 pièces - 4 chambres - terrain 1 000 m²

MAISONS DE MANON
MAISONS DE MANON
(95 avis)
  • Demande d'information
MAISON À CONSTRUIRE : ceci est une annonce d'une maison neuve à construire.
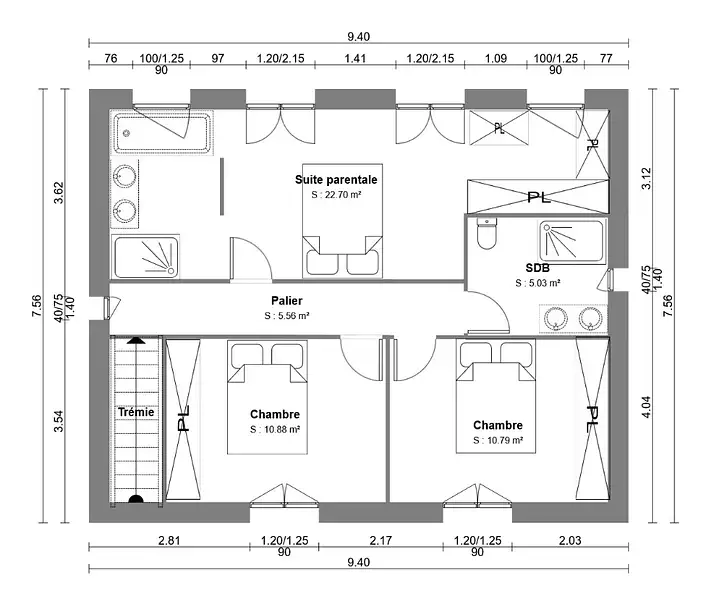
Les Maisons de Manon de Callian vous propose sur ce terrain diverses réalisations possible notamment une réalisation sur mesures ultra moderne de 110m² habitable avec des belles ouvertures afin d'avoir une luminosité optimale. Il dispose de 4 chambres dont une superbe suite parentale avec dressing et salle d'eaux, une salle de bain, deux wc, un bureau au rez de chaussée ainsi qu'une pièce de vie orienté sud avec une cuisine ouverte à partir de 375 000€TTC (terrain inclus, hors frais de notaire, hors frais annexes, hors cuisine, hors peinture, garage et terrasse en option). Vous disposerez de nombreuses prestations de qualités, carrelage grand format, WC suspendu, chauffage réversible, domotique...et d'un réel accompagnement tout au long du projet. Pour plus d'informations contactez votre conseiller commercial des Maisons de Manon de Callian Mr Maugras Alexandre au O679268866
Annonce proposée par un Agent Commercial Partenaire.
Référence : AM2399288_2
Terrain proposé par un partenaire foncier selon disponibilités et autorisation de publicité au prix de 160 000 €. Hors droit d'enregistrement et frais de notaire. Terrain + Maison proposés au prix de 215 000 € (Hors branchements et raccordements, papiers peints, peintures, revêtement de sol dans les chambres. Tarif modifiable sans préavis). Etiquette énergie : A. Différents modèles disponibles pour ce terrain. Assurances et garanties du constructeur (RC professionnelle, décennale, dommage ouvrage, garantie de remboursement de l'acompte, livraison à prix et délai convenu) : https://www.maisons-de-manon.fr/informations-legales/. HEXAOM Services est enregistré auprès de l'ORIAS en tant que Courtier en financement, Niveau 1, sous le numéro 14001345.

Les informations sur les risques auxquels ce bien est exposé sont disponibles sur le site Géorisques : www.georisques.gouv.fr


Prix
  • Prix total : 375 000 €
  • Prix du modèle de maison : 215 000 €
  • Prix du terrain : 160 000 €

Terrain
  • Surface : 1 000 m²

Maison
  • Surface : 110 m²
  • Pièces : 4
  • Chambres : 4
  • Garage : 1

  • Être rappelé par un conseiller
  • Demander plus d’infos
  • Demande d'information
Vidauban (83550)

Programmes à proximité

Le Patio des Lys
Le Patio des Lys
Le Muy (83490)

Appartements de 3 à 4 pièces
Livraison 2ème trimestre 2027

Castanea
Castanea
La Garde-Freinet (83680)

Appartements de 2 à 4 pièces
Livraison 1er trimestre 2028

FLEUR DU NIL
FLEUR DU NIL
Draguignan (83300)

Appartement
Livraison 4ème trimestre 2026

Les Terrasses du Dragon
Les Terrasses du Dragon
Draguignan (83300)

Appartements de 2 à 3 pièces
Livraison 2ème trimestre 2028

Le domaine de la Fée
Le domaine de la Fée
Draguignan (83300)

Appartements de 2 pièces
Livraison 2ème trimestre 2026

Les Jardins de Novaia
Les Jardins de Novaia
Draguignan (83300)

Appartements de 2 à 3 pièces
Livraison 3ème trimestre 2028

Contacter MAISONS DE MANON pour recevoir plus d'informations

Remplissez le formulaire ci-dessous, vos informations sont transmises directement au constructeur qui vous contactera par email ou par téléphone afin de traiter votre demande. En savoir plus.

Voir tous nos programmes immobiliers neufs à Vidauban