Maison neuve, 119 m² - La Bernerie-en-Retz (44760)
Proposée par MAISONS TRADILIGNES – 8 pièces - 3 chambres - terrain 4 376 m²
|
MAISONS TRADILIGNES |
- Demande d'information
- Prendre rendez-vous
PROCHE DE SAINT-NAZAIRE - MAISON 8 PIÈCES NEUVE
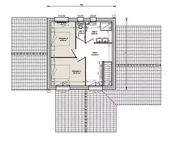
En vente : à 1 km de la côte atlantique et à deux pas de Saint-Nazaire, nous vous présentons cette maison de 8 pièces de 119 m² à La Bernerie-en-Retz (44760). Elle comporte trois chambres, une cuisine et deux salles de bains.
Le terrain du bien s'étend sur 4 376 m².
Cette maison compte 2 niveaux. Elle est neuve.
L'École Primaire Publique René-Guy Cadou est implantée à moins de 10 minutes . Côté transports, on trouve la gare La Bernerie-en-Retz . Il y a un tennis, un port de plaisance, une bibliothèque, ... Afficher plus
Son prix de vente est de 512 600 €.
. Maisons Tradilignes Pornic vous accompagne dans tous vos projets immobiliers et à toutes les étapes de votre projet.
Référence : VC2236721_1
Terrain proposé par un partenaire foncier selon disponibilités et autorisation de publicité au prix de 198 880 €. Hors droit d'enregistrement et frais de notaire. Maison proposée, avec un contrat de construction de maison individuelle, dans le cadre de la loi du 19/12/1990, au prix de 313 720 € (Hors branchements et raccordements, papiers peints, peintures, revêtement de sol dans les chambres, qui sont chiffrés dans les travaux qui restent à charge du client. Tarif modifiable sans préavis). Étiquette énergie : A. Différents modèles disponibles pour ce terrain. Assurances et garanties du constructeur comprises (RC professionnelle, décennale, dommage ouvrage).
Les informations sur les risques auxquels ce bien est exposé sont disponibles sur le site Géorisques : www.georisques.gouv.fr
- Prix
-
- Prix total : 512 600 €
- Prix du modèle de maison : 313 720 €
- Prix du terrain : 198 880 €
- Terrain
-
- Surface : 4 376 m²
- Maison
-
- Surface : 119 m²
- Pièces : 8
- Chambres : 3
- Garage : 1
- Être rappelé par un conseiller
- Demander plus d’infos
- Demande d'information
Maisons à proximité
La Bernerie-en-Retz (44760)
Maison de 5 pièces
La Bernerie-en-Retz (44760)
Maison de 4 pièces
La Bernerie-en-Retz (44760)
Maison de 4 pièces
La Bernerie-en-Retz (44760)
Maison de 5 pièces
La Bernerie-en-Retz (44760)
Maison de 4 pièces
La Bernerie-en-Retz (44760)
Maison de 5 pièces
Programmes à proximité
Pornic (44210)
Appartements de 2 à 4 pièces
Livraison 2ème trimestre 2027
Pornic (44210)
Appartements de 2 à 5 pièces
Livraison 4ème trimestre 2027
Pornic (44210)
Appartements de 3 pièces
Livraison 4ème trimestre 2027
Pornic (44210)
Appartements de 2 à 4 pièces
Livraison 4ème trimestre 2026
Pornic (44210)
Appartements de 2 à 5 pièces
Livraison 4ème trimestre 2027
Saint-Père-en-Retz (44320)
Appartements de 2 à 4 pièces
Livraison 4ème trimestre 2027
Remplissez le formulaire ci-dessous, vos informations sont transmises directement au constructeur qui vous contactera par email ou par téléphone afin de traiter votre demande. En savoir plus.
Voir tous nos programmes immobiliers neufs à La Bernerie-en-Retz