Maison neuve, 70 m² - La Barre-de-Monts (85550)

302 900 €
La Barre-de-Monts (85550)

Proposée par LMP CONSTRUCTEUR – 4 pièces - 4 chambres - terrain 469 m²

LMP CONSTRUCTEUR
LMP CONSTRUCTEUR
(66 avis)
  • Demande d'information
MAISON À CONSTRUIRE : ceci est une annonce d'une maison neuve à construire.
*****PROCHE DU PASSAGE DU GOIS ET DU PONT DE NOIRMOUTIER****
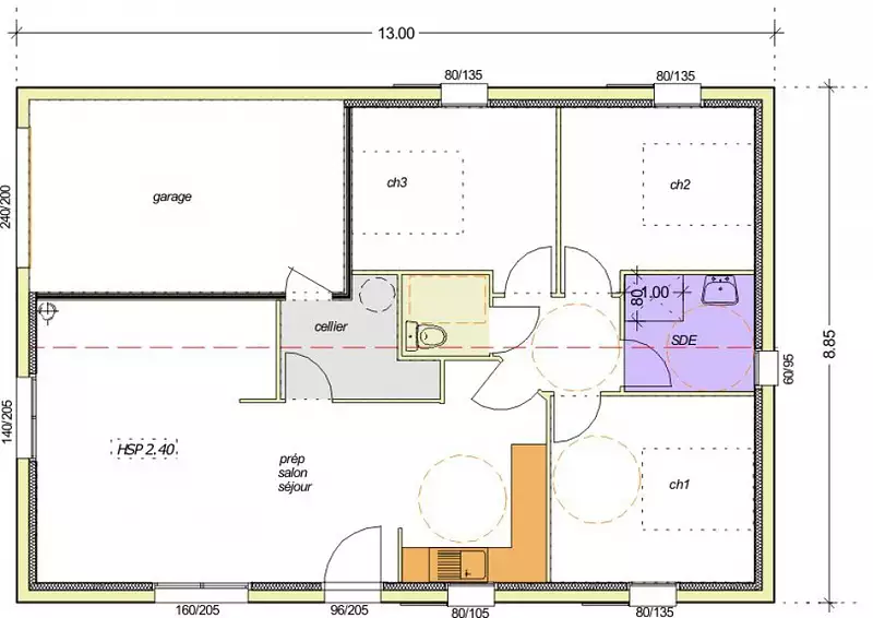
VENTE : maison de 4 pièces (70 m²) à La Barre-de-Monts
Emplacement privilégié - À La Barre-de-Monts (85550), maison neuve en vente de 4 pièces, 70 m² sur 469 m² de terrain. Elle offre quatre chambres, une cuisine et une salle de bains.
À proximité : établissements scolaires, crèche, marchés, tennis, bassins de natation, bibliothèque, boulangeries, commerces, supermarchés, poissonneries et épiceries. Océan Atlantique à 5 km.
Cette maison de 4 pièces est proposée à l'achat pour 302 900 €.
. Donnez vie à vos projets immobiliers avec LMP Constructeur Challans.
*****PROCHE DU PASSAGE DU GOIS ET DU PONT DE NOIRMOUTIER****
Référence : NR2251808_2
Terrain proposé par un partenaire foncier selon disponibilités et autorisation de publicité au prix de 101 900 €. Hors droit d'enregistrement et frais de notaire. Maison proposée, avec un contrat de construction de maison individuelle, dans le cadre de la loi du 19/12/1990, au prix de 201 000 € (Hors branchements et raccordements, papiers peints, peintures, revêtement de sol dans les chambres, qui sont chiffrés dans les travaux qui restent à charge du client. Tarif modifiable sans préavis). Étiquette énergie : A. Différents modèles disponibles pour ce terrain. Assurances et garanties du constructeur comprises (RC professionnelle, décennale, dommage ouvrage).

Les informations sur les risques auxquels ce bien est exposé sont disponibles sur le site Géorisques : www.georisques.gouv.fr


Prix
  • Prix total : 302 900 €
  • Prix du modèle de maison : 201 000 €
  • Prix du terrain : 101 900 €

Terrain
  • Surface : 469 m²

Maison
  • Surface : 70 m²
  • Pièces : 4
  • Chambres : 4
  • Garage : 1

  • Être rappelé par un conseiller
  • Demander plus d’infos
  • Demande d'information
La Barre-de-Monts (85550)

Programmes à proximité

Villa Barena
Villa Barena
La Barre-de-Monts (85550)

Appartements de 2 à 3 pièces
Livraison 3ème trimestre 2028

Bleu Rivage
Bleu Rivage
Saint-Jean-de-Monts (85160)

Appartements de 1 à 4 pièces
Livraison 2ème trimestre 2028

La villa Saint-Jean
La villa Saint-Jean
Saint-Jean-de-Monts (85160)

Appartements de 2 à 4 pièces
Livraison 1er trimestre 2026

PASSAGE HORTENSE
PASSAGE HORTENSE
Challans (85300)

Appartements de 3 à 4 pièces
Livraison 3ème trimestre 2026

La Belle Epoque
La Belle Epoque
Challans (85300)

Appartements de 2 à 4 pièces
Livraison 3ème trimestre 2027

Contacter LMP CONSTRUCTEUR pour recevoir plus d'informations

Remplissez le formulaire ci-dessous, vos informations sont transmises directement au constructeur qui vous contactera par email ou par téléphone afin de traiter votre demande. En savoir plus.

Voir tous nos programmes immobiliers neufs à La Barre-de-Monts