Maison neuve, 64 m² - L'Aiguillon-sur-Vie (85220)

235 900 €
L'Aiguillon-sur-Vie (85220)

Proposée par LMP CONSTRUCTEUR – 4 pièces - 2 chambres - terrain 470 m²

LMP CONSTRUCTEUR
LMP CONSTRUCTEUR
  • Demande d'information
MAISON À CONSTRUIRE : ceci est une annonce d'une maison neuve à construire.
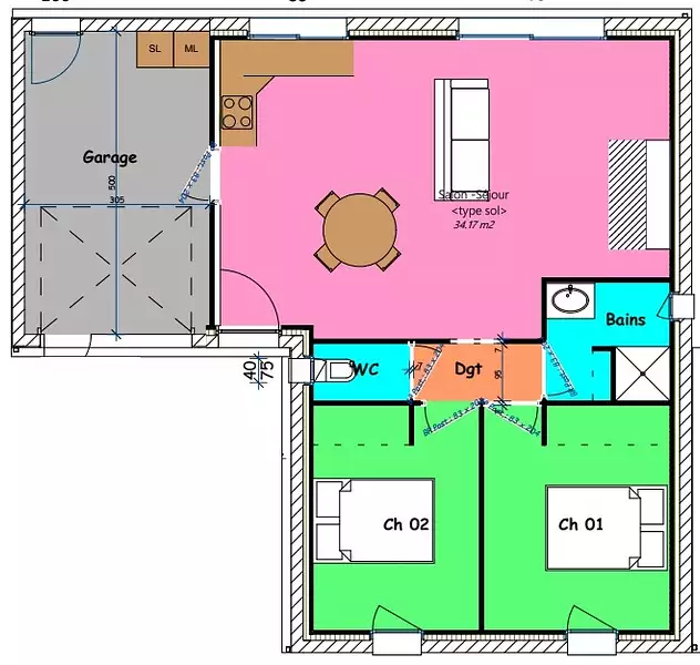
VENTE : maison F4 (64 m²) à L'Aiguillon-sur-Vie
Emplacement privilégié - À découvrir à L'Aiguillon-sur-Vie (85220) : maison neuve 4 pièces en vente. Surface de 64 m² et 470 m² de terrain. Elle dispose de deux chambres, d'une cuisine et d'une salle de bains.
Proche gare (Saint-Gilles-Croix-de-Vie), École Primaire Privée Saint Joseph, tennis, commerces, boulangeries et épicerie. Océan Atlantique à 5 km.
Cette maison de 4 pièces est à vendre pour la somme de 235 900 €.
Contactez notre agence (RISSELIN Nicolas : 06-80-33-03-82) pour toute information sur la maison, sur les modalités de vente ou sur les démarches à suivre.
Référence : NR2395396_1
Terrain proposé par un partenaire foncier selon disponibilités et autorisation de publicité au prix de 78 100 €. Hors droit d'enregistrement et frais de notaire. Terrain + Maison proposés au prix de 157 800 € (Hors branchements et raccordements, papiers peints, peintures, revêtement de sol dans les chambres. Tarif modifiable sans préavis). Etiquette énergie : A. Différents modèles disponibles pour ce terrain. Assurances et garanties du constructeur (RC professionnelle, décennale, dommage ouvrage, garantie de remboursement de l'acompte, livraison à prix et délai convenu) : https://www.lmp-constructeur.com/mentions-legales/.

Les informations sur les risques auxquels ce bien est exposé sont disponibles sur le site Géorisques : www.georisques.gouv.fr


Prix
  • Prix total : 235 900 €
  • Prix du modèle de maison : 157 800 €
  • Prix du terrain : 78 100 €

Terrain
  • Surface : 470 m²

Maison
  • Surface : 64 m²
  • Pièces : 4
  • Chambres : 2
  • Garage : 1

  • Être rappelé par un conseiller
  • Demander plus d’infos
  • Demande d'information
L'Aiguillon-sur-Vie (85220)

Programmes à proximité

Domaine de la Sauzaie
Domaine de la Sauzaie
Bretignolles-sur-Mer (85470)

Appartements de 2 à 3 pièces
Livraison 1er trimestre 2027

Terrasses Littoral
Terrasses Littoral
Bretignolles-sur-Mer (85470)

Appartements de 2 à 3 pièces
Livraison 3ème trimestre 2027

Le Bocage
Le Bocage
Le Fenouiller (85800)

Appartements de 1 à 4 pièces
Livraison 4ème trimestre 2027

LE NAUTILIA
LE NAUTILIA
Saint-Gilles-Croix-de-Vie (85800)

Appartements de 2 à 3 pièces
Livraison 1er trimestre 2027

OPALE
OPALE
Saint-Gilles-Croix-de-Vie (85800)

Appartements de 2 à 4 pièces
Livraison 4ème trimestre 2026

Domaine des Aubrais - Apparts
Domaine des Aubrais - Apparts
Saint-Hilaire-de-Riez (85270)

Appartements de 2 à 3 pièces
Livraison 3ème trimestre 2027

Contacter LMP CONSTRUCTEUR pour recevoir plus d'informations

Remplissez le formulaire ci-dessous, vos informations sont transmises directement au constructeur qui vous contactera par email ou par téléphone afin de traiter votre demande. En savoir plus.

Voir tous nos programmes immobiliers neufs à L'Aiguillon-sur-Vie