Maison neuve, 107 m² - Juliénas (69840)

364 000 €
Juliénas (69840)

Proposée par MAISONS PUNCH SAINT PRIEST – 5 pièces - 4 chambres - terrain 600 m²

Maisons PUNCH Saint Priest
Maisons PUNCH Saint Priest
(57 avis)
  • Demande d'information
MAISON À CONSTRUIRE : ceci est une annonce d'une maison neuve à construire.
10 m² OFFERT + CUISINE OFFERTE + PACK DECO OFFERT (peintures + parquet des chambres + faïence sdb + placards pour nos 50 ans.
Rare : Maison contemporaine sur la commune de Juliena avec grand terrain plat piscinable de 600 m².
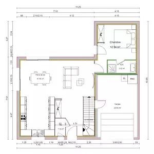
Cette nouvelle maison à vendre sur la commune de Juliena est à de l'école et des commodités. Avec 107 m² , 4 chambres et un séjour cuisine spacieux de 57 m² cette maison contemporaine aux prestations haut de gamme vous séduira avec ses nombreuses options :
Volets roulants motorisés et centralisé, pompe à chaleur plancher chauffant, wc suspendu, carrelage 60x60, porte de garage sectionnelle, parquet dans les chambres etc ...
Possibilité de modifier le plan et les prestations.
Arnaud est à votre disposition pour concevoir votre maison sur mesure.
Référence : 4627 DUFOR Arnaud
Terrain proposé et vendu par notre partenaire foncier selon disponibilités, le constructeur n’étant pas mandaté pour réaliser la vente du terrain. Prix terrain inclus : 195 000 € Frais de notaire non inclus : € Prix maison inclus : 169 000 € VRD non inclus : € Hors aménagements extérieurs (extensions, terrasse, piscine etc), papiers peints, peintures, moquettes dans les chambres (tarif en vigueur au 20 mai 2025, modifiable sans préavis, prix variables suivant les prestations souhaitées). Hors frais d’hypothèque. Différents modèles disponibles pour chaque terrain. Assurance RC professionnelle/décennale/dommage ouvrage groupe Aviva. Garantie de remboursement de l'acompte/livraison à prix et délai convenu CGI.

Les informations sur les risques auxquels ce bien est exposé sont disponibles sur le site Géorisques : www.georisques.gouv.fr


Prix
  • Prix total : 364 000 €
  • Prix du modèle de maison : 169 000 €
  • Prix du terrain : 195 000 €

Terrain
  • Surface : 600 m²

Maison
  • Surface : 107 m²
  • Pièces : 5
  • Chambres : 4
  • Salle de bains : 1
  • Garage : 1
  • Surface garage : 20 m²

  • Être rappelé par un conseiller
  • Demander plus d’infos
  • Demande d'information
Juliénas (69840)

Programmes à proximité

L'YDEAL
L'YDEAL
Mâcon (71000)

Appartements de 2 à 5 pièces
Livraison 1er trimestre 2027

TERRE DE SIENNE
TERRE DE SIENNE
Belleville-en-Beaujolais (69220)

Appartements de 3 à 4 pièces
Livraison 4ème trimestre 2025

FAUBOURG REPUBLIQUE
FAUBOURG REPUBLIQUE
Belleville-en-Beaujolais (69220)

Appartement
Livraison 3ème trimestre 2024

Central Parc
Central Parc
Belleville-en-Beaujolais (69220)

Appartements de 2 à 4 pièces
Livraison 4ème trimestre 2027

Les Allées Fleurie
Les Allées Fleurie
Saint-Georges-de-Reneins (69830)

Appartements de 2 à 4 pièces
Livraison 4ème trimestre 2027

LES BALCONS DE LA DOMBES
LES BALCONS DE LA DOMBES
Saint-Trivier-sur-Moignans (01990)

Appartements de 3 à 4 pièces
Livraison 2ème trimestre 2027

Contacter MAISONS PUNCH SAINT PRIEST pour recevoir plus d'informations

Remplissez le formulaire ci-dessous, vos informations sont transmises directement au constructeur qui vous contactera par email ou par téléphone afin de traiter votre demande. En savoir plus.

Voir tous nos programmes immobiliers neufs à Juliénas