Maison neuve, 100 m² - Joué-lès-Tours (37300)
338 000 €
Joué-lès-Tours (37300)
Proposée par CONSTRUCTIONS IDEALE DEMEURE – 5 pièces - 4 chambres - terrain 408 m²
|
|
| CONSTRUCTIONS IDEALE DEMEURE |
- Demande d'information
- Prendre rendez-vous
MAISON À CONSTRUIRE : ceci est une annonce d'une maison neuve à construire.
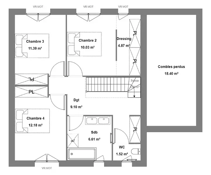
Découvrez cette maison à étage R+1, alliant élégance et fonctionnalité. Au rez-de-chaussée, profitez d'une suite parentale confortable, idéale pour votre intimité. Le grand séjour de 45 m² vous offre un espace convivial pour recevoir famille et amis. À l'étage, deux chambres supplémentaires et un bureau vous permettent de créer un espace de vie harmonieux. Un cellier pratique et un garage attenant complètent ce bien, offrant à la fois rangement et praticité. Un lieu de vie parfait pour toute la famille !
Nous réalisons votre projet sur-mesure, contactez-moi Julie Texier au °7.57.82.55.62
Référence : JT2422520_1
Terrain proposé par un partenaire foncier selon disponibilités et autorisation de publicité au prix de 118 000 €. Hors droit d'enregistrement et frais de notaire. Terrain + Maison proposés au prix de 338 000 € (Hors branchements et raccordements, papiers peints, peintures, revêtement de sol dans les chambres. Tarif modifiable sans préavis). Etiquette énergie : A. Différents modèles disponibles pour ce terrain. Assurances et garanties du constructeur (RC professionnelle, décennale, dommage ouvrage, garantie de remboursement de l'acompte, livraison à prix et délai convenu) :
Les informations sur les risques auxquels ce bien est exposé sont disponibles sur le site Géorisques : www.georisques.gouv.fr
Nous réalisons votre projet sur-mesure, contactez-moi Julie Texier au °7.57.82.55.62
Référence : JT2422520_1
Terrain proposé par un partenaire foncier selon disponibilités et autorisation de publicité au prix de 118 000 €. Hors droit d'enregistrement et frais de notaire. Terrain + Maison proposés au prix de 338 000 € (Hors branchements et raccordements, papiers peints, peintures, revêtement de sol dans les chambres. Tarif modifiable sans préavis). Etiquette énergie : A. Différents modèles disponibles pour ce terrain. Assurances et garanties du constructeur (RC professionnelle, décennale, dommage ouvrage, garantie de remboursement de l'acompte, livraison à prix et délai convenu) :
Les informations sur les risques auxquels ce bien est exposé sont disponibles sur le site Géorisques : www.georisques.gouv.fr
- Prix
-
- Prix total : 338 000 €
- Prix du modèle de maison : 220 000 €
- Prix du terrain : 118 000 €
- Terrain
-
- Surface : 408 m²
- Maison
-
- Surface : 100 m²
- Pièces : 5
- Chambres : 4
- Garage : 1
- Être rappelé par un conseiller
- Demander plus d’infos
- Demande d'information
Joué-lès-Tours (37300)
Maisons à proximité
Maison neuve, 97 m²
Joué-lès-Tours (37300)
Joué-lès-Tours (37300)
Maison de 4 pièces
Maison neuve, 100 m²
Joué-lès-Tours (37300)
Joué-lès-Tours (37300)
Maison de 4 pièces
Maison neuve, 84 m²
Joué-lès-Tours (37300)
Joué-lès-Tours (37300)
Maison de 4 pièces
Maison neuve, 100 m²
Joué-lès-Tours (37300)
Joué-lès-Tours (37300)
Maison de 5 pièces
Maison neuve, 87 m²
Joué-lès-Tours (37300)
Joué-lès-Tours (37300)
Maison de 4 pièces
Maison neuve, 203 m²
Joué-lès-Tours (37300)
Joué-lès-Tours (37300)
Maison de 6 pièces
Programmes à proximité
Coeur de Ville
Joué-lès-Tours (37300)
Joué-lès-Tours (37300)
Appartements de 2 à 5 pièces
Livraison 4ème trimestre 2026
Verdéa
Joué-lès-Tours (37300)
Joué-lès-Tours (37300)
Appartements de 1 à 2 pièces
Livraison 2ème trimestre 2027
EMBLEM
La Riche (37520)
La Riche (37520)
Appartements de 2 à 5 pièces
Livraison 1er trimestre 2026
Investir en nue-propriété à Tours : choix gagnant !
Tours (37000)
Tours (37000)
Appartements de 1 pièce
Livraison 3ème trimestre 2026
Emménagez dès aujourd'hui à Tours!
Tours (37000)
Tours (37000)
Appartements de 2 à 3 pièces
CHRYSALIDES
Tours (37000)
Tours (37000)
Appartements de 3 pièces
Livraison 1er trimestre 2026
Contacter CONSTRUCTIONS IDEALE DEMEURE pour recevoir plus d'informations
Remplissez le formulaire ci-dessous, vos informations sont transmises directement au constructeur qui vous contactera par email ou par téléphone afin de traiter votre demande. En savoir plus.