Maison neuve, 111 m² - Jayat (01340)
279 500 €
Jayat (01340)
Proposée par MAISONS FRANCE CONFORT – 5 pièces - 4 chambres - terrain 970 m²
|
|
| MAISONS FRANCE CONFORT |
| (48 avis) |
- Demande d'information
- Prendre rendez-vous
MAISON À CONSTRUIRE : ceci est une annonce d'une maison neuve à construire.
VENTE d'une maison T5 (111 m²) à Jayat
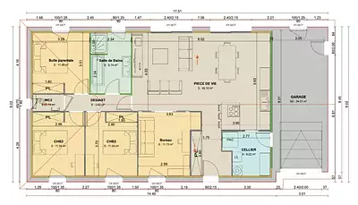
Proche de Bourg-en-Bresse - À Jayat (01340), maison neuve en vente de 5 pièces, 111 m² sur 970 m² de terrain. Conçue de plain-pied, elle est composée de quatre chambres, d'une cuisine et d'une salle de bains.
Proche écoles, tennis, bibliothèque et boulangerie. Autoroutes A40 et A39 accessibles à 14 km.
Le prix de vente de cette maison de 5 pièces est de 279 500 €.
Contactez notre agence (Sébastien GABRILLARGUES : 06-81-77-73-67) pour toute question sur la maison ou sur les démarches à suivre. Concrétisez vos projets immobiliers avec Maisons France Confort Bourg-en-Bresse.
Annonce proposée par un Agent Commercial Partenaire.
Référence : SG2621_1
Terrain proposé par un partenaire foncier selon disponibilités et autorisation de publicité au prix de 78 500 €. Hors droit d'enregistrement et frais de notaire. Terrain + Maison proposés au prix de 201 000 € (Hors branchements et raccordements, papiers peints, peintures, revêtement de sol dans les chambres. Tarif modifiable sans préavis). Etiquette énergie : A. Différents modèles disponibles pour ce terrain. Assurances et garanties du constructeur (RC professionnelle, décennale, dommage ouvrage, garantie de remboursement de l'acompte, livraison à prix et délai convenu) : https://www.maisons-france-confort.fr/mentions-legales/. HEXAOM Services est enregistré auprès de l'ORIAS en tant que Courtier en financement, Niveau 1, sous le numéro 14001345.
Les informations sur les risques auxquels ce bien est exposé sont disponibles sur le site Géorisques : www.georisques.gouv.fr
Proche de Bourg-en-Bresse - À Jayat (01340), maison neuve en vente de 5 pièces, 111 m² sur 970 m² de terrain. Conçue de plain-pied, elle est composée de quatre chambres, d'une cuisine et d'une salle de bains.
Proche écoles, tennis, bibliothèque et boulangerie. Autoroutes A40 et A39 accessibles à 14 km.
Le prix de vente de cette maison de 5 pièces est de 279 500 €.
Contactez notre agence (Sébastien GABRILLARGUES : 06-81-77-73-67) pour toute question sur la maison ou sur les démarches à suivre. Concrétisez vos projets immobiliers avec Maisons France Confort Bourg-en-Bresse.
Annonce proposée par un Agent Commercial Partenaire.
Référence : SG2621_1
Terrain proposé par un partenaire foncier selon disponibilités et autorisation de publicité au prix de 78 500 €. Hors droit d'enregistrement et frais de notaire. Terrain + Maison proposés au prix de 201 000 € (Hors branchements et raccordements, papiers peints, peintures, revêtement de sol dans les chambres. Tarif modifiable sans préavis). Etiquette énergie : A. Différents modèles disponibles pour ce terrain. Assurances et garanties du constructeur (RC professionnelle, décennale, dommage ouvrage, garantie de remboursement de l'acompte, livraison à prix et délai convenu) : https://www.maisons-france-confort.fr/mentions-legales/. HEXAOM Services est enregistré auprès de l'ORIAS en tant que Courtier en financement, Niveau 1, sous le numéro 14001345.
Les informations sur les risques auxquels ce bien est exposé sont disponibles sur le site Géorisques : www.georisques.gouv.fr
- Prix
-
- Prix total : 279 500 €
- Prix du modèle de maison : 201 000 €
- Prix du terrain : 78 500 €
- Terrain
-
- Surface : 970 m²
- Maison
-
- Surface : 111 m²
- Pièces : 5
- Chambres : 4
- Garage : 1
- Être rappelé par un conseiller
- Demander plus d’infos
- Demande d'information
Jayat (01340)
Maisons à proximité
Maison neuve, 127 m²
Jayat (01340)
Jayat (01340)
Maison de 4 pièces
Maison neuve, 85 m²
Jayat (01340)
Jayat (01340)
Maison de 4 pièces
Maison neuve, 117 m²
Jayat (01340)
Jayat (01340)
Maison de 4 pièces
Maison neuve, 87 m²
Jayat (01340)
Jayat (01340)
Maison de 4 pièces
Maison neuve, 90 m²
Jayat (01340)
Jayat (01340)
Maison de 4 pièces
Maison neuve, 86 m²
Jayat (01340)
Jayat (01340)
Maison de 4 pièces
Programmes à proximité
Origami
Attignat (01340)
Attignat (01340)
Appartements de 1 à 3 pièces
Livraison 4ème trimestre 2026
Coeur Citadelle
Bourg-en-Bresse (01000)
Bourg-en-Bresse (01000)
Appartements de 2 à 5 pièces
Livraison 4ème trimestre 2027
Les Balcons d'Annie
Bourg-en-Bresse (01000)
Bourg-en-Bresse (01000)
Appartements de 1 à 4 pièces
Livraison 3ème trimestre 2026
J.O.U.R
Bourg-en-Bresse (01000)
Bourg-en-Bresse (01000)
Appartements de 2 à 5 pièces
Livraison 2ème trimestre 2027
Le Clos des Maraîchers
Bourg-en-Bresse (01000)
Bourg-en-Bresse (01000)
Appartements de 2 à 4 pièces
Livraison 3ème trimestre 2027
TILIA
Bourg-en-Bresse (01000)
Bourg-en-Bresse (01000)
Appartements de 2 à 4 pièces
Contacter MAISONS FRANCE CONFORT pour recevoir plus d'informations
Remplissez le formulaire ci-dessous, vos informations sont transmises directement au constructeur qui vous contactera par email ou par téléphone afin de traiter votre demande. En savoir plus.