Maison neuve, 94 m² - Jasseron (01250)

236 000 €
Jasseron (01250)

Proposée par MAISONS PUNCH BOURG EN BRESSE – 4 pièces - 3 chambres - terrain 600 m²

Maisons Punch Bourg en Bresse
Maisons Punch Bourg en Bresse
(47 avis)
  • Demande d'information
MAISON À CONSTRUIRE : ceci est une annonce d'une maison neuve à construire.
Profitez d'une offre exceptionnelle pour nos 50 ans !
À l'occasion de notre anniversaire, bénéficiez de 10 m² offerts, ainsi que du pack cuisine et du pack déco inclus pour votre projet de construction à Jasseron.
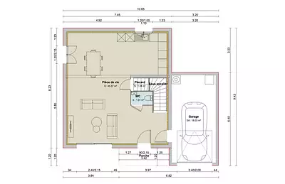
Sur un terrain de 600 m² plat, situé dans un cadre idyllique, imaginez votre future maison. Nous proposons une construction à étage 3 chambres + garage , alliant modernité et fonctionnalité. Cette maison a été conçue pour répondre aux besoins des familles à la recherche d’espace et de confort.
N’attendez plus pour réaliser votre rêve de propriété dans un environnement paisible et privilégié.
.
Une opportunité à ne pas manquer !
Référence : 3839 Viana Carole
Terrain proposé et vendu par notre partenaire foncier selon disponibilités, le constructeur n’étant pas mandaté pour réaliser la vente du terrain. Prix terrain inclus : 78 000 € Frais de notaire non inclus : € Prix maison inclus : 158 000 € VRD non inclus : € Hors aménagements extérieurs (extensions, terrasse, piscine etc), papiers peints, peintures, moquettes dans les chambres (tarif en vigueur au 20 mai 2025, modifiable sans préavis, prix variables suivant les prestations souhaitées). Hors frais d’hypothèque. Différents modèles disponibles pour chaque terrain. Assurance RC professionnelle/décennale/dommage ouvrage groupe Aviva. Garantie de remboursement de l'acompte/livraison à prix et délai convenu CGI.

Les informations sur les risques auxquels ce bien est exposé sont disponibles sur le site Géorisques : www.georisques.gouv.fr


Prix
  • Prix total : 236 000 €
  • Prix du modèle de maison : 158 000 €
  • Prix du terrain : 78 000 €

Terrain
  • Surface : 600 m²

Maison
  • Surface : 94 m²
  • Pièces : 4
  • Chambres : 3
  • Salle de bains : 1
  • Garage : 1

  • Être rappelé par un conseiller
  • Demander plus d’infos
  • Demande d'information
Jasseron (01250)

Programmes à proximité

Coeur Citadelle
Coeur Citadelle
Bourg-en-Bresse (01000)

Appartements de 2 à 5 pièces
Livraison 4ème trimestre 2027

Les Balcons d'Annie
Les Balcons d'Annie
Bourg-en-Bresse (01000)

Appartements de 1 à 4 pièces
Livraison 3ème trimestre 2026

Le Clos des Maraîchers
Le Clos des Maraîchers
Bourg-en-Bresse (01000)

Appartements de 2 à 4 pièces
Livraison 3ème trimestre 2027

TILIA
TILIA
Bourg-en-Bresse (01000)

Appartements de 2 à 4 pièces
Livraison 4ème trimestre 2026

J.O.U.R
J.O.U.R
Bourg-en-Bresse (01000)

Appartements de 2 à 5 pièces
Livraison 2ème trimestre 2027

Espace Milliat
Espace Milliat
Bourg-en-Bresse (01000)

Appartements de 1 à 4 pièces
Livraison 3ème trimestre 2025

Contacter MAISONS PUNCH BOURG EN BRESSE pour recevoir plus d'informations

Remplissez le formulaire ci-dessous, vos informations sont transmises directement au constructeur qui vous contactera par email ou par téléphone afin de traiter votre demande. En savoir plus.

Voir tous nos programmes immobiliers neufs à Jasseron