Maison neuve, 90 m² - Igoville (27460)

333 476 €
Igoville (27460)

Proposée par MAISONS BALENCY – 6 pièces - 4 chambres - terrain 537 m²

MAISONS BALENCY
MAISONS BALENCY
  • Demande d'information
MAISON À CONSTRUIRE : ceci est une annonce d'une maison neuve à construire.
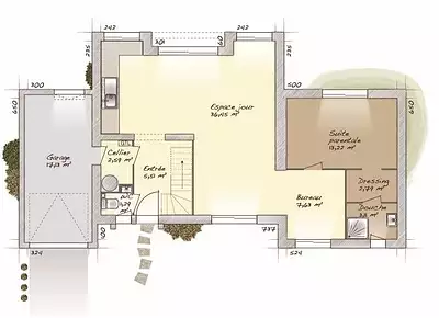
A construire sur la commune d'Igoville, une belle maison T6 (90 m²).
PROCHE DE ROUEN.
A moins de 10min de Tourville-la-Rivière, nous vous proposons ce projet maison de 6 pièces de 90 m² sur un terrain de 537 m² dans un quartier calme situé sur la commune d'Igoville (27460).
Il s'agit d'une maison de 2 niveaux. Elle est composée de quatre chambres, d'une cuisine et de deux salles de bains.
Il y a une école primaire, une boulangerie, un bureau de poste et plusieurs autres commerces à proximité.
Côté transports en commun, on trouve cinq gares à moins de 10 minutes en voiture. Les autoroutes A13 et A154 sont accessibles à moins de 9 km.
Ce projet maison + terrain est proposée à l'achat pour 333 476 €.
Contactez notre agence Maisons Balency Gravigny, pour plus de renseignements.
Notre conseillère commerciale Élodie DUPRÉ (07-43-61-26-52) sera ravie de vous répondre.
Donnez vie à vos projets immobiliers avec Maisons Balency Gravigny.
Annonce proposée par un Agent Commercial Partenaire.
Référence : ED2401961_1
Terrain proposé par un partenaire foncier selon disponibilités et autorisation de publicité au prix de 70 500 €. Hors droit d'enregistrement et frais de notaire. Terrain + Maison proposés au prix de 333 476 € (Hors branchements et raccordements, papiers peints, peintures, revêtement de sol dans les chambres. Tarif modifiable sans préavis). Etiquette énergie : A. Différents modèles disponibles pour ce terrain. Assurances et garanties du constructeur (RC professionnelle, décennale, dommage ouvrage, garantie de remboursement de l'acompte, livraison à prix et délai convenu) : HEXAOM Services est enregistré auprès de l'ORIAS en tant que Courtier en financement, Niveau 1, sous le numéro 14001345.

Les informations sur les risques auxquels ce bien est exposé sont disponibles sur le site Géorisques : www.georisques.gouv.fr


Prix
  • Prix total : 333 476 €
  • Prix du modèle de maison : 262 976 €
  • Prix du terrain : 70 500 €

Terrain
  • Surface : 537 m²

Maison
  • Surface : 90 m²
  • Pièces : 6
  • Chambres : 4
  • Garage : 1

  • Être rappelé par un conseiller
  • Demander plus d’infos
  • Demande d'information
Igoville (27460)

Programmes à proximité

À 10 MIN* DE LA GARE
À 10 MIN* DE LA GARE
Oissel (76350)

Appartements de 2 pièces
Livraison 4ème trimestre 2026

RESIDENCE VALVERT - BAT 4
RESIDENCE VALVERT - BAT 4
Val-de-Reuil (27100)

Appartements de 2 à 4 pièces
Livraison 4ème trimestre 2027

RESIDENCE VALVERT - BAT 3
RESIDENCE VALVERT - BAT 3
Val-de-Reuil (27100)

Appartements de 2 pièces
Livraison 4ème trimestre 2026

L'ECRIN VERT
L'ECRIN VERT
Le Mesnil-Esnard (76240)

Appartements de 2 à 4 pièces
Livraison 4ème trimestre 2027

Louise Sainte-Martine
Louise Sainte-Martine
Sotteville-lès-Rouen (76300)

Appartements de 2 à 4 pièces
Livraison 2ème trimestre 2028

Le Jardin d'Adélaïde
Le Jardin d'Adélaïde
Sotteville-lès-Rouen (76300)

Appartements de 2 à 3 pièces et maisons de 4 pièces
Livraison 2ème trimestre 2025

Contacter MAISONS BALENCY pour recevoir plus d'informations

Remplissez le formulaire ci-dessous, vos informations sont transmises directement au constructeur qui vous contactera par email ou par téléphone afin de traiter votre demande. En savoir plus.

Voir tous nos programmes immobiliers neufs à Igoville