Maison neuve, 80 m² - Guipavas (29490)
285 000 €
Guipavas (29490)
Proposée par MAISONS DE L'AVENIR – 4 pièces - 3 chambres - terrain 588 m²
|
|
| MAISONS DE L'AVENIR |
| (63 avis) |
- Demande d'information
- Prendre rendez-vous
MAISON À CONSTRUIRE : ceci est une annonce d'une maison neuve à construire.
📍 Terrain à vendre - Guipvas
Découvrez ce beau terrain, idéalement situé, issu d'une division, sur la commune de Guipavas.
- une belle opportunité à saisir rapidement !
✅ Proximité immédiate des voies express, alliant accessibilité et coté urbain.
✅ Environnement agréable et verdoyant
💰 Prix : 86 900 €
Ce terrain n'attend plus que votre projet de construction 🏡.
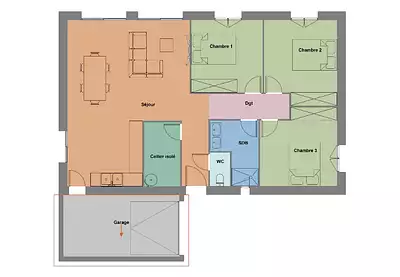
💡 Nous vous proposons sur ce terrain un projet de maison de 80 m², au style contemporain comprenant :
3 chambres dont une suite parentale 🛏️
2 salles de bains 🚿
Un vaste espace de vie de plus de 35 m² lumineux ☀️
Un grand garage 🚗
Une conception intégrée dans notre concept Maisons Bâti Activ, favorisant l'ensoleillement naturel et réduisant vos coûts énergétiques 🌿⚡
💰 Prix de l'opération Terrain + Maison : 285 000 €
Ce terrain et ce projet de maison n'attendent plus que vous pour devenir réalité 🏡.
Si ce bien vous intéresse, contactez dès aujourd'hui Erwan TILLY - Conseiller Maisons de l'Avenir, pour organiser une visite et commencer à concevoir vos futurs plans de maison.
Référence : ET2365026_1
Maisons de l’Avenir, constructeur de maisons individuelles, propose en collaboration avec ses partenaires fonciers, une sélection de terrains constructibles, selon disponibilité, pour la construction de maisons neuves définies par le constructeur, avec un contrat de construction de maison individuelle, dans le cadre de la loi du 19/12/1990. Prix net, hors frais notariés, d'enregistrement et de publicité foncière
Terrain proposé au prix de : 86 900 €
Maison proposée au prix de : 198 100 €
Etiquette énergie : A. Assurances et garanties du constructeur (RC professionnelle, décennale, dommage ouvrage, Garantie de livraison à prix et délai convenu).
Les informations sur les risques auxquels ce bien est exposé sont disponibles sur le site Géorisques : www.georisques.gouv.fr
Découvrez ce beau terrain, idéalement situé, issu d'une division, sur la commune de Guipavas.
- une belle opportunité à saisir rapidement !
✅ Proximité immédiate des voies express, alliant accessibilité et coté urbain.
✅ Environnement agréable et verdoyant
💰 Prix : 86 900 €
Ce terrain n'attend plus que votre projet de construction 🏡.
💡 Nous vous proposons sur ce terrain un projet de maison de 80 m², au style contemporain comprenant :
3 chambres dont une suite parentale 🛏️
2 salles de bains 🚿
Un vaste espace de vie de plus de 35 m² lumineux ☀️
Un grand garage 🚗
Une conception intégrée dans notre concept Maisons Bâti Activ, favorisant l'ensoleillement naturel et réduisant vos coûts énergétiques 🌿⚡
💰 Prix de l'opération Terrain + Maison : 285 000 €
Ce terrain et ce projet de maison n'attendent plus que vous pour devenir réalité 🏡.
Si ce bien vous intéresse, contactez dès aujourd'hui Erwan TILLY - Conseiller Maisons de l'Avenir, pour organiser une visite et commencer à concevoir vos futurs plans de maison.
Référence : ET2365026_1
Maisons de l’Avenir, constructeur de maisons individuelles, propose en collaboration avec ses partenaires fonciers, une sélection de terrains constructibles, selon disponibilité, pour la construction de maisons neuves définies par le constructeur, avec un contrat de construction de maison individuelle, dans le cadre de la loi du 19/12/1990. Prix net, hors frais notariés, d'enregistrement et de publicité foncière
Terrain proposé au prix de : 86 900 €
Maison proposée au prix de : 198 100 €
Etiquette énergie : A. Assurances et garanties du constructeur (RC professionnelle, décennale, dommage ouvrage, Garantie de livraison à prix et délai convenu).
Les informations sur les risques auxquels ce bien est exposé sont disponibles sur le site Géorisques : www.georisques.gouv.fr
- Prix
-
- Prix total : 285 000 €
- Prix du modèle de maison : 198 100 €
- Prix du terrain : 86 900 €
- Terrain
-
- Surface : 588 m²
- Maison
-
- Surface : 80 m²
- Pièces : 4
- Chambres : 3
- Garage : 1
- Être rappelé par un conseiller
- Demander plus d’infos
- Demande d'information
Guipavas (29490)
Maisons à proximité
Maison neuve, 110 m²
Guipavas (29490)
Guipavas (29490)
Maison de 6 pièces
Maison neuve, 85 m²
Guipavas (29490)
Guipavas (29490)
Maison de 3 pièces
Maison neuve, 70 m²
Guipavas (29490)
Guipavas (29490)
Maison de 4 pièces
Maison neuve, 100 m²
Guipavas (29490)
Guipavas (29490)
Maison de 5 pièces
Maison neuve, 131 m²
Guipavas (29490)
Guipavas (29490)
Maison de 5 pièces
Maison neuve, 150 m²
Guipavas (29490)
Guipavas (29490)
Maison de 5 pièces
Programmes à proximité
KOYA 2
Guipavas (29490)
Guipavas (29490)
Appartements de 3 à 4 pièces
Livraison 1er trimestre 2027
KOYA 3
Guipavas (29490)
Guipavas (29490)
Appartements de 2 pièces
Livraison 2ème trimestre 2028
DOMAINE DE LA SOURCE
Brest (29200)
Brest (29200)
Appartements de 2 à 3 pièces et maisons de 4 pièces
Livraison 4ème trimestre 2027
IROISE
Brest (29200)
Brest (29200)
Appartements de 2 à 4 pièces
Les Allées de la plage
Brest (29200)
Brest (29200)
Appartements de 3 à 4 pièces
La Vigie
Brest (29200)
Brest (29200)
Appartements de 1 à 4 pièces
Livraison 3ème trimestre 2027
Contacter MAISONS DE L'AVENIR pour recevoir plus d'informations
Remplissez le formulaire ci-dessous, vos informations sont transmises directement au constructeur qui vous contactera par email ou par téléphone afin de traiter votre demande. En savoir plus.