Maison neuve, 131 m² - Gradignan (33170)

669 000 €
Gradignan (33170)

Proposée par COULEUR VILLAS – 5 pièces - 4 chambres - terrain 1 800 m²

Couleur Villas
Couleur Villas
  • Demande d'information
MAISON À CONSTRUIRE : ceci est une annonce d'une maison neuve à construire.
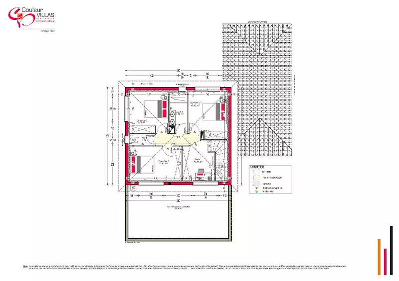
Découvrez cette belle maison contemporaine à étage partiel de 130 m², implantée sur un vaste terrain de 1800 m² situé dans un quartier résidentiel prisé de Gradignan.
Cette maison familiale offre 4 chambres, dont une suite parentale au rez-de-chaussée, ainsi que 2 salles de bain modernes. L'espace de vie spacieux et lumineux, ouvert sur le jardin, allie confort et élégance. Conçue selon la norme RE2020, elle garantit d'excellentes performances énergétiques et un confort optimal en toutes saisons.
Le grand terrain plat, en partie viabilisé, permet de multiples aménagements extérieurs : piscine, terrasse, potager ou aire de jeux.
Référence : DB2303409_2
Terrain proposé par un partenaire foncier selon disponibilité dans le cadre d’un projet de construction avec Couleur Villas. Les descriptions, photographies, surfaces et prix illustrant l’annonce sont fournies à titre indicatif et ne sont pas contractuels. Non soumis au DPE. Différents modèles disponibles.

Les informations sur les risques auxquels ce bien est exposé sont disponibles sur le site Géorisques : www.georisques.gouv.fr


Prix
  • Prix total : 669 000 €
  • Prix du modèle de maison : 289 000 €
  • Prix du terrain : 380 000 €

Terrain
  • Surface : 1 800 m²

Maison
  • Surface : 131 m²
  • Pièces : 5
  • Chambres : 4
  • Garage : 1

  • Être rappelé par un conseiller
  • Demander plus d’infos
  • Demande d'information
Gradignan (33170)

Programmes à proximité

L'EXPRESSION
L'EXPRESSION
Gradignan (33170)

Appartement de 4 pièces
Livraison 4ème trimestre 2024

Le Florilège
Le Florilège
Gradignan (33170)

Appartements de 4 pièces
Livraison 4ème trimestre 2025

Les Jardins Étoilés
Les Jardins Étoilés
Pessac (33600)

Appartements de 2 à 4 pièces et maisons de 4 à 5 pièces
Livraison 4ème trimestre 2027

Clos Madran
Clos Madran
Pessac (33600)

Appartements de 3 à 4 pièces
Livraison 1er trimestre 2027

LE CLOS SEMILLON
LE CLOS SEMILLON
Pessac (33600)

Appartements de 3 pièces et maisons de 4 pièces
Livraison 1er trimestre 2027

HARMONIA
HARMONIA
Talence (33400)

Appartements de 1 à 4 pièces
Livraison 3ème trimestre 2028

Contacter COULEUR VILLAS pour recevoir plus d'informations

Remplissez le formulaire ci-dessous, vos informations sont transmises directement au constructeur qui vous contactera par email ou par téléphone afin de traiter votre demande. En savoir plus.

Voir tous nos programmes immobiliers neufs à Gradignan