Maison neuve, 105 m² - Gesté (49600)

265 500 €
Gesté (49600)

Proposée par MAISONS BERNARD JAMBERT – 5 pièces - 3 chambres - terrain 389 m²

MAISONS BERNARD JAMBERT
MAISONS BERNARD JAMBERT
  • Demande d'information
MAISON À CONSTRUIRE : ceci est une annonce d'une maison neuve à construire.
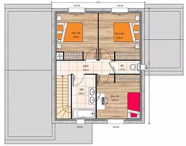
Maison de 5 pièces (105 m²) en vente à Gesté
Idéalement située - À découvrir à Gesté (49600) : maison neuve 5 pièces à vendre. 2 niveaux, surface de 105 m² sur 389 m² de terrain. Elle est composée de trois chambres, d'une cuisine et de deux salles de bains.
À proximité : écoles, bibliothèque, tennis, boulangerie, commerce, supérette et épicerie. Accès nationale N249 à 7 km. Cholet à 25 km,
Cette maison de 5 pièces est proposée à l'achat pour 265 500 €.
. Concrétisez vos projets immobiliers avec Maisons Bernard Jambert Angers.
Référence : MJ2355217_3
Terrain proposé par un partenaire foncier selon disponibilités et autorisation de publicité au prix de 49 208 €. Hors droit d'enregistrement et frais de notaire. Maison proposée, avec un contrat de construction de maison individuelle, dans le cadre de la loi du 19/12/1990, au prix de 216 292 € (Hors branchements et raccordements, papiers peints, peintures, revêtement de sol dans les chambres, qui sont chiffrés dans les travaux qui restent à charge du client. Tarif modifiable sans préavis). Étiquette énergie : A. Différents modèles disponibles pour ce terrain. Assurances et garanties du constructeur comprises (RC professionnelle, décennale, dommage ouvrage).

Les informations sur les risques auxquels ce bien est exposé sont disponibles sur le site Géorisques : www.georisques.gouv.fr


Prix
  • Prix total : 265 500 €
  • Prix du modèle de maison : 216 292 €
  • Prix du terrain : 49 208 €

Terrain
  • Surface : 389 m²

Maison
  • Surface : 105 m²
  • Pièces : 5
  • Chambres : 3
  • Garage : 1

  • Être rappelé par un conseiller
  • Demander plus d’infos
  • Demande d'information
Gesté (49600)

Programmes à proximité

DOLCE VITA
DOLCE VITA
Clisson (44190)

Appartements de 3 à 4 pièces et maisons de 4 pièces
Livraison 2ème trimestre 2026

Coeur de ville
Coeur de ville
Le Loroux-Bottereau (44430)

Appartements de 2 à 4 pièces
Livraison 2ème trimestre 2027

Les Jardins des Mauges
Les Jardins des Mauges
Cholet (49300)

Appartements de 2 à 4 pièces
Livraison 4ème trimestre 2026

ORGANZA
ORGANZA
Cholet (49300)

Appartements de 3 pièces et maisons de 3 pièces
Livraison 2ème trimestre 2026

Les Jardins des Mauges II
Les Jardins des Mauges II
Cholet (49300)

Appartements de 1 à 3 pièces
Livraison 4ème trimestre 2027

Le Clos de la Roseraie
Le Clos de la Roseraie
Mortagne-sur-Sèvre (85290)

Appartements de 2 à 4 pièces
Livraison 1er trimestre 2028

Contacter MAISONS BERNARD JAMBERT pour recevoir plus d'informations

Remplissez le formulaire ci-dessous, vos informations sont transmises directement au constructeur qui vous contactera par email ou par téléphone afin de traiter votre demande. En savoir plus.

Voir tous nos programmes immobiliers neufs à Gesté