Maison neuve, 90 m² - Franqueville-Saint-Pierre (76520)

330 000 €
Franqueville-Saint-Pierre (76520)

Proposée par MAISONS BALENCY – 6 pièces - 4 chambres - terrain 500 m²

MAISONS BALENCY
MAISONS BALENCY
  • Demande d'information
MAISON À CONSTRUIRE : ceci est une annonce d'une maison neuve à construire.
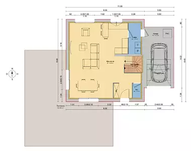
Maison de 6 pièces (90 m²) à vendre à Franqueville-Saint-Pierre
Emplacement privilégié - À Franqueville-Saint-Pierre (76520), maison neuve à vendre de 6 pièces, 2 niveaux, 90 m² et 500 m² de terrain. Elle se divise en quatre chambres, une cuisine et deux salles de bains.
Proche gares, établissements scolaires, tennis, bibliothèque, commerces, boulangeries, bureau de poste, boucheries-charcuteries et supérette. Accès autoroutes et nationales à 10 km. Rouen à 8 km.
Cette maison de 6 pièces est proposée à l'achat pour 330 000 €.
.
Annonce proposée par un Agent Commercial Partenaire.
Référence : AK2388785_4
Terrain proposé par un partenaire foncier selon disponibilités et autorisation de publicité au prix de 140 000 €. Hors droit d'enregistrement et frais de notaire. Terrain + Maison proposés au prix de 190 000 € (Hors branchements et raccordements, papiers peints, peintures, revêtement de sol dans les chambres. Tarif modifiable sans préavis). Etiquette énergie : A. Différents modèles disponibles pour ce terrain. . HEXAOM Services est enregistré auprès de l'ORIAS en tant que Courtier en financement, Niveau 1, sous le numéro 14001345.

Les informations sur les risques auxquels ce bien est exposé sont disponibles sur le site Géorisques : www.georisques.gouv.fr


Prix
  • Prix total : 330 000 €
  • Prix du modèle de maison : 190 000 €
  • Prix du terrain : 140 000 €

Terrain
  • Surface : 500 m²

Maison
  • Surface : 90 m²
  • Pièces : 6
  • Chambres : 4
  • Garage : 1

  • Être rappelé par un conseiller
  • Demander plus d’infos
  • Demande d'information
Franqueville-Saint-Pierre (76520)

Programmes à proximité

L'ECRIN VERT
L'ECRIN VERT
Le Mesnil-Esnard (76240)

Appartements de 2 à 4 pièces
Livraison 4ème trimestre 2027

Rodbaek Village
Rodbaek Village
Darnétal (76160)

Appartements de 1 à 3 pièces et maisons de 4 à 5 pièces
Livraison 2ème trimestre 2027

Louise Sainte-Martine
Louise Sainte-Martine
Sotteville-lès-Rouen (76300)

Appartements de 2 à 4 pièces
Livraison 2ème trimestre 2028

Le Jardin d'Adélaïde
Le Jardin d'Adélaïde
Sotteville-lès-Rouen (76300)

Appartements de 2 à 3 pièces et maisons de 4 pièces
Livraison 2ème trimestre 2025

22 POUCHET
22 POUCHET
Rouen (76000)

Appartements de 4 pièces
Livraison 4ème trimestre 2026

Contacter MAISONS BALENCY pour recevoir plus d'informations

Remplissez le formulaire ci-dessous, vos informations sont transmises directement au constructeur qui vous contactera par email ou par téléphone afin de traiter votre demande. En savoir plus.

Voir tous nos programmes immobiliers neufs à Franqueville-Saint-Pierre