Maison neuve, 90 m² - Douvres-la-Délivrande (14440)

262 000 €
Douvres-la-Délivrande (14440)

Proposée par MAISONS FRANCE CONFORT – 3 pièces - 3 chambres - terrain 200 m²

MAISONS FRANCE CONFORT
MAISONS FRANCE CONFORT
(117 avis)
  • Demande d'information
MAISON À CONSTRUIRE : ceci est une annonce d'une maison neuve à construire.
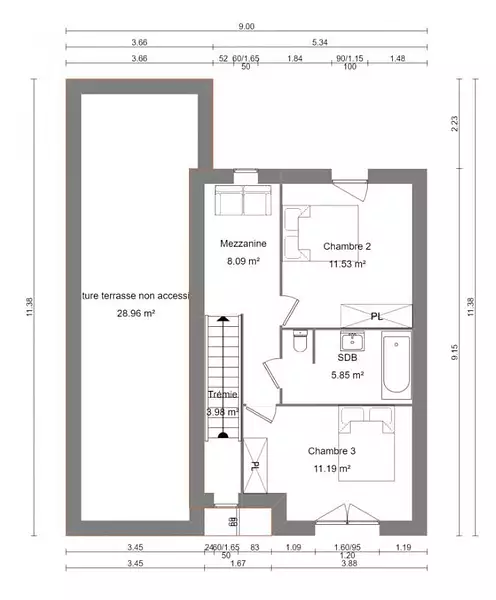
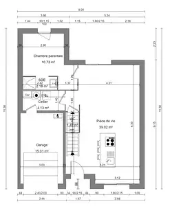
VENTE d'une maison de 3 pièces (90 m²) à Douvres-la-Délivrande
Emplacement privilégié - Maison neuve 3 pièces en vente à Douvres-la-Délivrande (14440) avec 2 niveaux, une surface de 90 m² et de 200 m² de terrain. Elle inclut trois chambres, une cuisine et deux salles de bains.
À dix minutes : établissements scolaires, commerce. Accès nationale N814 à 10 km. Manche à 5 km. Caen à 12 km.
Cette maison de 3 pièces est proposée à l'achat pour 262 000 €.
.
Référence : KD2251312_2
Terrain proposé par un partenaire foncier selon disponibilités et autorisation de publicité au prix de 60 000 €. Hors droit d'enregistrement et frais de notaire. Maison proposée, avec un contrat de construction de maison individuelle, dans le cadre de la loi du 19/12/1990, au prix de 202 000 € (Hors branchements et raccordements, papiers peints, peintures, revêtement de sol dans les chambres, qui sont chiffrés dans les travaux qui restent à charge du client. Tarif modifiable sans préavis). Étiquette énergie : A. Différents modèles disponibles pour ce terrain. Assurances et garanties du constructeur comprises (RC professionnelle, décennale, dommage ouvrage).

Les informations sur les risques auxquels ce bien est exposé sont disponibles sur le site Géorisques : www.georisques.gouv.fr


Prix
  • Prix total : 262 000 €
  • Prix du modèle de maison : 202 000 €
  • Prix du terrain : 60 000 €

Terrain
  • Surface : 200 m²

Maison
  • Surface : 90 m²
  • Pièces : 3
  • Chambres : 3
  • Garage : 1

  • Être rappelé par un conseiller
  • Demander plus d’infos
  • Demande d'information
Douvres-la-Délivrande (14440)

Programmes à proximité

SAPHIR
SAPHIR
Langrune-sur-Mer (14830)

Appartements de 2 à 4 pièces
Livraison 4ème trimestre 2027

LES REFLETS DE NACRE
LES REFLETS DE NACRE
Courseulles-sur-Mer (14470)

Appartements de 2 à 3 pièces
Livraison 3ème trimestre 2027

VILLA EMERAUDE
VILLA EMERAUDE
Epron (14610)

Appartements de 2 à 4 pièces
Livraison 3ème trimestre 2026

Coeur Héritage
Coeur Héritage
Ouistreham (14150)

Appartements de 1 à 6 pièces
Livraison 4ème trimestre 2027

Allée Vasarely
Allée Vasarely
Blainville-sur-Orne (14550)

Appartement de 4 pièces
Livraison 4ème trimestre 2026

A 10 MIN DU CENTRE-VILLE
A 10 MIN DU CENTRE-VILLE
Colombelles (14460)

Appartements de 3 pièces
Livraison 3ème trimestre 2026

Contacter MAISONS FRANCE CONFORT pour recevoir plus d'informations

Remplissez le formulaire ci-dessous, vos informations sont transmises directement au constructeur qui vous contactera par email ou par téléphone afin de traiter votre demande. En savoir plus.

Voir tous nos programmes immobiliers neufs à Douvres-la-Délivrande