Maison neuve, 92 m² - Dompierre-sur-Veyle (01240)

270 000 €
Dompierre-sur-Veyle (01240)

Proposée par MAISONS PUNCH VILLEFRANCHE – 4 pièces - 3 chambres - terrain 600 m²

Maisons Punch Villefranche
Maisons Punch Villefranche
(837 avis)
  • Demande d'information
MAISON À CONSTRUIRE : ceci est une annonce d'une maison neuve à construire.
Profitez du prêt à taux O% et de nos OFFRES ANNIVERSAIRE 50 ANS pour réaliser votre rêve à Dompierre-sur-Veyle !
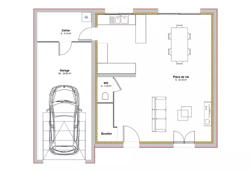
Devenez propriétaire de cette magnifique maison de 92 m² - 3 chambres - garage de 21 m² :
- Surface habitable : 92 m²
- Pièces : Séjour lumineux avec grande baie vitrée, cuisine ouverte avec accès cellier, 3 chambres, 1 salle de bain familiale avec baignoire + douche , 2 WC séparés
- Garage : 21 m²
- Cellier 5 m² avec accès garage et cuisine
- Extérieur : Beau terrain de 600 m², plat, à aménager selon vos envies. Gare SNCF à 10 minutes / Autoroute à 20 minutes
En ce moment profitez de notre offre anniversaire (valable jusqu'au 31/12/2025) :
10 M² OFFERT + UNE CUISINE TOUTE EQUIPEE + PLACARDS, PARQUETS DANS TOUTES LES CHAMBRES, PEINTURE ET FAÏENCE OFFERTS !
Pour plus de renseignements :
-> Contactez directement votre commerciale CAROLINE GUILLEMAUD ou répondez à cette annonce
Référence : 3890 SIQUET CAROLINE
Terrain proposé et vendu par notre partenaire foncier selon disponibilités, le constructeur n’étant pas mandaté pour réaliser la vente du terrain. Prix terrain inclus : 99 500 € Frais de notaire non inclus : € Prix maison inclus : 170 500 € VRD non inclus : € Hors aménagements extérieurs (extensions, terrasse, piscine etc), papiers peints, peintures, moquettes dans les chambres (tarif en vigueur au 20 mai 2025, modifiable sans préavis, prix variables suivant les prestations souhaitées). Hors frais d’hypothèque. Différents modèles disponibles pour chaque terrain. Assurance RC professionnelle/décennale/dommage ouvrage groupe Aviva. Garantie de remboursement de l'acompte/livraison à prix et délai convenu CGI. Partenaire financier : à préciser Le numéro de TVA intracommunautaire : FR 14 498 627 272 00012 Contact : contact@maisons-punch.fr

Les informations sur les risques auxquels ce bien est exposé sont disponibles sur le site Géorisques : www.georisques.gouv.fr


Prix
  • Prix total : 270 000 €
  • Prix du modèle de maison : 170 500 €
  • Prix du terrain : 99 500 €

Terrain
  • Surface : 600 m²

Maison
  • Surface : 92 m²
  • Pièces : 4
  • Chambres : 3
  • Salle de bains : 1
  • Garage : 1
  • Surface garage : 21 m²

  • Être rappelé par un conseiller
  • Demander plus d’infos
  • Demande d'information
Dompierre-sur-Veyle (01240)

Programmes à proximité

Coeur Citadelle
Coeur Citadelle
Bourg-en-Bresse (01000)

Appartements de 2 à 5 pièces
Livraison 4ème trimestre 2027

Les Balcons d'Annie
Les Balcons d'Annie
Bourg-en-Bresse (01000)

Appartements de 1 à 4 pièces
Livraison 3ème trimestre 2026

J.O.U.R
J.O.U.R
Bourg-en-Bresse (01000)

Appartements de 2 à 5 pièces
Livraison 2ème trimestre 2027

Espace Milliat
Espace Milliat
Bourg-en-Bresse (01000)

Appartements de 2 à 4 pièces
Livraison 3ème trimestre 2025

Le Clos des Maraîchers
Le Clos des Maraîchers
Bourg-en-Bresse (01000)

Appartements de 2 à 4 pièces
Livraison 3ème trimestre 2027

TILIA
TILIA
Bourg-en-Bresse (01000)

Appartements de 2 à 4 pièces

Contacter MAISONS PUNCH VILLEFRANCHE pour recevoir plus d'informations

Remplissez le formulaire ci-dessous, vos informations sont transmises directement au constructeur qui vous contactera par email ou par téléphone afin de traiter votre demande. En savoir plus.

Voir tous nos programmes immobiliers neufs à Dompierre-sur-Veyle