Maison neuve, 83 m² - Crêches-sur-Saône (71680)

229 000 €
Crêches-sur-Saône (71680)

Proposée par MAISONS PUNCH MÂCON – 4 pièces - 3 chambres - terrain 750 m²

Maisons Punch Mâcon
Maisons Punch Mâcon
(86 avis)
  • Demande d'information
MAISON À CONSTRUIRE : ceci est une annonce d'une maison neuve à construire.
OFFRES EXCEPTIONNELLES 50 ANS : 10M2 OFFERTS + PACKS DECO ET CUISINE OFFERTS !! *
* Durée limitée - Voir conditions en agence
MAISONS PUNCH, constructeur de maison individuelle, vous propose cette parcelle viabilisé de 753 m2 à Bey 01290
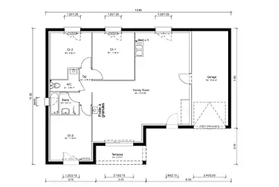
Cette maison est composée d'une belle pièce de vie de 43 m2, 3 chambres ainsi qu'un garage de 19 m2 construit sur vide sanitaire, avec normes RE2020.
Sont incluses dans le tarif proposé, les options suivantes:
- volets roulants motorisé connectés,
- Débords de toit PVC
- Carrelage 45 x 45
- Tuile terre cuite...
Prix total de 251 722 euros incluant terrain, frais de notaire, construction, VRD (estimation)
Projet de construction personnalisable selon vos envies.
Pour plus de renseignements, Référence : 3888 DA COSTA BETTY
Terrain proposé et vendu par notre partenaire foncier selon disponibilités, le constructeur n’étant pas mandaté pour réaliser la vente du terrain. Prix terrain inclus : 85 000 € Frais de notaire non inclus : € Prix maison inclus : 144 000 € VRD non inclus : € Hors aménagements extérieurs (extensions, terrasse, piscine etc), papiers peints, peintures, moquettes dans les chambres (tarif en vigueur au 20 mai 2025, modifiable sans préavis, prix variables suivant les prestations souhaitées). Hors frais d’hypothèque. Différents modèles disponibles pour chaque terrain. Assurance RC professionnelle/décennale/dommage ouvrage groupe Aviva. Garantie de remboursement de l'acompte/livraison à prix et délai convenu CGI.

Les informations sur les risques auxquels ce bien est exposé sont disponibles sur le site Géorisques : www.georisques.gouv.fr


Prix
  • Prix total : 229 000 €
  • Prix du modèle de maison : 144 000 €
  • Prix du terrain : 85 000 €

Terrain
  • Surface : 750 m²

Maison
  • Surface : 83 m²
  • Pièces : 4
  • Chambres : 3
  • Salle de bains : 1
  • Garage : 1

  • Être rappelé par un conseiller
  • Demander plus d’infos
  • Demande d'information
Crêches-sur-Saône (71680)

Programmes à proximité

L'YDEAL
L'YDEAL
Mâcon (71000)

Appartements de 2 à 5 pièces
Livraison 1er trimestre 2027

TERRE DE SIENNE
TERRE DE SIENNE
Belleville-en-Beaujolais (69220)

Appartements de 3 à 4 pièces
Livraison 4ème trimestre 2025

FAUBOURG REPUBLIQUE
FAUBOURG REPUBLIQUE
Belleville-en-Beaujolais (69220)

Appartement
Livraison 3ème trimestre 2024

Central Parc
Central Parc
Belleville-en-Beaujolais (69220)

Appartements de 2 à 4 pièces
Livraison 4ème trimestre 2027

Les Allées Fleurie
Les Allées Fleurie
Saint-Georges-de-Reneins (69830)

Appartements de 2 à 4 pièces
Livraison 4ème trimestre 2027

LES BALCONS DE LA DOMBES
LES BALCONS DE LA DOMBES
Saint-Trivier-sur-Moignans (01990)

Appartements de 3 à 4 pièces
Livraison 2ème trimestre 2027

Contacter MAISONS PUNCH MÂCON pour recevoir plus d'informations

Remplissez le formulaire ci-dessous, vos informations sont transmises directement au constructeur qui vous contactera par email ou par téléphone afin de traiter votre demande. En savoir plus.

Voir tous nos programmes immobiliers neufs à Crêches-sur-Saône