Maison neuve, 92 m² - Confrançon (01310)

227 800 €
Confrançon (01310)

Proposée par MAISONS PUNCH BOURG EN BRESSE – 5 pièces - 4 chambres - terrain 700 m²

Maisons Punch Bourg en Bresse
Maisons Punch Bourg en Bresse
(47 avis)
  • Demande d'information
MAISON À CONSTRUIRE : ceci est une annonce d'une maison neuve à construire.
Annonce Projet de Construction à Confrançon
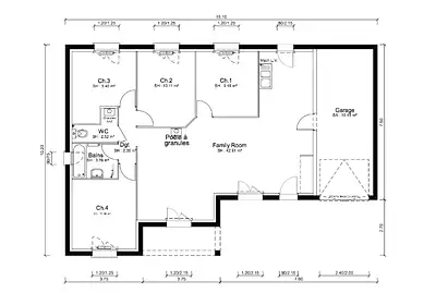
À saisir ! Sur un terrain plat de 700 m², viabilisé et situé dans un cadre calme et verdoyant (axe Bourg/Mâcon), nous proposons une maison de plain-pied avec 4 chambres, terrasse couverte et garage (possibilité de cellier accessible depuis la cuisine). Plans personnalisables : choisissez entre 2, 3 ou 4 chambres. Construction conforme à la norme RE 2020 pour des économies d’énergie. VRD inclus.
.
Référence : 3863 Viana Carole
Terrain proposé et vendu par notre partenaire foncier selon disponibilités, le constructeur n’étant pas mandaté pour réaliser la vente du terrain. Prix terrain inclus : 74 250 € Frais de notaire non inclus : € Prix maison inclus : 153 550 € VRD non inclus : € Hors aménagements extérieurs (extensions, terrasse, piscine etc), papiers peints, peintures, moquettes dans les chambres (tarif en vigueur au 20 mai 2025, modifiable sans préavis, prix variables suivant les prestations souhaitées). Hors frais d’hypothèque. Différents modèles disponibles pour chaque terrain. Assurance RC professionnelle/décennale/dommage ouvrage groupe Aviva. Garantie de remboursement de l'acompte/livraison à prix et délai convenu CGI.

Les informations sur les risques auxquels ce bien est exposé sont disponibles sur le site Géorisques : www.georisques.gouv.fr


Prix
  • Prix total : 227 800 €
  • Prix du modèle de maison : 153 550 €
  • Prix du terrain : 74 250 €

Terrain
  • Surface : 700 m²

Maison
  • Surface : 92 m²
  • Pièces : 5
  • Chambres : 4
  • Salle de bains : 1
  • Garage : 1

  • Être rappelé par un conseiller
  • Demander plus d’infos
  • Demande d'information
Confrançon (01310)

Programmes à proximité

Coeur Citadelle
Coeur Citadelle
Bourg-en-Bresse (01000)

Appartements de 2 à 5 pièces
Livraison 4ème trimestre 2027

Les Balcons d'Annie
Les Balcons d'Annie
Bourg-en-Bresse (01000)

Appartements de 1 à 4 pièces
Livraison 3ème trimestre 2026

Le Clos des Maraîchers
Le Clos des Maraîchers
Bourg-en-Bresse (01000)

Appartements de 2 à 4 pièces
Livraison 3ème trimestre 2027

TILIA
TILIA
Bourg-en-Bresse (01000)

Appartements de 2 à 4 pièces
Livraison 4ème trimestre 2026

J.O.U.R
J.O.U.R
Bourg-en-Bresse (01000)

Appartements de 2 à 5 pièces
Livraison 2ème trimestre 2027

Espace Milliat
Espace Milliat
Bourg-en-Bresse (01000)

Appartements de 1 à 4 pièces
Livraison 3ème trimestre 2025

Contacter MAISONS PUNCH BOURG EN BRESSE pour recevoir plus d'informations

Remplissez le formulaire ci-dessous, vos informations sont transmises directement au constructeur qui vous contactera par email ou par téléphone afin de traiter votre demande. En savoir plus.

Voir tous nos programmes immobiliers neufs à Confrançon