Maison neuve, 80 m² - Commequiers (85220)

239 900 €
Commequiers (85220)

Proposée par LMP CONSTRUCTEUR – 4 pièces - 3 chambres - terrain 449 m²

LMP CONSTRUCTEUR
LMP CONSTRUCTEUR
  • Demande d'information
MAISON À CONSTRUIRE : ceci est une annonce d'une maison neuve à construire.
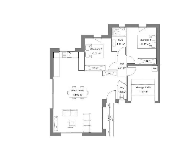
Maison de 4 pièces (80 m²) en vente à Commequiers
Emplacement privilégié - À découvrir à Commequiers (85220) : maison neuve 4 pièces à vendre, 80 m² de surface sur 449 m² de terrain. Son intérieur se divise en trois chambres, une cuisine et une salle de bains.
Proche gare (Challans), écoles, tennis, commerces, boulangerie, supermarché et poissonnerie. Océan Atlantique à 12 km.
Cette maison de 4 pièces est à vendre pour la somme de 239 900 €.
N'hésitez pas à prendre contact avec notre agence (Nicolas RISSELIN : 06-80-33-03-82) pour plus de renseignements sur la maison de plain-pied, sur les modalités de vente ou sur les démarches à suivre. LMP Constructeur Saint-Gilles-Croix-de-Vie est là pour vous accompagner dans tous vos projets immobiliers.
Référence : NR2401473_5
Terrain proposé par un partenaire foncier selon disponibilités et autorisation de publicité au prix de 67 501 €. Hors droit d'enregistrement et frais de notaire. Terrain + Maison proposés au prix de 172 399 € (Hors branchements et raccordements, papiers peints, peintures, revêtement de sol dans les chambres. Tarif modifiable sans préavis). Etiquette énergie : A. Différents modèles disponibles pour ce terrain. Assurances et garanties du constructeur (RC professionnelle, décennale, dommage ouvrage, garantie de remboursement de l'acompte, livraison à prix et délai convenu) : https://www.lmp-constructeur.com/mentions-legales/.

Les informations sur les risques auxquels ce bien est exposé sont disponibles sur le site Géorisques : www.georisques.gouv.fr


Prix
  • Prix total : 239 900 €
  • Prix du modèle de maison : 172 399 €
  • Prix du terrain : 67 501 €

Terrain
  • Surface : 449 m²

Maison
  • Surface : 80 m²
  • Pièces : 4
  • Chambres : 3
  • Garage : 1

  • Être rappelé par un conseiller
  • Demander plus d’infos
  • Demande d'information
Commequiers (85220)

Programmes à proximité

Le Bocage
Le Bocage
Le Fenouiller (85800)

Appartements de 1 à 4 pièces
Livraison 4ème trimestre 2027

Domaine des Aubrais - Apparts
Domaine des Aubrais - Apparts
Saint-Hilaire-de-Riez (85270)

Appartements de 2 à 3 pièces
Livraison 3ème trimestre 2027

PASSAGE HORTENSE
PASSAGE HORTENSE
Challans (85300)

Appartements de 3 à 4 pièces
Livraison 3ème trimestre 2026

La Belle Epoque
La Belle Epoque
Challans (85300)

Appartements de 2 à 4 pièces
Livraison 3ème trimestre 2027

Aulnéa
Aulnéa
Challans (85300)

Appartements de 2 à 4 pièces
Livraison 2ème trimestre 2028

Villa Pauline
Villa Pauline
Challans (85300)

Appartements de 3 à 4 pièces
Livraison 2ème trimestre 2026

Contacter LMP CONSTRUCTEUR pour recevoir plus d'informations

Remplissez le formulaire ci-dessous, vos informations sont transmises directement au constructeur qui vous contactera par email ou par téléphone afin de traiter votre demande. En savoir plus.

Voir tous nos programmes immobiliers neufs à Commequiers