Maison neuve, 89 m² - Chemillé (49120)
238 500 €
Chemillé (49120)
Proposée par MAISONS BERNARD JAMBERT – 5 pièces - 3 chambres - terrain 348 m²
|
|
| MAISONS BERNARD JAMBERT |
- Demande d'information
- Prendre rendez-vous
MAISON À CONSTRUIRE : ceci est une annonce d'une maison neuve à construire.
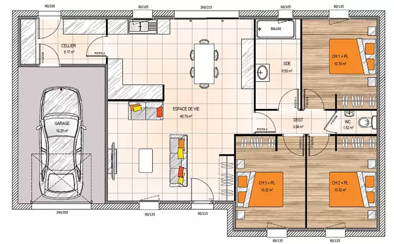
Maison F5 (89 m²) en vente à Chemillé
Idéalement située - À vendre à Chemillé (49120) : maison neuve 5 pièces de 89 m² sur un terrain de 348 m². Conçue de plain-pied, elle est composée de trois chambres, d'une cuisine et d'une salle de bains.
Proche gare (Chemillé-en-Anjou), établissements scolaires, crèches, bibliothèques, bassin de natation, tennis, commerces, boulangeries, supermarché, boucheries-charcuteries et bureaux de poste. Autoroute A87 à 2 km.
Le prix de vente de cette maison de 5 pièces est de 238 500 €.
Contactez Mathieu JANNEAU (06-01-35-24-98) pour plus de renseignements sur la maison, sur les démarches à suivre ou sur les modalités de vente. Maisons Bernard Jambert Angers est là pour vous accompagner à toutes les étapes de l'achat.
Référence : MJ2411160_2
Terrain proposé par un partenaire foncier selon disponibilités et autorisation de publicité au prix de 57 900 €. Hors droit d'enregistrement et frais de notaire. Terrain + Maison proposés au prix de 180 600 € (Hors branchements et raccordements, papiers peints, peintures, revêtement de sol dans les chambres. Tarif modifiable sans préavis). Etiquette énergie : A. Différents modèles disponibles pour ce terrain. Assurances et garanties du constructeur (RC professionnelle, décennale, dommage ouvrage, garantie de remboursement de l'acompte, livraison à prix et délai convenu) : https://www.maisons-bernard-jambert.com/informations-legales/.
Les informations sur les risques auxquels ce bien est exposé sont disponibles sur le site Géorisques : www.georisques.gouv.fr
Idéalement située - À vendre à Chemillé (49120) : maison neuve 5 pièces de 89 m² sur un terrain de 348 m². Conçue de plain-pied, elle est composée de trois chambres, d'une cuisine et d'une salle de bains.
Proche gare (Chemillé-en-Anjou), établissements scolaires, crèches, bibliothèques, bassin de natation, tennis, commerces, boulangeries, supermarché, boucheries-charcuteries et bureaux de poste. Autoroute A87 à 2 km.
Le prix de vente de cette maison de 5 pièces est de 238 500 €.
Contactez Mathieu JANNEAU (06-01-35-24-98) pour plus de renseignements sur la maison, sur les démarches à suivre ou sur les modalités de vente. Maisons Bernard Jambert Angers est là pour vous accompagner à toutes les étapes de l'achat.
Référence : MJ2411160_2
Terrain proposé par un partenaire foncier selon disponibilités et autorisation de publicité au prix de 57 900 €. Hors droit d'enregistrement et frais de notaire. Terrain + Maison proposés au prix de 180 600 € (Hors branchements et raccordements, papiers peints, peintures, revêtement de sol dans les chambres. Tarif modifiable sans préavis). Etiquette énergie : A. Différents modèles disponibles pour ce terrain. Assurances et garanties du constructeur (RC professionnelle, décennale, dommage ouvrage, garantie de remboursement de l'acompte, livraison à prix et délai convenu) : https://www.maisons-bernard-jambert.com/informations-legales/.
Les informations sur les risques auxquels ce bien est exposé sont disponibles sur le site Géorisques : www.georisques.gouv.fr
- Prix
-
- Prix total : 238 500 €
- Prix du modèle de maison : 180 600 €
- Prix du terrain : 57 900 €
- Terrain
-
- Surface : 348 m²
- Maison
-
- Surface : 89 m²
- Pièces : 5
- Chambres : 3
- Garage : 1
- Être rappelé par un conseiller
- Demander plus d’infos
- Demande d'information
Chemillé (49120)
Maisons à proximité
Maison neuve, 110 m²
Chemillé (49120)
Chemillé (49120)
Maison de 5 pièces
Maison neuve, 120 m²
Chemillé (49120)
Chemillé (49120)
Maison de 5 pièces
Maison neuve, 151 m²
Chemillé (49120)
Chemillé (49120)
Maison de 6 pièces
Maison neuve, 79 m²
Chemillé (49120)
Chemillé (49120)
Maison de 3 pièces
Maison neuve, 90 m²
Chemillé (49120)
Chemillé (49120)
Maison de 4 pièces
Maison neuve, 94 m²
Chemillé (49120)
Chemillé (49120)
Maison de 5 pièces
Programmes à proximité
Les Confluences
Chalonnes-sur-Loire (49290)
Chalonnes-sur-Loire (49290)
Appartements de 2 à 5 pièces
Livraison 4ème trimestre 2026
Les Cotonnières
Cholet (49300)
Cholet (49300)
Appartements de 1 à 4 pièces
Livraison 3ème trimestre 2029
Les Jardins des Mauges
Cholet (49300)
Cholet (49300)
Appartements de 2 à 4 pièces
Livraison 4ème trimestre 2026
Les Jardins des Mauges II
Cholet (49300)
Cholet (49300)
Appartements de 1 à 3 pièces
Livraison 1er trimestre 2028
ORGANZA
Cholet (49300)
Cholet (49300)
Appartements de 3 pièces et maisons de 3 pièces
Livraison 2ème trimestre 2026
Contacter MAISONS BERNARD JAMBERT pour recevoir plus d'informations
Remplissez le formulaire ci-dessous, vos informations sont transmises directement au constructeur qui vous contactera par email ou par téléphone afin de traiter votre demande. En savoir plus.